Teileliste
Verwenden Sie die Teileliste, um die für diese Lösung verfügbaren Komponenten zu ermitteln.
Rufen Sie Lenovo Support für Rechenzentrum auf und navigieren Sie zu der Unterstützungsseite für Ihre Lösung.
Klicken Sie auf .
Geben Sie die Seriennummer ein, um eine Liste der Teile für Ihre Lösung anzuzeigen.
Es wird dringend empfohlen, dass Sie die Zusammenfassungsdaten der Stromversorgung für Ihre Lösung mit Lenovo Capacity Planner überprüfen, bevor Sie neue Teile kaufen.
T1: CRU (Customer Replaceable Unit, durch den Kunden austauschbare Funktionseinheit) der Stufe 1. Für das Austauschen von CRUs der Stufe 1 ist der Kunde verantwortlich. Wenn Lenovo eine CRU der Stufe 1 ohne Servicevertrag auf Ihre Anforderung hin für Sie installiert, fallen dafür Gebühren an.
T2: CRU (Customer Replaceable Unit, durch den Kunden austauschbare Funktionseinheit) der Stufe 2. Sie können CRUs der Stufe 2 selbst installieren oder im Rahmen des für Ihren Server festgelegten Herstellerservice ohne Aufpreis von Lenovo installieren lassen.
F: FRU (Field Replaceable Unit, durch den Kundendienst austauschbare Funktionseinheit). FRUs dürfen nur von qualifizierten Kundendiensttechnikern installiert werden.
C: Verbrauchsmaterial und Strukturteile. Für den Kauf und Austausch von Verbrauchsmaterialien und Strukturteilen (Komponenten wie Abdeckblende oder Frontblende) sind Sie selbst verantwortlich. Wenn Lenovo eine Strukturkomponente auf Ihre Anforderung bezieht oder installiert, wird Ihnen dies entsprechend in Rechnung gestellt.
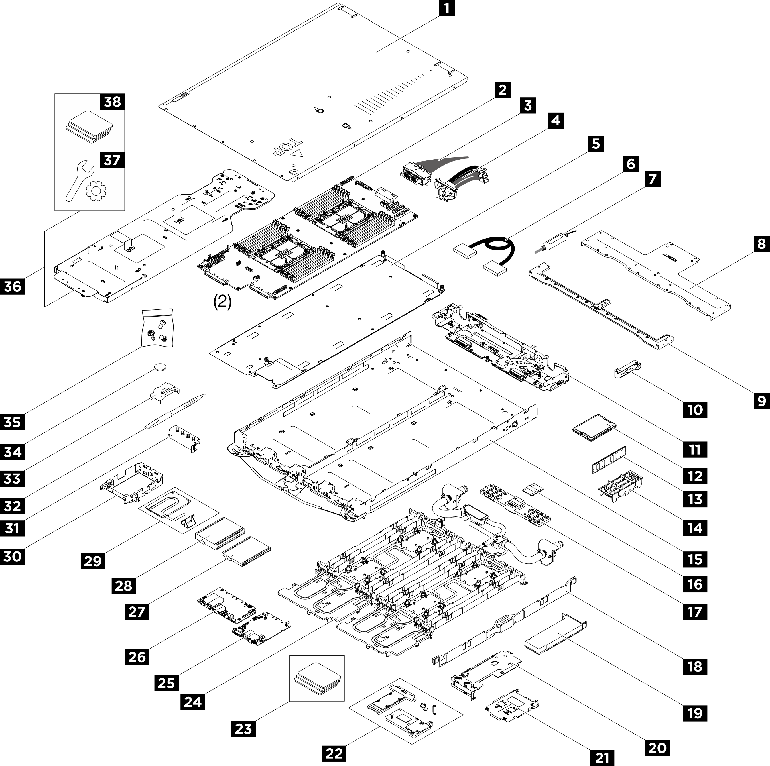
SC750 V4 Teileliste

| Index | Beschreibung | Typ |
|---|---|---|
Weitere Informationen zur Bestellung von Teilen:
| ||
| 1 | Obere Abdeckung | F |
| 2 | Prozessorplatine | F |
| 3 | Seitenbandkabelsatz für Systemmanagement | F |
| 4 | Sammelschienen-Anschlussmodul | F |
| 5 | Einbaurahmen der Prozessorplatine, System-E/A-Platine und E/A-Platine an der Vorderseite | F |
| 6 | Kabel | F |
| 7 | Flüssigkeitserkennungssensormodul | F |
| 8 | Hintere Querstrebe | F |
| 9 | Vordere Querstrebe | F |
| 10 | Benutzerfreundliches Modul | F |
| 11 | Stromversorgungsplatine | F |
| 12 | Prozessor | F |
| 13 | Speichermodul | F |
| 14 | DIMM-Abdeckung | F |
| 15 | Knotenrahmen | |
| 16 | Abdeckung der VR-Leiterplatte | F |
| 17 | VR-Leiterplatte | F |
| 18 | DIMM-Kühlleiste | F |
| 19 | PCIe-Adapterrahmen | F |
| 20 | PCIe-Adapter | F |
| 21 | Mittlere E3.S-Laufwerkhalterung | F |
| 22 | Komponentenleiterplatte | F |
| 23 | Komponenten-Gap-Pad, Putty-Pad oder Einweg-Gap-Pad | F |
| 24 | Wasserkreislauf | F |
| 25 | System-E/A-Platine (DCSCM) | F |
| 26 | E/A-Platine an der Vorderseite | F |
| 27 | E3.S 1T-Laufwerk | F |
| 28 | E3.S 2T-Laufwerk | F |
| 29 | Kühlkörper für E3.S-Laufwerk | F |
| 30 | Vordere E3.S-Laufwerkhalterung | F |
| 31 | Abdeckblende für Frontblende | F |
| 32 | DIMM-Tool | F |
| 33 | DIMM-Kamm | F |
| 34 | CMOS-Batterie | F |
| 35 | Schraube | F |
| 36 | Wasserkreislauf-Service-Satz | F |
| 37 | Bausatz mit verschiedenen Teilen | F |
| 38 | Wasserkreislauf-Gap-Pad-Kit | F |