Liste des pièces
Utilisez la liste des pièces pour identifier chacun des composants disponibles pour votre solution.
Accédez au site Assistance centre de données Lenovo et affichez la page de support de votre solution.
Cliquez sur .
Entrez le numéro de série pour afficher une liste des composants pour votre solution.
Il est fortement recommandé de vérifier les données de synthèse de l’alimentation de votre solution à l’aide de Lenovo Capacity Planner avant d’acheter de nouvelles pièces.
T1 : Unité remplaçable par l’utilisateur (CRU) de niveau 1. Le remplacement des CRU de niveau 1 vous incombe. Si Lenovo installe une unité remplaçable par l’utilisateur de niveau 1 à votre demande sans contrat de service préalable, les frais d’installation vous seront facturés.
T2 : Unité remplaçable par l’utilisateur (CRU) de niveau 2. Vous pouvez installer une CRU de niveau 2 vous-même ou demander à Lenovo de l’installer, sans frais supplémentaire, selon le type de service prévu par la garantie de votre serveur.
F : Unité remplaçable sur site (FRU). Seuls les techniciens de maintenance qualifiés sont habilités à installer les FRU.
C : Composants consommables et structurels. L’achat et le remplacement des composants consommables et structurels (par exemple, un obturateur ou un cache) est votre responsabilité. Si Lenovo achète ou installe une pièce structurelle à votre demande, les frais d’installation vous seront facturés.
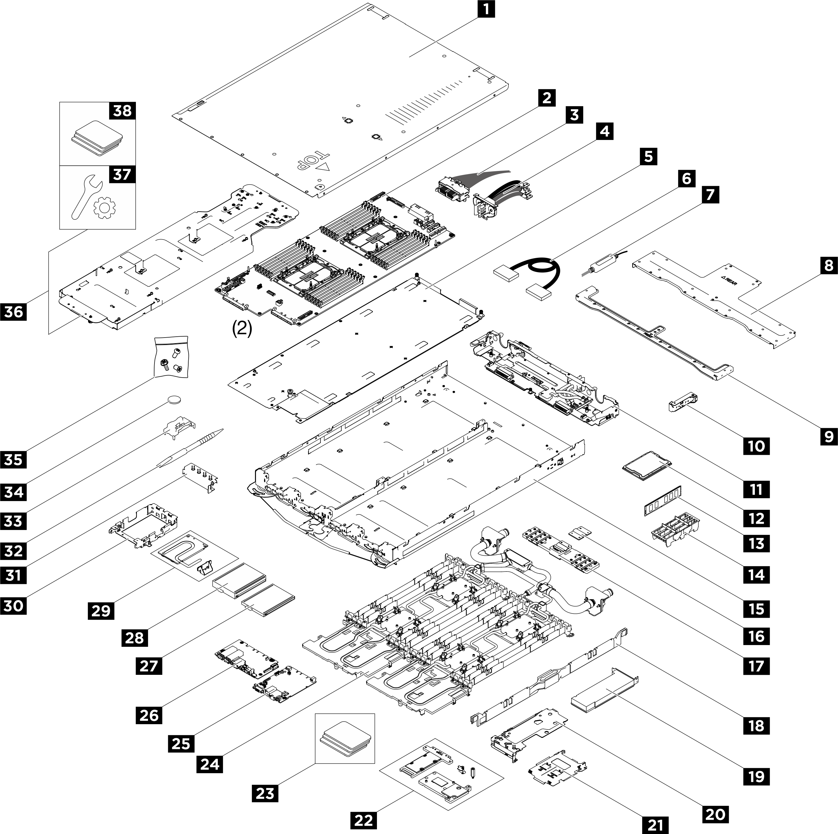
Liste des pièces du SC750 V4

| Index | Description | Type |
|---|---|---|
Pour plus d’informations sur la commande de pièces :
| ||
| 1 | Carter supérieur | F |
| 2 | Carte du processeur | F |
| 3 | Kit de câbles latéraux de gestion du système | F |
| 4 | Module de connecteur de barre de bus | F |
| 5 | Plateau pour la carte du processeur, la carte d’E-S système et la carte d’E-S avant | F |
| 6 | Câble | F |
| 7 | Module de détecteur de fuite | F |
| 8 | Traverse arrière | F |
| 9 | Traverse avant | F |
| 10 | Module infaillible | F |
| 11 | Tableau de distribution | F |
| 12 | Processeur | F |
| 13 | Module de mémoire | F |
| 14 | Capot du module DIMM | F |
| 15 | Plateau de nœud | |
| 16 | Couvercle de la plaque de conduction VR | F |
| 17 | Plaque de conduction VR | F |
| 18 | Barre de refroidissement DIMM | F |
| 19 | Boîtier de carte mezzanine PCIe | F |
| 20 | Adaptateur PCIe | F |
| 21 | Boîtier d’unités de disque dur E3.s central | F |
| 22 | Plaque de conduction des composants | F |
| 23 | Tampon d’espace de composant, tampon de mastic ou tampon d’espace à usage unique | F |
| 24 | Boucle d'eau | F |
| 25 | Carte d’E-S système (DCSCM) | F |
| 26 | Carte d’E-S avant | F |
| 27 | Unité E3.S 1T | F |
| 28 | Unité E3.S 2T | F |
| 29 | Dissipateur thermique d’unité E3.S | F |
| 30 | Boîtier d’unités de disque dur E3.s avant | F |
| 31 | Obturateur de panneau | F |
| 32 | Outil DIMM | F |
| 33 | Ensemble DIMM | F |
| 34 | Pile CMOS | F |
| 35 | Vis | F |
| 36 | Kit de maintenance de la boucle d’eau | F |
| 37 | Kit de pièces diverses | F |
| 38 | Kit de tampon d’espace de la boucle d’eau | F |