부품 목록
부품 목록을 사용하여 솔루션에서 사용 가능한 각 구성 요소를 식별하십시오.
부품 주문에 관한 자세한 정보는 다음을 참조하십시오.
Lenovo 데이터 센터 지원 페이지로 이동한 후 솔루션의 지원 페이지로 이동하십시오.
를 클릭하십시오.
솔루션의 부품 목록을 보려면 일련 번호를 입력하십시오.
새 부품을 구매하기 전에 Lenovo Capacity Planner를 사용하여 솔루션의 전원 요약 데이터를 확인하는 것이 좋습니다.
주
모델에 따라 일부 솔루션은 그림과 다소 차이가 있을 수 있습니다.
다음 표에 나열된 부품은 다음 중 하나로 식별됩니다.
T1: 계층 1 CRU(고객 교체 가능 유닛). 계층 1 CRU 교체 책임은 사용자에게 있습니다. 서비스 계약 없이 사용자의 요청에 따라 Lenovo에서 계층 1 CRU를 설치할 경우 설치 요금이 부과됩니다.
T2: 계층 2 CRU(고객 교체 가능 유닛). 계층 2 CRU를 직접 설치하거나 서버에 지정된 보증 서비스 유형에 따라 추가 비용 없이 Lenovo에 설치를 요청할 수 있습니다.
F: FRU(현장 교체 가능 유닛). FRU는 숙련된 서비스 기술자만 설치할 수 있습니다.
C: 소모품 및 구조 부품. 소모품 및 구조 부품(필터 또는 베젤과 같은 구성 요소)의 구매 및 교체 책임은 사용자에게 있습니다. 사용자의 요청에 따라 Lenovo에서 구조 구성 요소를 구매하거나 설치할 경우 서비스 요금이 부과됩니다.
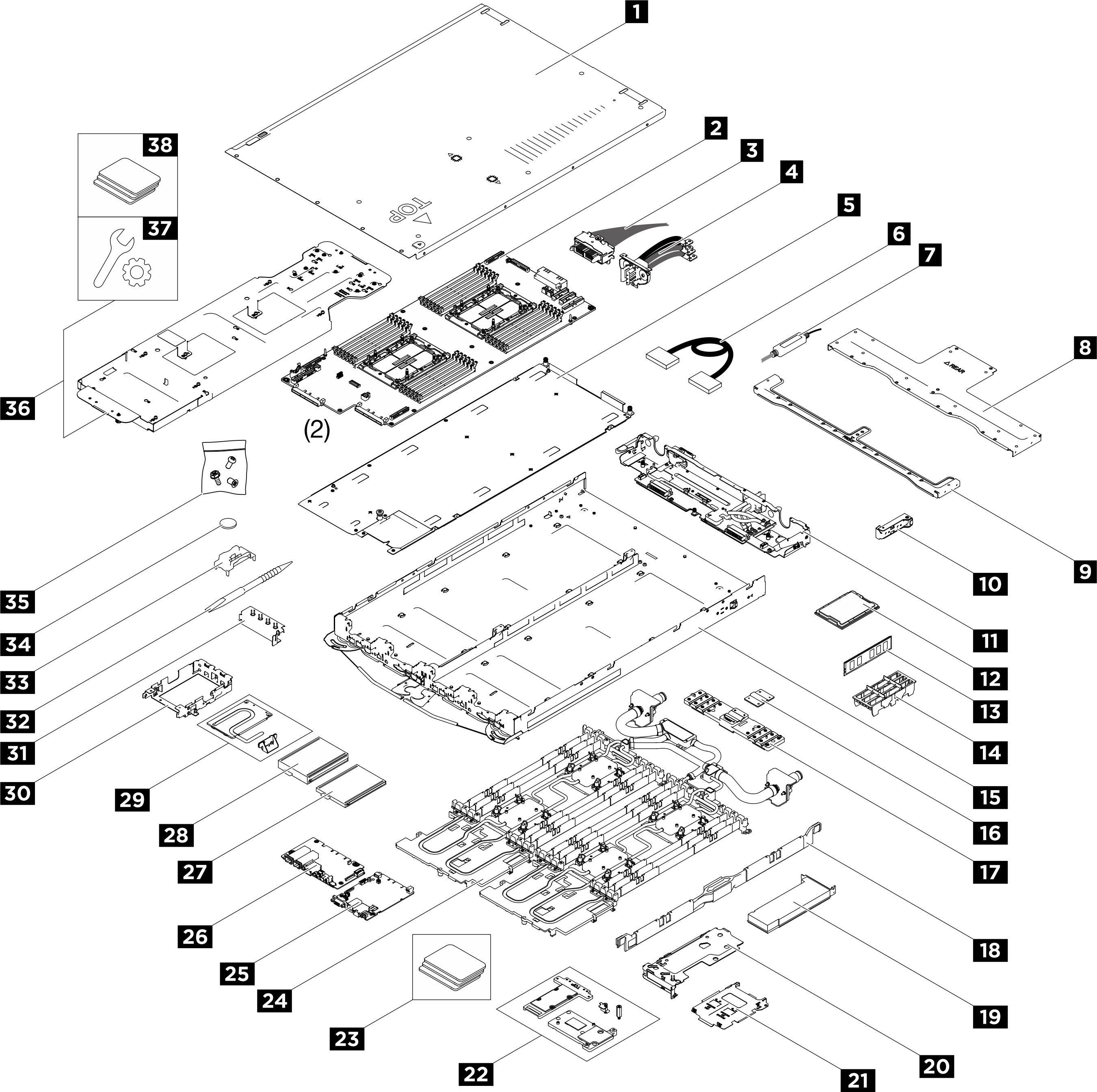
SC750 V4 부품 목록

| 색인 | 설명 | 유형 |
|---|---|---|
부품 주문에 관한 자세한 정보는 다음을 참조하십시오.
| ||
| 1 | 윗면 덮개 | F |
| 2 | 프로세서 보드 | F |
| 3 | 시스템 관리 사이드밴드 케이블 키트 | F |
| 4 | 버스 바 커넥터 모듈 | F |
| 5 | 프로세서 보드, 시스템 I/O 보드 및 앞면 I/O 보드용 트레이 | F |
| 6 | 케이블 | F |
| 7 | 누수 센서 모듈 | F |
| 8 | 뒷면 십자형 브레이스 | F |
| 9 | 앞면 십자형 브레이스 | F |
| 10 | 실수 방지 모듈 | F |
| 11 | 전원 분배 보드 | F |
| 12 | 프로세서 | F |
| 13 | 메모리 모듈 | F |
| 14 | DIMM 덮개 | F |
| 15 | 노드 트레이 | |
| 16 | VR 전도판 덮개 | F |
| 17 | VR 전도판 | F |
| 18 | DIMM 냉각 바 | F |
| 19 | PCIe 라이저 케이지 | F |
| 20 | PCIe 어댑터 | F |
| 21 | 중간 E3.S 드라이브 케이지 | F |
| 22 | 구성 요소 전도판 | F |
| 23 | 구성 요소 갭 패드, 퍼티 패드 또는 일회용 갭 패드 | F |
| 24 | 워터 루프 | F |
| 25 | 시스템 I/O 보드(DCSCM) | F |
| 26 | 앞면 I/O 보드 | F |
| 27 | E3.S 1T 드라이브 | F |
| 28 | E3.S 2T 드라이브 | F |
| 29 | E3.S 드라이브 방열판 | F |
| 30 | 앞면 E3.S 드라이브 케이지 | F |
| 31 | 빈 베젤 필러 | F |
| 32 | DIMM 도구 | F |
| 33 | DIMM 콤 | F |
| 34 | CMOS 배터리 | F |
| 35 | 나사 | F |
| 36 | 워터 루프 서비스 키트 | F |
| 37 | 기타 부품 키트 | F |
| 38 | 워터 루프 갭 패드 키트 | F |
피드백 보내기