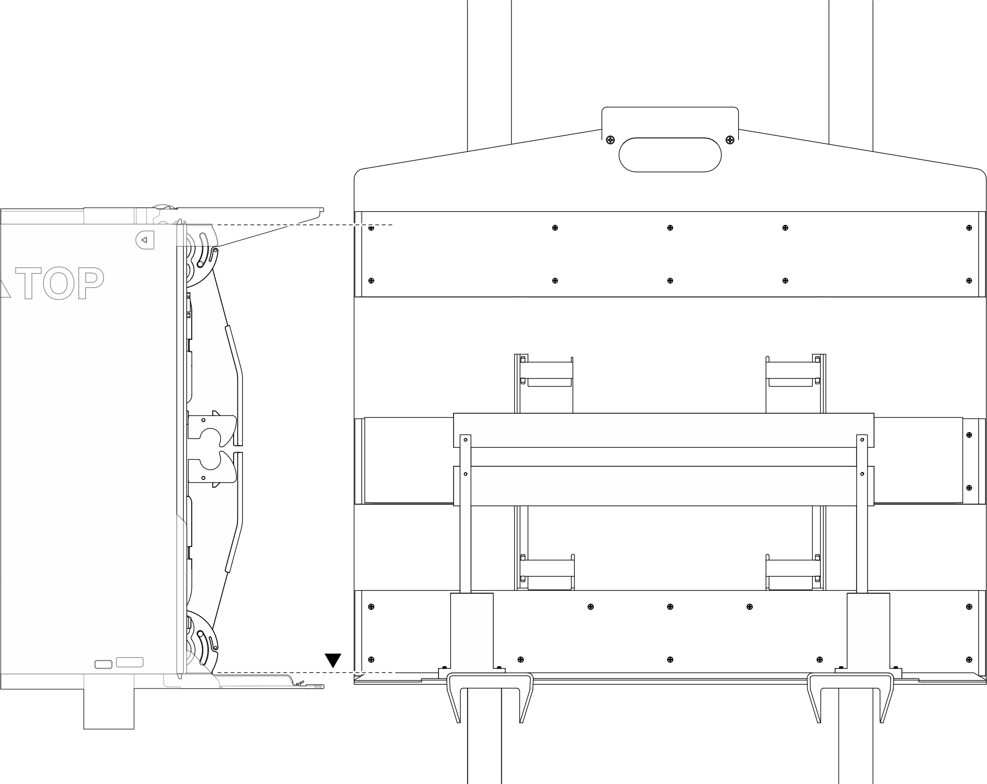
Einbaurahmen aus dem Gehäuse entfernen
Mithilfe der Informationen in diesem Abschnitt können Sie den DWC Einbaurahmen aus dem Gehäuse entfernen.
Zu dieser Aufgabe
Hebevorrichtungsbaugruppe
Genie GL-8-Hebevorrichtung, installiert mit der Hebevorrichtungsbefestigung. Die fußbetätigte Haltebremse sollte ebenfalls an der Hebevorrichtung befestigt werden.
Montageanleitungen finden Sie unter Hebevorrichtungsbaugruppe einrichten.
Baugruppe des Drehhaltevorrichtungswagens
Drehhaltevorrichtung, die auf dem angepassten Wagen installiert ist.
Montageanleitungen finden Sie unter Baugruppe des Drehhaltevorrichtungswagens einrichten.
Informationen zur Bestellung von obligatorischen Werkzeugen finden Sie unter ThinkSystem-Serveroptionen.


Lesen Sie Installationsrichtlinien und Sicherheitsprüfungscheckliste, um sicherzustellen, dass Sie sicher arbeiten.
Schalten Sie den entsprechenden DWC Einbaurahmen aus, auf dem Sie die Aufgabe ausführen werden. Siehe Lösung ausschalten.
Ziehen Sie alle externen Kabel vom Gehäuse ab.
Ziehen Sie die QSFP-Kabel von der Lösung ab. Dies erfordert zusätzliche Kraft.
Ihre Hardware unterscheidet sich möglicherweise leicht von den folgenden Abbildungen, jedoch ist die Methode zum Entfernen identisch.

Öffnen der Kabelhalterung
Drücken Sie die Kabelhalterung nach unten.
Ziehen Sie die Kabelhalterung nach rechts und dann nach oben.
Schließen der Kabelhalterung
Ziehen Sie die Kabelhalterung nach rechts und dann nach unten.
Ziehen Sie die Kabelhalterung nach links, um sie an der Halterung zu befestigen.
- Ein Video zu diesem Verfahren ist auf YouTube.
Vorgehensweise

Der Einbaurahmen könnte sehr heiß sein. Warten Sie einige Minuten, um den Einbaurahmen abkühlen zu lassen, bevor Sie dessen Abdeckung entfernen.
Wenn Sie angewiesen werden, die Komponente oder die Zusatzeinrichtung einzusenden, befolgen Sie die Verpackungsanweisungen und verwenden Sie ggf. das mitgelieferte Verpackungsmaterial für den Transport.

























