Retrait d’un plateau du boîtier
Les informations suivantes vous indiquent comment retirer un plateau DWC du boîtier.
À propos de cette tâche
Assemblage d’outil de levage
Outil de levage Genie GL-8 installé avec le dispositif d’outil de levage. Le frein à pied doit également être fixé à l’outil de levage.
Pour les instructions de montage, voir Mise en place de l’assemblage d’outil de levage
Assemblage du chariot du dispositif rotatif
Dispositif rotatif installé sur le chariot personnalisé.
Pour les instructions de montage, voir Mise en place de l’assemblage du chariot de dispositif rotatif
Pour plus d’informations sur la commande des outils obligatoires, voir Options de serveur ThinkSystem.


Lisez Conseils d’installation et Liste de contrôle d’inspection de sécurité pour vous assurer que vous travaillez en toute sécurité.
Mettez hors tension le plateau DWC correspondant sur lequel vous allez exécuter la tâche. Voir Mise hors tension de la solution.
Débranchez tous les câbles externes du boîtier.
Exercez une force supplémentaire pour déconnecter les câbles QSFP éventuellement connectés à la solution.
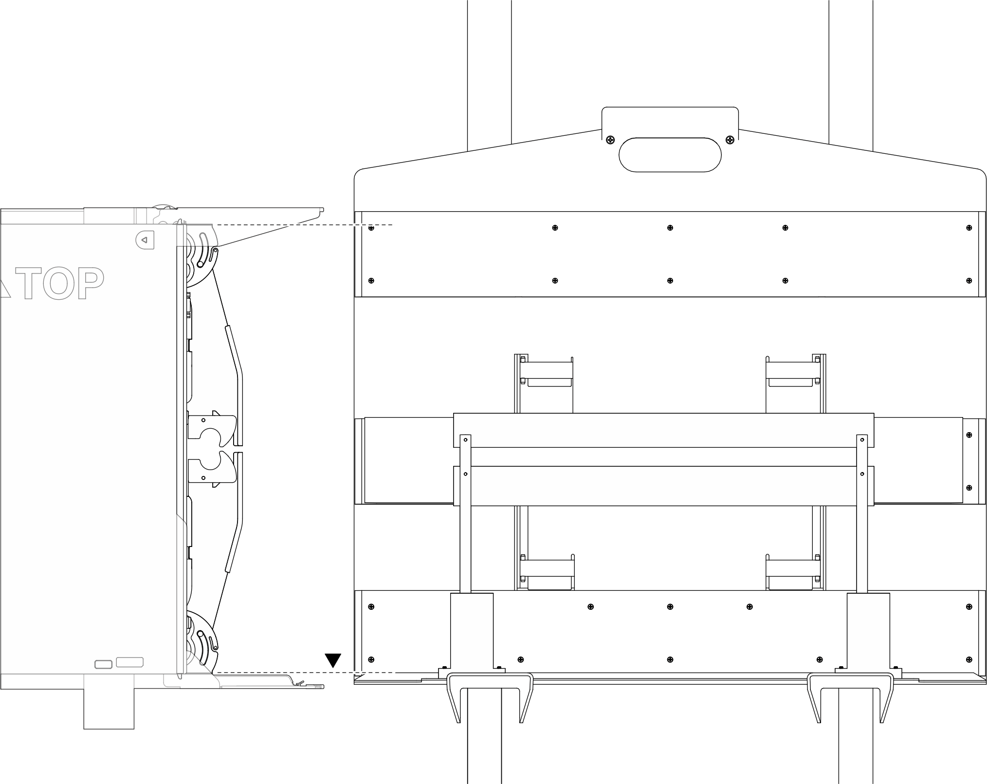
Il se peut que la figure suivante ne corresponde pas exactement à votre configuration matérielle, mais la méthode de retrait est identique.

Ouverture du dispositif de retenue du câble
Appuyez sur le dispositif de retenue des câbles.
Tirez le dispositif de retenue de câbles vers la droite. Ensuite, tirez-le vers le haut.
Fermeture du dispositif de retenue du câble
Tirez le dispositif de retenue de câbles vers la droite. Ensuite, appuyez dessus.
Tirez le dispositif de retenue des câbles vers la gauche pour le fixer au support.
- Une vidéo de cette procédure est disponible sur YouTube.
Procédure

Il est possible que le plateau soit très chaud. Patientez quelques minutes pour laisser refroidir le plateau avant de retirer le couvercle du plateau.
Si vous devez renvoyer le composant ou le périphérique en option, suivez les instructions d’emballage et utilisez les matériaux que vous avez reçus pour l’emballer.

























