Vorderansicht des Gehäuses
In der folgenden Abbildung sind die Steuerelemente, Anzeigen und Anschlüsse an der Vorderseite der Lösung dargestellt.
Anmerkung
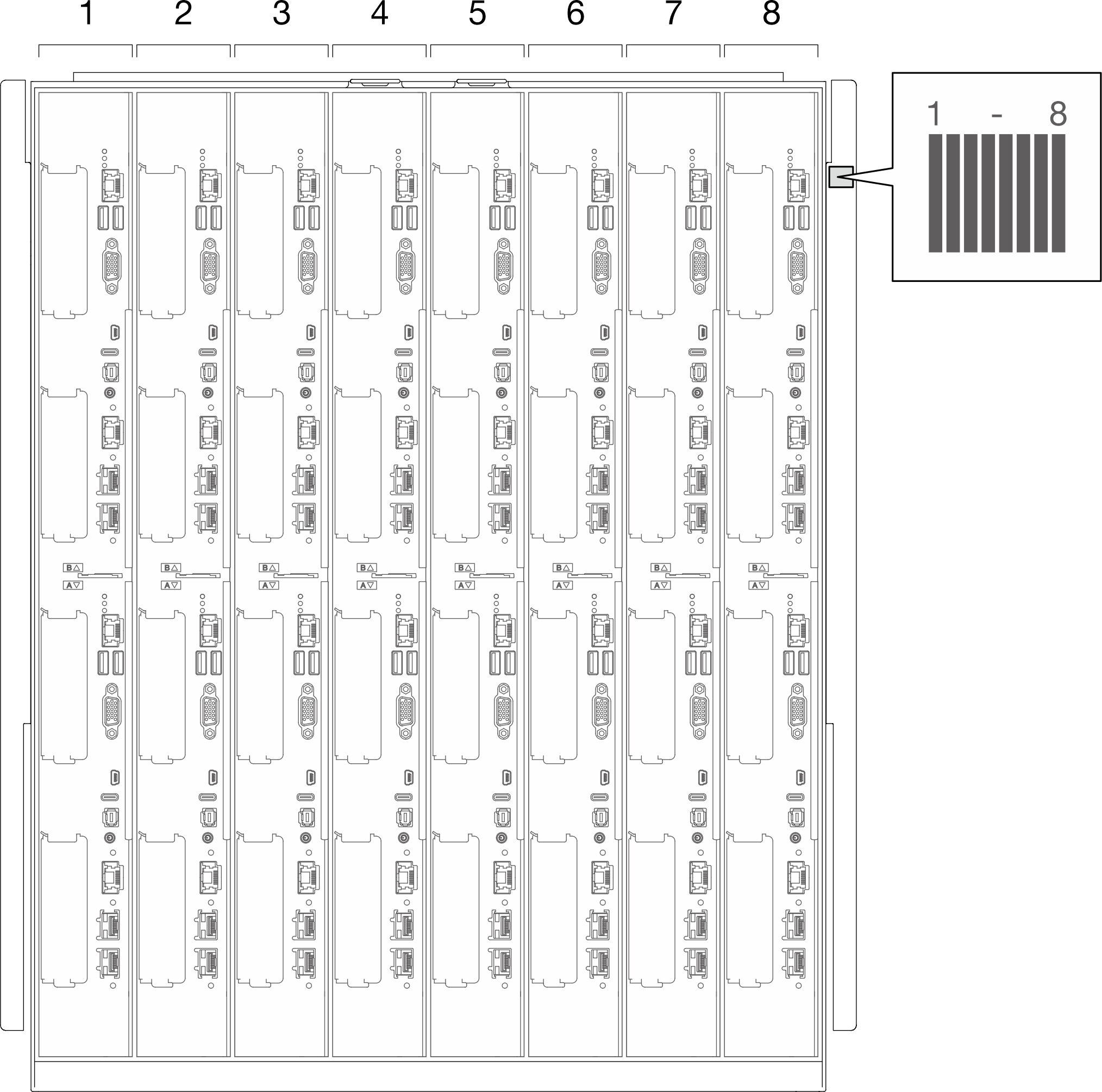
Das 13U-Gehäuse unterstützt bis zu acht Einbaurahmen, wie in der folgenden Abbildung dargestellt.
Jeder Einbaurahmen enthält zwei Knoten: Knoten A und Knoten B. Knoten A ist der untere Knoten und Knoten B ist der obere Knoten, wenn der Einbaurahmen von der Vorderseite des Gehäuses aus betrachtet wird.
Die Steckplatznummern im Einbaurahmen sind auf der Vorderseite des Gehäuses angegeben. Ein Etikett mit der Steckplatznummerierung im Einbaurahmen ist ebenfalls angebracht.
Die Abbildungen in diesem Dokument können von Ihrer Hardware geringfügig abweichen.
Abbildung 1. Vorderansicht des Gehäuses


Feedback geben