Vue avant du boîtier
La figure ci-après présente les boutons de commande, les voyants et les connecteurs figurant à l'avant de la solution.
Remarque
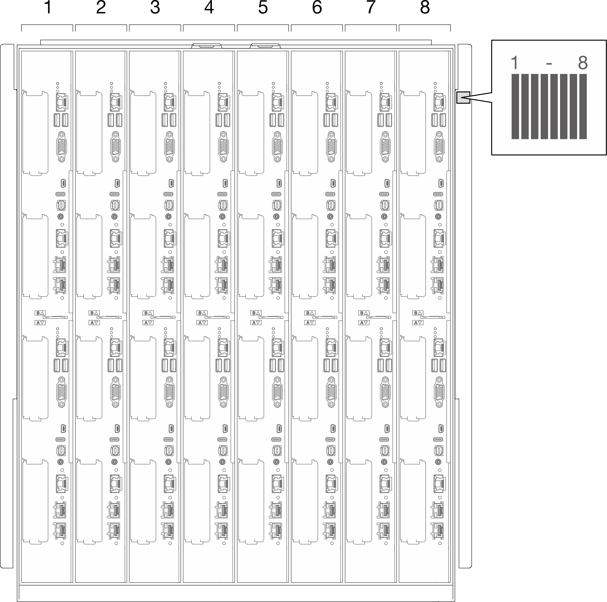
Le boîtier 13U prend en charge jusqu’à huit plateaux, comme indiqué sur l’illustration ci-dessous.
Chaque plateau contient deux nœuds : le nœud A et le nœud B. Le nœud A est le nœud inférieur et le nœud B est le nœud supérieur lorsque vous visualisez le plateau depuis l’avant du boîtier.
Les numéros d’emplacement des plateaux sont indiqués sur la face avant du boîtier. Une étiquette de numérotation des emplacements des plateaux est également fixée au boîtier.
Il se peut que les figures contenues dans le présent document ne correspondent pas exactement à votre configuration matérielle.
Figure 1. Vue avant du boîtier


Envoyer des commentaires