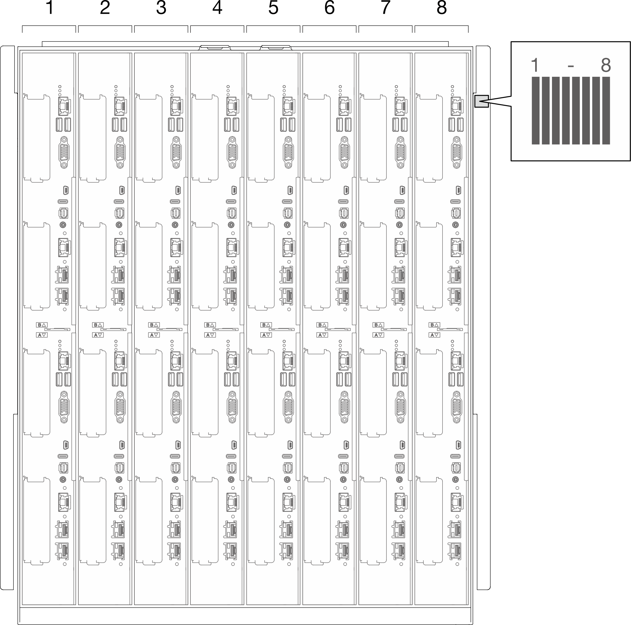
エンクロージャーの前面図
次の図は、ソリューションの前面にあるコントロール、LED、およびコネクターを示したものです。
注
13U エンクロージャーは、以下の図に表示されているように、最大 8 個のトレイをサポートします。
各トレイには、ノード A とノード B の 2 つのノードが含まれます。エンクロージャーの前面からトレイを見たとき、ノード A は下部ノード、ノード B は上部ノードです。
トレイ・スロット番号は、エンクロージャーの前面に示されています。トレイ・スロットの番号ラベルもエンクロージャーに貼付されています。
本書の図は、ご使用のハードウェアと多少異なる場合があります。
図 1. エンクロージャーの前面図


フィードバックを送る