Vista frontal del alojamiento
En la siguiente ilustración se muestran los controles, los LED y los conectores de la parte frontal de la solución.
Nota
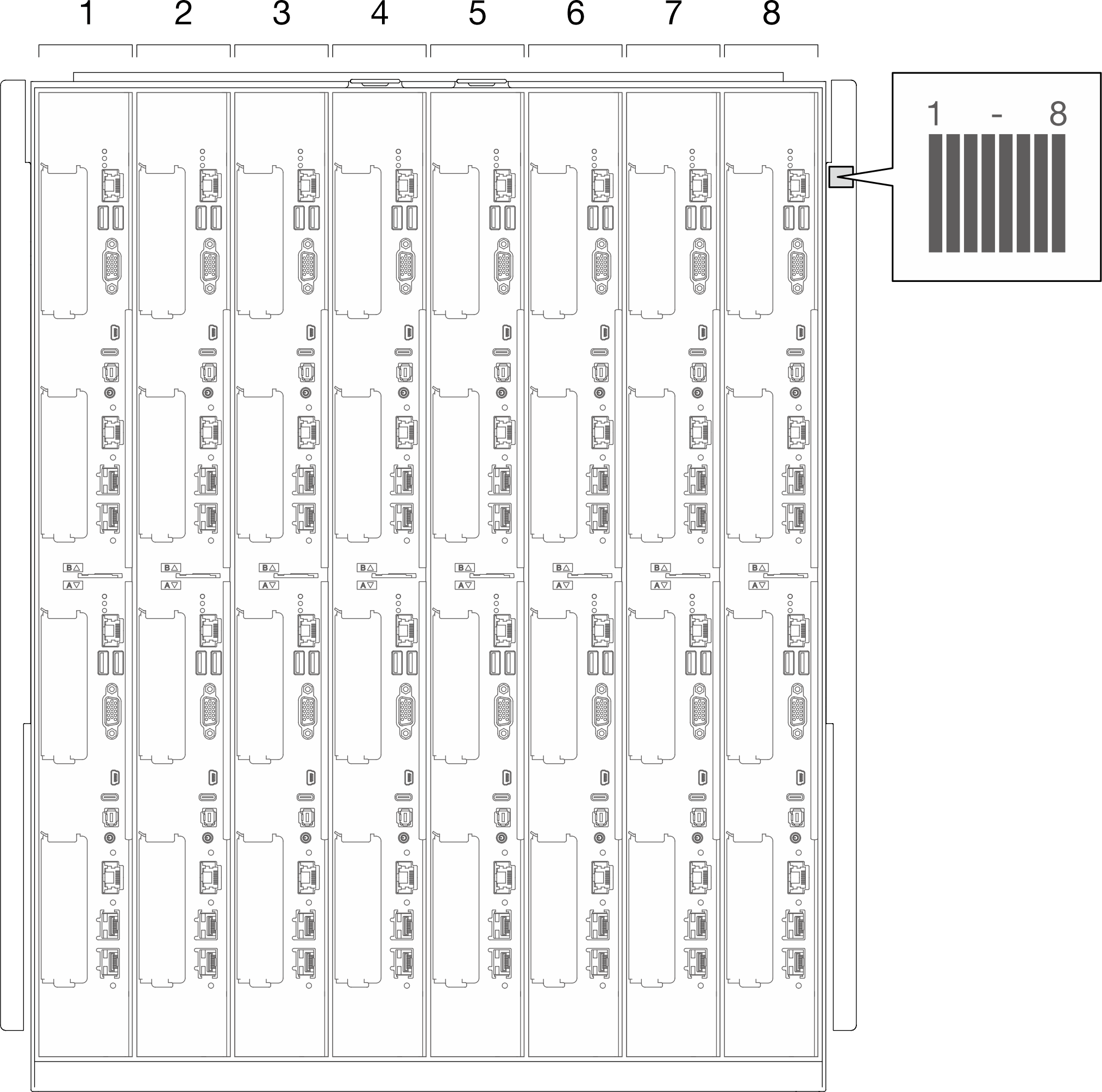
El alojamiento de 13U admite hasta ocho bandejas, tal como se muestra en la siguiente ilustración.
Cada bandeja contiene dos nodos: el nodo A y el nodo B. El nodo A es el nodo inferior y el nodo B es el nodo superior cuando se visualiza la bandeja desde la parte frontal del alojamiento.
Los números de ranura de la bandeja se indican en la parte frontal del alojamiento. También se adhiere al alojamiento una etiqueta con la numeración de las ranuras de la bandeja.
Es posible que las ilustraciones de este documento no correspondan exactamente a su hardware.
Figura 1. Vista frontal del alojamiento


Entregar comentarios