엔클로저 앞면 보기
다음 그림은 솔루션 앞면의 제어 장치와 LED 및 커넥터를 보여줍니다.
주
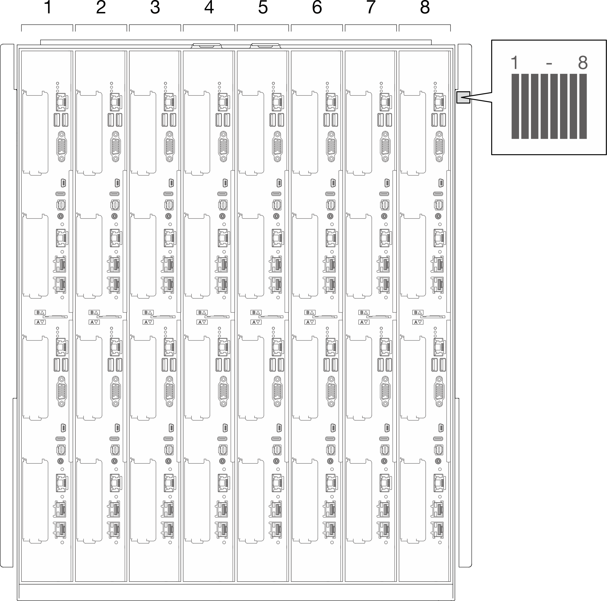
13U 엔클로저는 아래 그림에 표시된 대로 최대 8개의 트레이를 지원합니다.
각 트레이에는 노드 A와 노드 B, 2개의 노드가 있습니다. 엔클로저 앞면에서 트레이를 볼 때 노드 A는 하단 노드이고 노드 B는 상단 노드입니다.
트레이 슬롯 번호는 엔클로저의 앞면에 표시되어 있습니다. 트레이 슬롯 번호 레이블도 엔클로저에 부착되어 있습니다.
이 문서의 그림은 사용자의 하드웨어와 약간 다를 수 있습니다.
그림 1. 엔클로저 앞면 보기


피드백 보내기