Enclosure front view
The following illustration shows the controls, LEDs, and connectors on the front of the solution.
Note
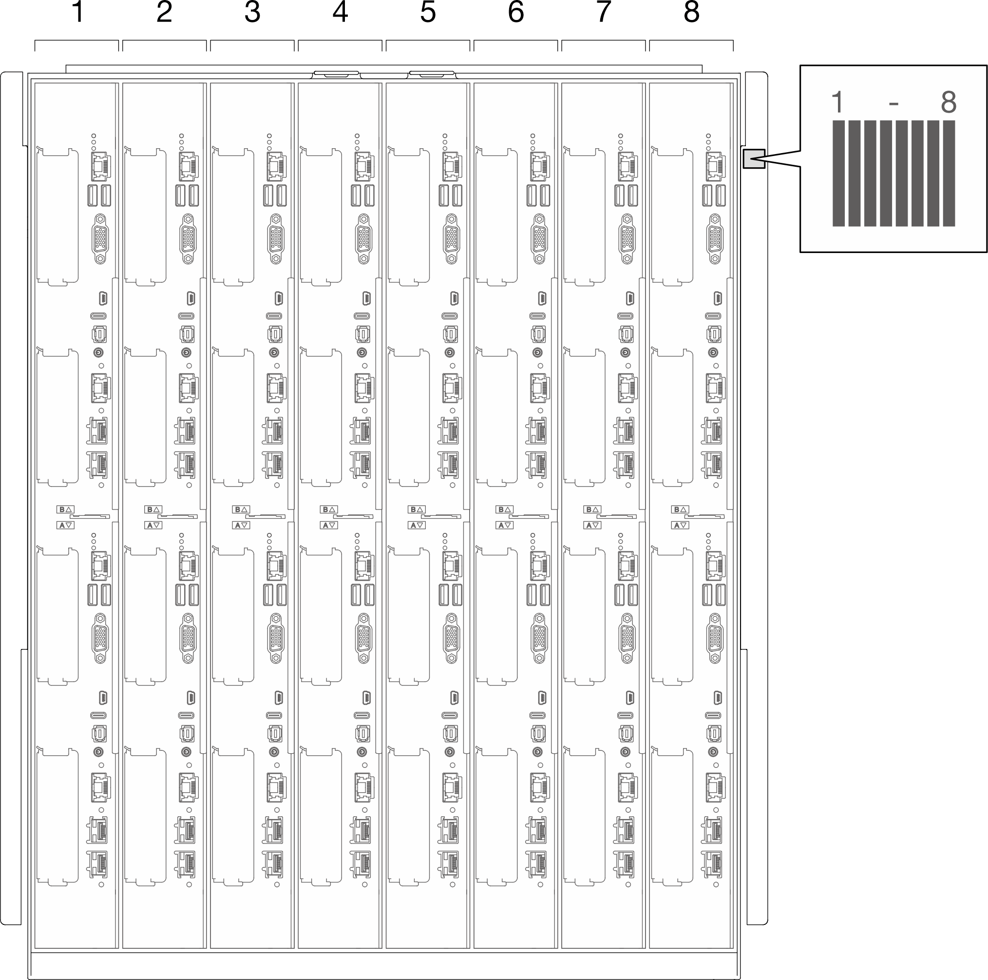
The 13U enclosure supports up to eight trays, as shown in the illustration below.
Each tray contains two nodes: node A and node B. Node A is the bottom node and Node B is the top node when viewing the tray from the front of enclosure.
The tray slot numbers are indicated on the front side of the enclosure. A tray slot numbering label is also attached to the enclosure.
The illustrations in this document might differ slightly from your hardware.
Figure 1. Enclosure front view


Give documentation feedback