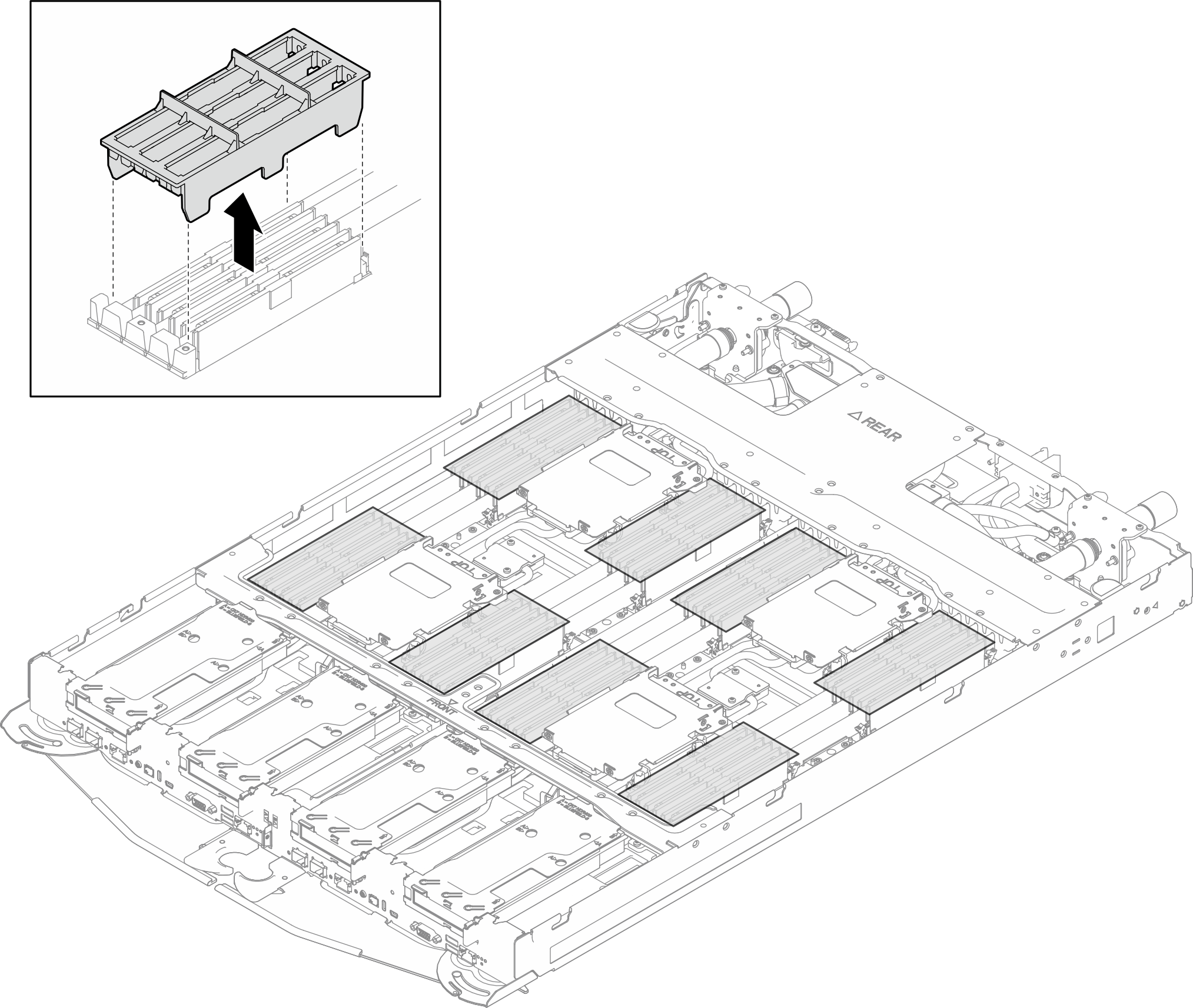
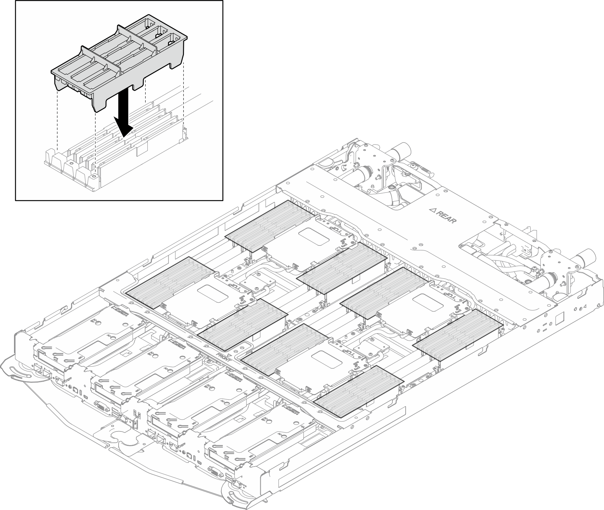
メモリー・モジュール (片面冷却) の取り外し
片面冷却が必要なメモリー・モジュールを取り外すには、以下の情報を参照してください。
32GB、64GB、96GB RDIMM には片面冷却が必要です。(128 GB RDIMM、32 GB MRDIMM、64 GB MRDIMM には、両面冷却が必要です。メモリー・モジュール (両面冷却) の交換を参照)。
このタスクについて
安全に作業を行うために、取り付けのガイドラインおよび 安全検査のチェックリストをお読みください。
タスクを実行しようとしている対応する DWC トレイの電源をオフにします。
エンクロージャーから電源コードとすべてのカイブケーブルを取り外します。
エンクロージャーから電源コードを取り外します。
メモリー・モジュールの取り外しまたは取り付けは、必ず電源コードをシステムから取り外してから 20 秒経過した後に行ってください。これにより、システムが完全に放電されるため、メモリー・モジュールを安全に取り扱うことができます。
QSFP ケーブルがソリューションに接続されている場合、余分な力をかけてケーブルを取り外します。
メモリー・モジュールは静電気放電の影響を受けやすく、特別な取り扱いが必要です。静電気の影響を受けやすいデバイスの取り扱いの標準のガイドライン以外に、以下の指示に従ってください。
メモリー・モジュールの取り外しまたは取り付けの際には、必ず静電放電ストラップを着用してください。静電気放電グローブも使用できます。
2 つ以上のメモリー・モジュールを接触させないでください。保管中にメモリー・モジュールを直接重ねて積み重ねないでください。
金色のメモリー・モジュール・コネクターの接点に触れたり、これらの接点をメモリー・モジュール・コネクターのエンクロージャーの外側に接触させたりしないでください。
メモリー・モジュールを慎重に扱ってください。メモリー・モジュールを曲げたり、ねじったり、落としたりしないでください。

図はご使用のハードウェアと多少異なる場合がありますが、取り付け方法は同じです。
- この手順を説明した動画については、YouTube をご覧ください。
手順
メモリー・モジュールの取り外しまたは取り付けは、必ず電源コードをシステムから取り外してから 20 秒経過した後に行ってください。これにより、システムが完全に放電されるため、メモリー・モジュールを安全に取り扱うことができます。
- メモリー・モジュールを取り付けます。以下を参照してください。
コンポーネントまたはオプション装置を返却するよう指示された場合は、すべての梱包上の指示に従い、提供された配送用の梱包材がある場合はそれを使用してください。











