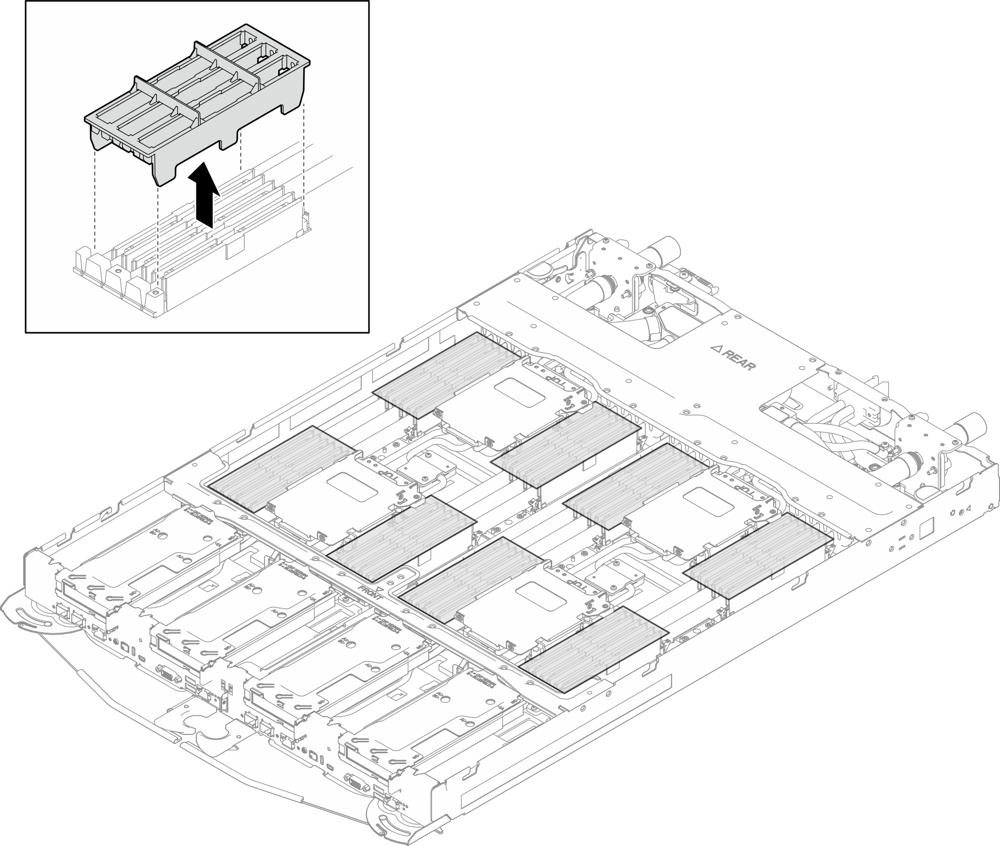
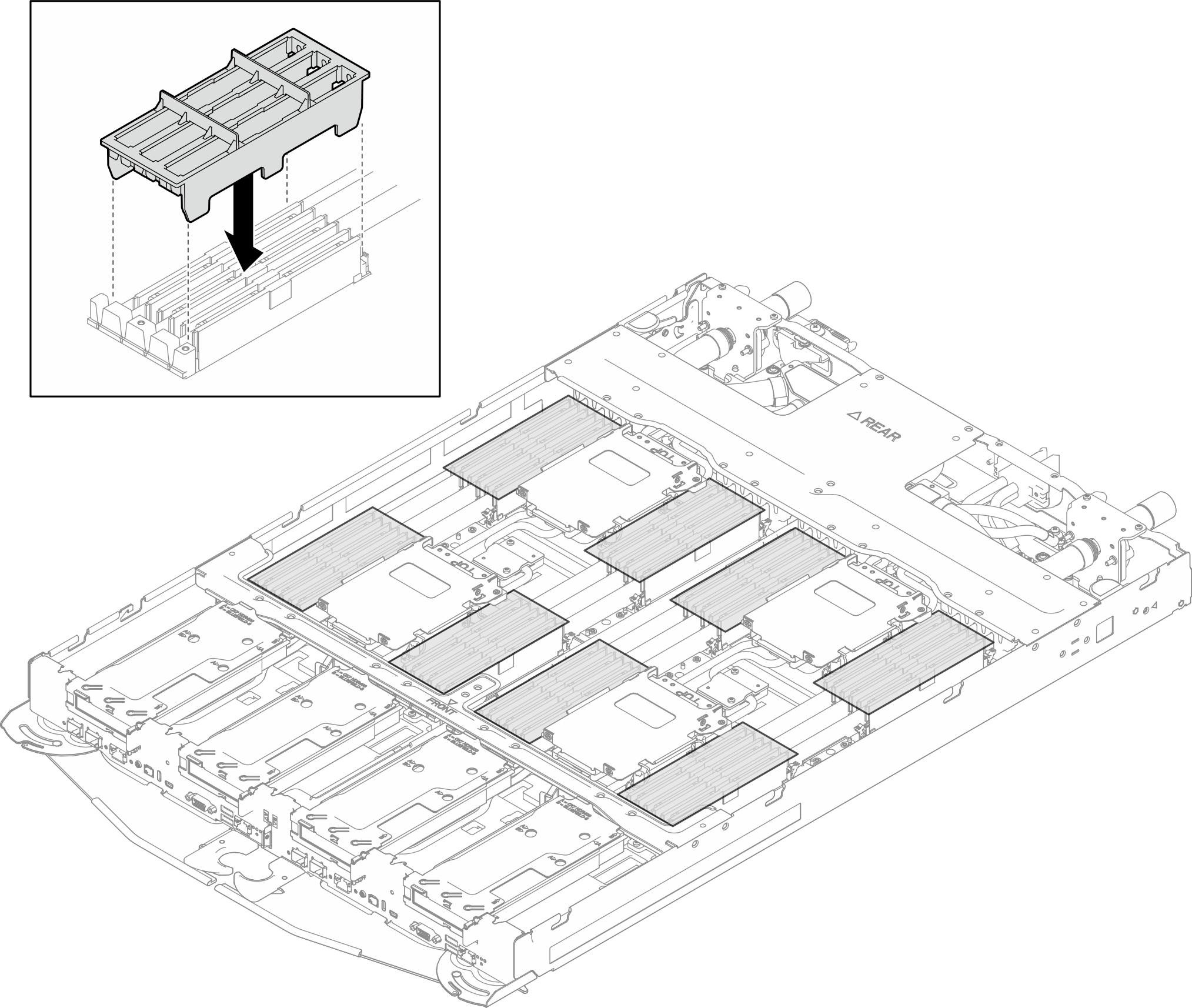
Extracción de un módulo de memoria (refrigeración de un solo lado)
Utilice esta información para quitar un módulo de memoria que requiera refrigeración de un solo lado.
Los RDIMM de 32 GB, 64 GB y 96 GB requieren refrigeración de un solo lado. (RDIMM de 128 GB, MRDIMM de 32 GB, MRDIMM de 64 GB requieren refrigeración de doble lado, consulte Sustitución del módulo de memoria (refrigeración de doble lado).)
Acerca de esta tarea
Lea Directrices de instalación y Lista de comprobación de inspección de seguridad para asegurarse de trabajar con seguridad.
Apague la bandeja DWC correspondiente en la que se va a realizar la tarea.
Desconecte los cables de alimentación y todos los cables externos del alojamiento.
Desconecte los cables de alimentación del alojamiento.
Asegúrese de extraer o instalar el módulo de memoria 20 segundos después de desconectar los cables de alimentación del sistema. Esto permite que el sistema se descargue completamente de electricidad y que sea seguro manipular el módulo de memoria.
Utilice la fuerza adicional para desconectar los cables QSFP si están conectados a la solución.
Los módulos de memoria son sensibles a la descarga estática y requieren una manipulación especial. Además de las directrices estándar para Manipulación de dispositivos sensibles a la electricidad estática:
Siempre use una muñequera antiestática al quitar o instalar los módulos de memoria. También se pueden utilizar guantes antiestática.
Nunca sostenga dos o más módulos de memoria juntos, de forma que entren en contacto. No apile los módulos de memoria directamente uno encima de otro para el almacenamiento.
Nunca toque los contactos dorados de los conectores de los módulos de memoria ni permita que estos contactos toquen la parte exterior del alojamiento de los conectores de los módulos de memoria.
Maneje con cuidado los módulos de memoria: nunca doble, tuerza ni deje caer un módulo de memoria.

Es posible que la ilustración siguiente sea ligeramente diferente de su hardware, pero el método de instalación es el mismo.
- Un video de este procedimiento está disponible en YouTube.
Procedimiento
Asegúrese de extraer o instalar el módulo de memoria 20 segundos después de desconectar los cables de alimentación del sistema. Esto permite que el sistema se descargue completamente de electricidad y que sea seguro manipular el módulo de memoria.
- Instale un módulo de memoria, consulte:
Si se le indica que devuelva el componente o dispositivo opcional, siga todas las instrucciones del embalaje y utilice los materiales de embalaje para el envío que se le suministraron.











