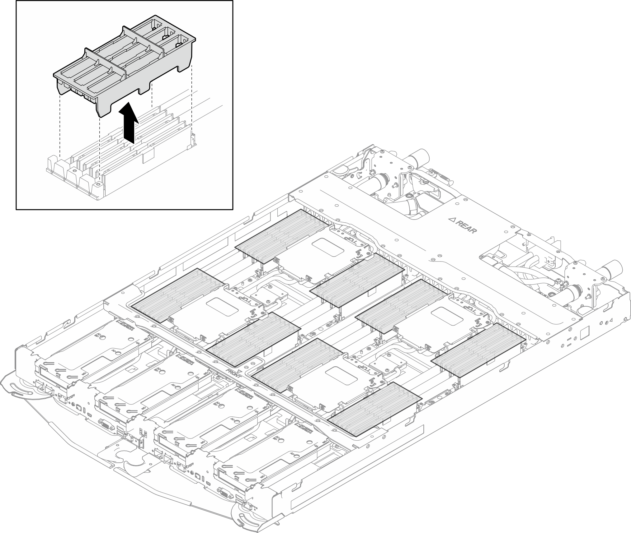
Remove a memory module (single-side cooling)
Use this information to remove a memory module that requires single-side cooling.
32GB, 64GB, and 96GB RDIMM require single-side cooling. (128GB RDIMM, 32GB MRDIMM, 64GB MRDIMM require dual-side cooling, refer to Memory module (dual-side cooling) replacement.)
About this task
Read Installation Guidelines and Safety inspection checklist to ensure that you work safely.
Turn off the corresponding DWC tray that you are going to perform the task on.
Disconnect the power cords and all external cables from the enclosure.
Disconnect the power cords from the enclosure.
Make sure to remove or install memory module 20 seconds after disconnecting power cords from the system. It allows the system to be completely discharged of electricity and safe for handling memory module.
Use extra force to disconnect QSFP cables if they are connected to the solution.
Memory modules are sensitive to static discharge and require special handling. In addition to the standard guidelines for Handling static-sensitive devices:
Always wear an electrostatic-discharge strap when removing or installing memory modules. Electrostatic-discharge gloves can also be used.
Never hold two or more memory modules together so that they touch. Do not stack memory modules directly on top of each other during storage.
Never touch the gold memory module connector contacts or allow these contacts to touch the outside of the memory-module connector housing.
Handle memory modules with care: never bend, twist, or drop a memory module.

The following illustration might differ slightly from your hardware, but the installation method is the same.
- A video of this procedure is available at YouTube.
 
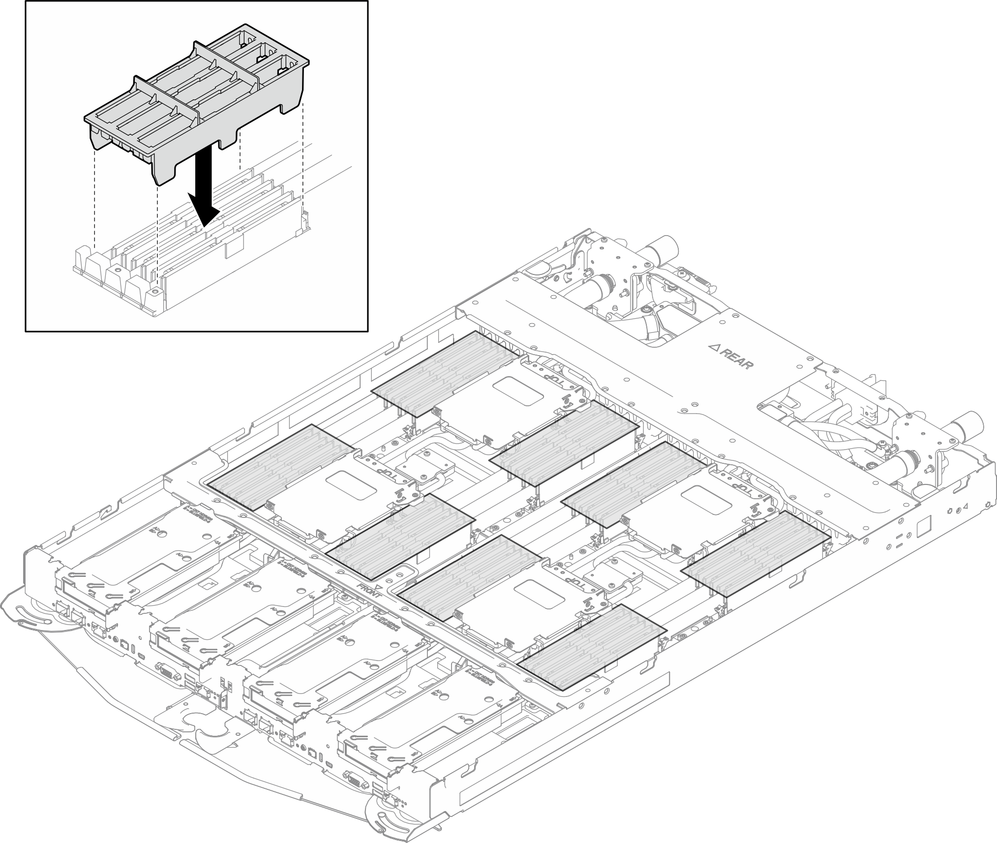
Procedure
Make sure to remove or install memory module 20 seconds after disconnecting power cords from the system. It allows the system to be completely discharged of electricity and safe for handling memory module.
- Install a memory module, see:
 If you are instructed to return the component or optional device, follow all packaging instructions, and use any packaging materials for shipping that are supplied to you.











