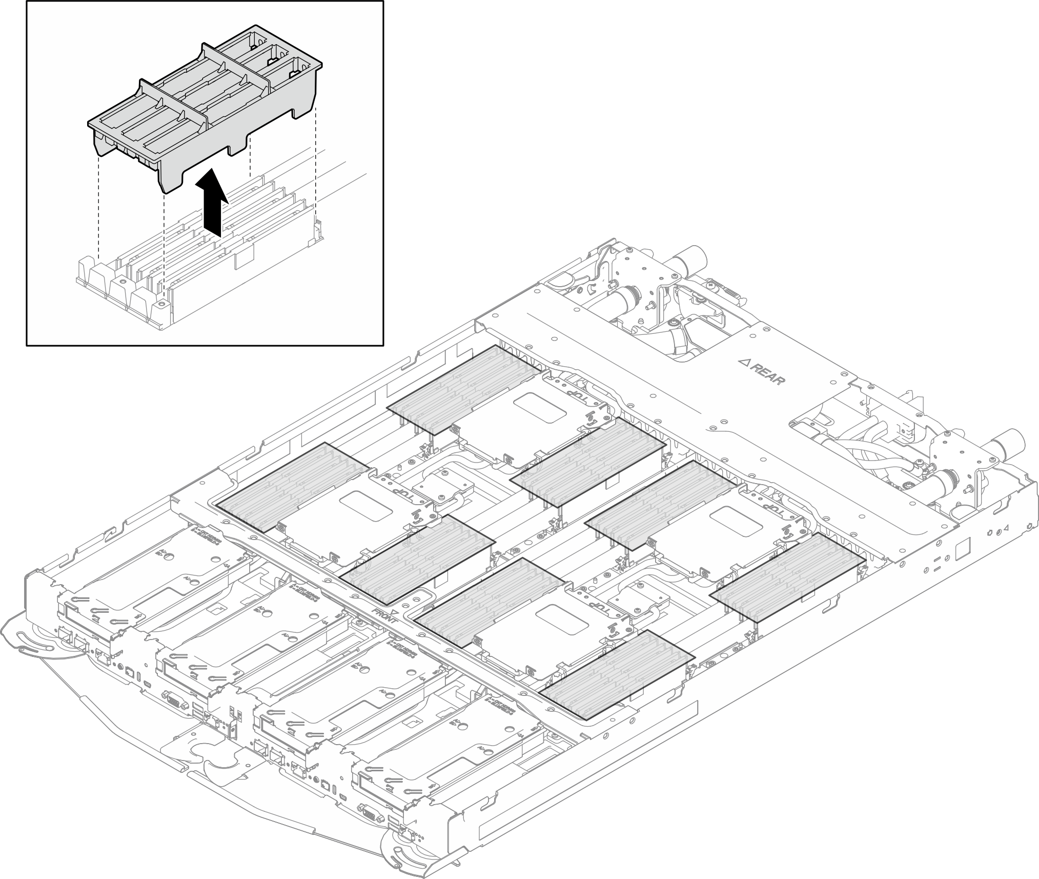
Retrait d’un module de mémoire (refroidissement d’un seul côté)
Les informations suivantes vous indiquent comment retirer un module de mémoire qui nécessite un refroidissement d’un seul côté.
Les modules RDIMM de 32 Go, 64 Go et 96 Go nécessitent un refroidissement d'un seul côté. (Les modules RDIMM de 128 Go, les modules MRDIMM de 32 Go et 64 Go nécessitent un refroidissement des deux côtés. Voir Remplacement d’un module de mémoire (refroidissement des deux côtés).)
À propos de cette tâche
Lisez Conseils d’installation et Liste de contrôle d’inspection de sécurité pour vous assurer que vous travaillez en toute sécurité.
Mettez hors tension le plateau DWC correspondant sur lequel vous allez exécuter la tâche.
Débranchez les cordons d’alimentation et tous les câbles externes du boîtier.
Débranchez les cordons d’alimentation du boîtier.
Assurez-vous de bien retirer ou d’installer le module de mémoire 20 secondes après avoir débranché les cordons d’alimentation du système. Cela permet au système d’être complètement exempt d’électricité et de pouvoir donc manipuler le module de mémoire en toute sécurité.
Exercez une force supplémentaire pour déconnecter les câbles QSFP éventuellement connectés à la solution.
Les modules de mémoire sont sensibles aux décharges d’électricité statique et ils doivent être manipulés avec précaution. Outre les instructions standard pour Manipulation des dispositifs sensibles à l’électricité statique :
Utilisez toujours un bracelet antistatique lors du retrait ou de l'installation des modules de mémoire. Il est possible d'utiliser des gants antistatiques.
Ne saisissez jamais ensemble deux modules de mémoire ou plus de sorte qu'ils se touchent. N'empilez pas les modules de mémoire directement les uns sur les autres lors du stockage.
Ne touchez jamais les contacts de connecteur de module de mémoire ou laissez les contacts toucher l'extérieur du boîtier de connecteur de module de mémoire.
Manipulez les modules de mémoire avec soin : ne pliez, ne faites pivoter ni ne laissez jamais tomber un module de mémoire.

Il se peut que la figure suivante ne corresponde pas exactement à votre configuration matérielle, mais la méthode d’installation est identique.
- Une vidéo de cette procédure est disponible sur YouTube.
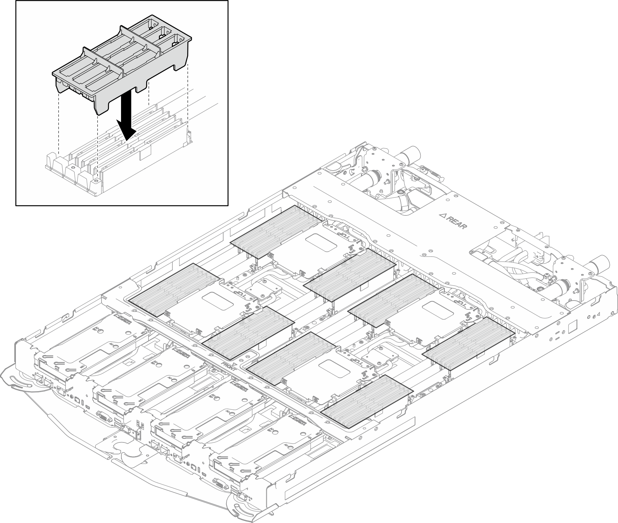
Procédure
Assurez-vous de bien retirer ou d’installer le module de mémoire 20 secondes après avoir débranché les cordons d’alimentation du système. Cela permet au système d’être complètement exempt d’électricité et de pouvoir donc manipuler le module de mémoire en toute sécurité.
- Installez un module de mémoire. Voir :
Si vous devez renvoyer le composant ou le périphérique en option, suivez les instructions d’emballage et utilisez les matériaux que vous avez reçus pour l’emballer.











