4 backplanes SAS/SATA
Esta seção lista os componentes necessários para modelos de servidor com 4 backplanes hot-swap SAS/SATA de 2,5 polegadas.
Conexões entre conectores; 1↔1, 2↔2, 3↔3, ... n↔n
Ao rotear os cabos, certifique-se de que todos os cabos sejam roteados corretamente pelas guias de cabos e presilhas de cabos.
Os cabos em Y são mostrados como cabos individuais nas ilustrações de cada backplane.
Conecte os cabos priorizando adaptadores RAID Gen 4.
Para obter mais informações sobre os cabos usados, consulte Lista de cabos do backplane.
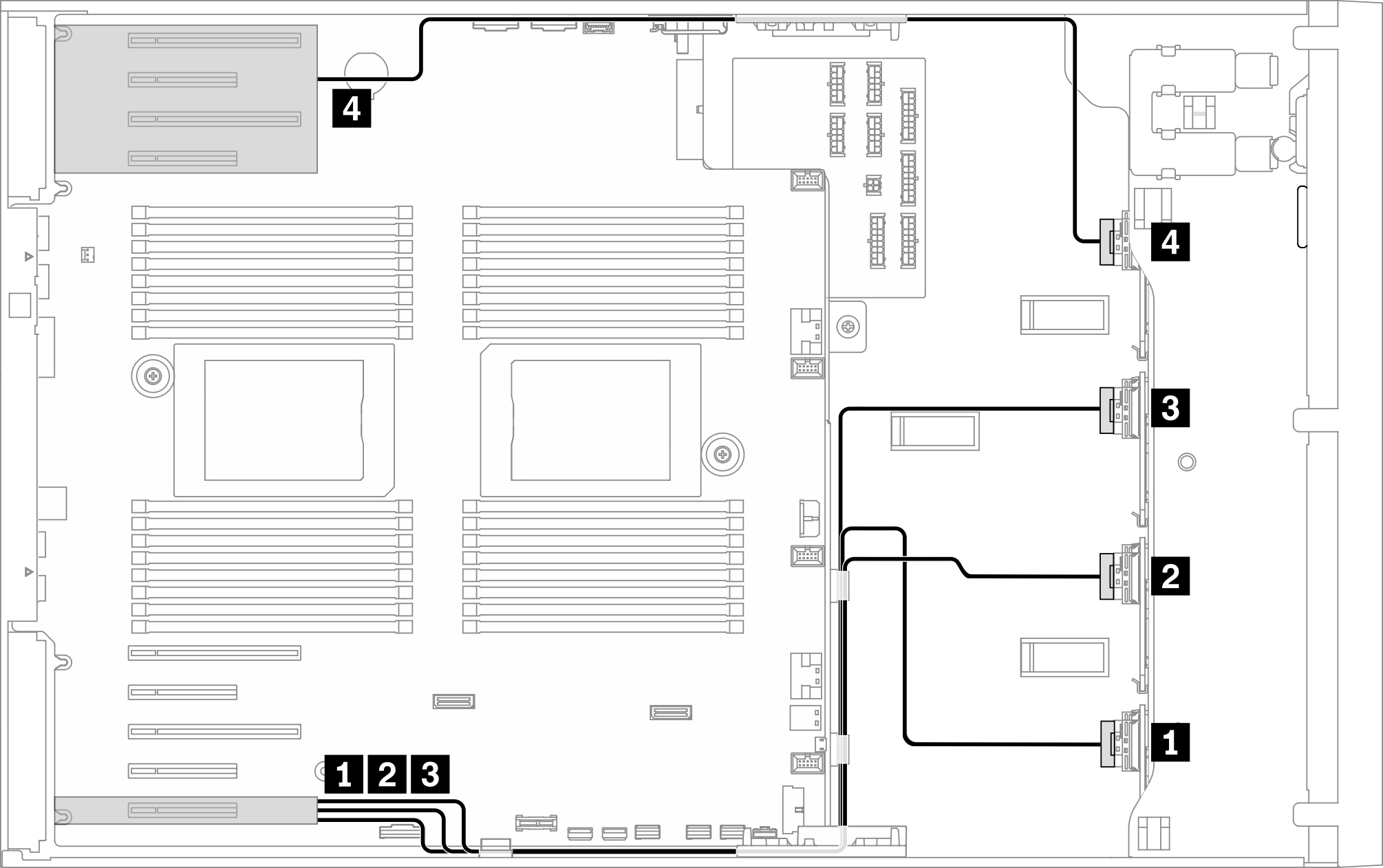
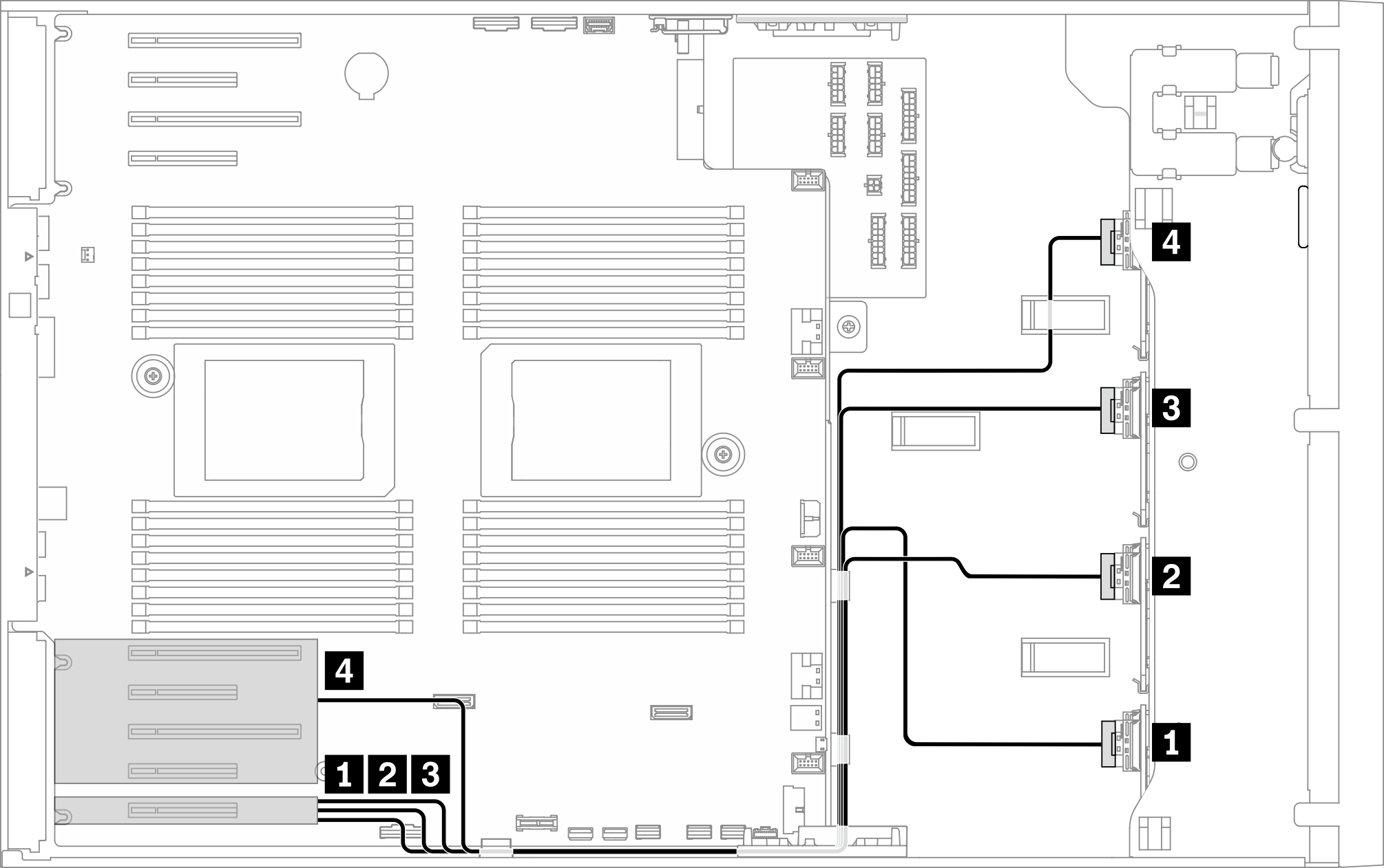
4 RAID/HBA 8i
| Roteamento de cabos SAS/SATA | ||
|---|---|---|
Nota Dependendo da sua configuração, o adaptador será instalado na zona PCIe superior ou na zona PCIe inferior. Figura 1. Roteamento de cabos SAS/SATA para a zona PCIe superior ![]() Figura 2. Roteamento de cabos SAS/SATA para a zona PCIe inferior ![]() | ||
| De | Para | Cabo |
| 1 BP1: SAS/SATA |
|
|
| 2 BP2: SAS/SATA |
|
|
| 3 BP3: SAS/SATA |
|
|
| 4 BP4: SAS/SATA |
|
|
2 RAID/HBA 8i + 1 RAID/HBA 16i
| Roteamento de cabos SAS/SATA | ||
|---|---|---|
Nota Dependendo da sua configuração, o adaptador será instalado na zona PCIe superior ou na zona PCIe inferior. Figura 3. Roteamento de cabos SAS/SATA para a zona PCIe superior ![]() Figura 4. Roteamento de cabos SAS/SATA para a zona PCIe inferior ![]() | ||
| De | Para | Cabo |
| 1 BP1: SAS/SATA |
|
|
| 2 BP2: SAS/SATA |
|
|
| 3 BP3: SAS/SATA |
|
|
| 4 BP4: SAS/SATA |
|
|
1 x RAID/HBA 8i + 1 x RAID/HBA 24i
| Roteamento de cabos SAS/SATA | ||
|---|---|---|
Nota Dependendo da sua configuração, o adaptador será instalado na zona PCIe superior ou na zona PCIe inferior. Figura 5. Roteamento de cabos SAS/SATA para a zona PCIe superior ![]() Figura 6. Roteamento de cabos SAS/SATA para a zona PCIe inferior ![]() | ||
| De | Para | Cabo |
| 1 BP1: SAS/SATA | 24i G3: C0, C1 | Gen 3: Mini-SAS x4*2 para SlimSAS x8 (640 mm) |
| 2 BP2: SAS/SATA | 24i G3: C2, C3 | Gen 3: Mini-SAS x4*2 para SlimSAS x8 (640 mm) |
| 3 BP3: SAS/SATA | 24i G3: C4, C5 | Gen 3: Mini-SAS x4*2 para SlimSAS x8 (930 mm) |
| 4 BP4: SAS/SATA |
|
|
2 x RAID/HBA 8i + 1 x RAID/HBA 24i
| Roteamento de cabos SAS/SATA | ||
|---|---|---|
Nota Dependendo da sua configuração, o adaptador será instalado na zona PCIe superior ou na zona PCIe inferior. Figura 7. Roteamento de cabos SAS/SATA para a zona PCIe superior ![]() Figura 8. Roteamento de cabos SAS/SATA para a zona PCIe inferior ![]() | ||
| De | Para | Cabo |
| 1 BP1: SAS/SATA | 24i G3: C0, C1 | Gen 3: Mini-SAS x4*2 para SlimSAS x8 (640 mm) |
| 2 BP2: SAS/SATA | 24i G3: C2, C3 | Gen 3: Mini-SAS x4*2 para SlimSAS x8 (640 mm) |
| 3 BP3: SAS/SATA |
|
|
| 4 BP4: SAS/SATA |
|
|
2 RAID/HBA 16i
| Roteamento de cabos SAS/SATA | ||
|---|---|---|
Nota Dependendo da sua configuração, o adaptador será instalado na zona PCIe superior ou na zona PCIe inferior. Figura 9. Roteamento de cabos SAS/SATA para a zona PCIe superior ![]() Figura 10. Roteamento de cabos SAS/SATA para a zona PCIe inferior ![]() | ||
| De | Para | Cabo |
| 1 BP1: SAS/SATA |
|
|
| 2 BP2: SAS/SATA |
|
|
| 3 BP3: SAS/SATA |
|
|
| 4 BP4: SAS/SATA |
|
|
1 x RAID/HBA 16i + 1 x RAID/HBA 24i
| Roteamento de cabos SAS/SATA | ||
|---|---|---|
Nota Dependendo da sua configuração, o adaptador será instalado na zona PCIe superior ou na zona PCIe inferior. Figura 11. Roteamento de cabos SAS/SATA para a zona PCIe superior ![]() Figura 12. Roteamento de cabos SAS/SATA para a zona PCIe inferior ![]() | ||
| De | Para | Cabo |
| 1 BP1: SAS/SATA | 24i G3: C0, C1 | Gen 3: Mini-SAS x4*2 para SlimSAS x8 (640 mm) |
| 2 BP2: SAS/SATA | 24i G3: C2, C3 | Gen 3: Mini-SAS x4*2 para SlimSAS x8 (640 mm) |
| 3 BP3: SAS/SATA | G4 16i: C0 | Gen 4: SlimSAS x8 para SlimSAS x8 (720 mm) |
| 4 BP4: SAS/SATA | G4 16i: C1 | Gen 4: SlimSAS x8 para SlimSAS x8 (720 mm) |
2 x 24i RAID/HBA
| Roteamento de cabos SAS/SATA | ||
|---|---|---|
Nota Dependendo da sua configuração, o adaptador será instalado na zona PCIe superior ou na zona PCIe inferior. Figura 13. Roteamento de cabos SAS/SATA para a zona PCIe superior ![]() Figura 14. Roteamento de cabos SAS/SATA para a zona PCIe inferior ![]() | ||
| De | Para | Cabo |
| 1 BP1: SAS/SATA | 24i G3: C0, C1 | Gen 3: Mini-SAS x4*2 para SlimSAS x8 (640 mm) |
| 2 BP2: SAS/SATA | 24i G3: C2, C3 | Gen 3: Mini-SAS x4*2 para SlimSAS x8 (640 mm) |
| 3 BP3: SAS/SATA | 24i G3: C0, C1 | Gen 3: Mini-SAS x4*2 para SlimSAS x8 (930 mm) |
| 4 BP4: SAS/SATA | 24i G3: C2, C3 | Gen 3: Mini-SAS x4*2 para SlimSAS x8 (930 mm) |
1 RAID/HBA 32i
| Roteamento de cabos SAS/SATA | ||
|---|---|---|
Figura 15. Roteamento de cabos SAS/SATA do slot PCIe 9 ![]() | ||
| De | Para | Cabo |
| 1 BP1: SAS/SATA | G4 32i: C0 | SlimSAS x8 para SlimSAS x8 (720 mm) |
| 2 BP2: SAS/SATA | G4 32i: C1 | SlimSAS x8 para SlimSAS x8 (720 mm) |
| 3 BP3: SAS/SATA | G4 32i: C2 | SlimSAS x8 para SlimSAS x8 (720 mm) |
| 4 BP4: SAS/SATA | G4 32i: C3 | SlimSAS x8 para SlimSAS x8 (880 mm) |






