Backplane a 4 vani SAS/SATA
In questa sezione sono elencati i componenti richiesti per i modelli di server con backplane a 4 vani SAS/SATA hot-swap da 2,5 pollici.
Connessioni tra i connettori; 1↔1, 2↔2, 3↔3, ... n↔n
Quando si instradano i cavi, verificare che tutti i cavi siano instradati correttamente attraverso le guide dei cavi e i fermacavi.
I cavi a Y vengono mostrati come cavi singoli nelle figure di ciascun backplane.
Collegare i cavi dando la priorità agli adattatori RAID Gen 4.
Per ulteriori informazioni sui cavi utilizzati, vedere Elenco di cavi per il backplane.
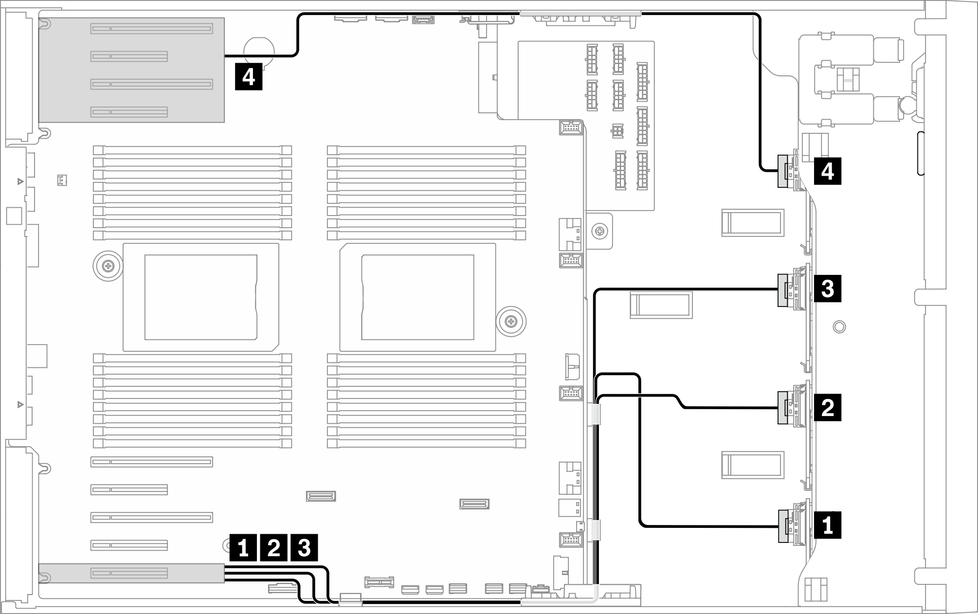
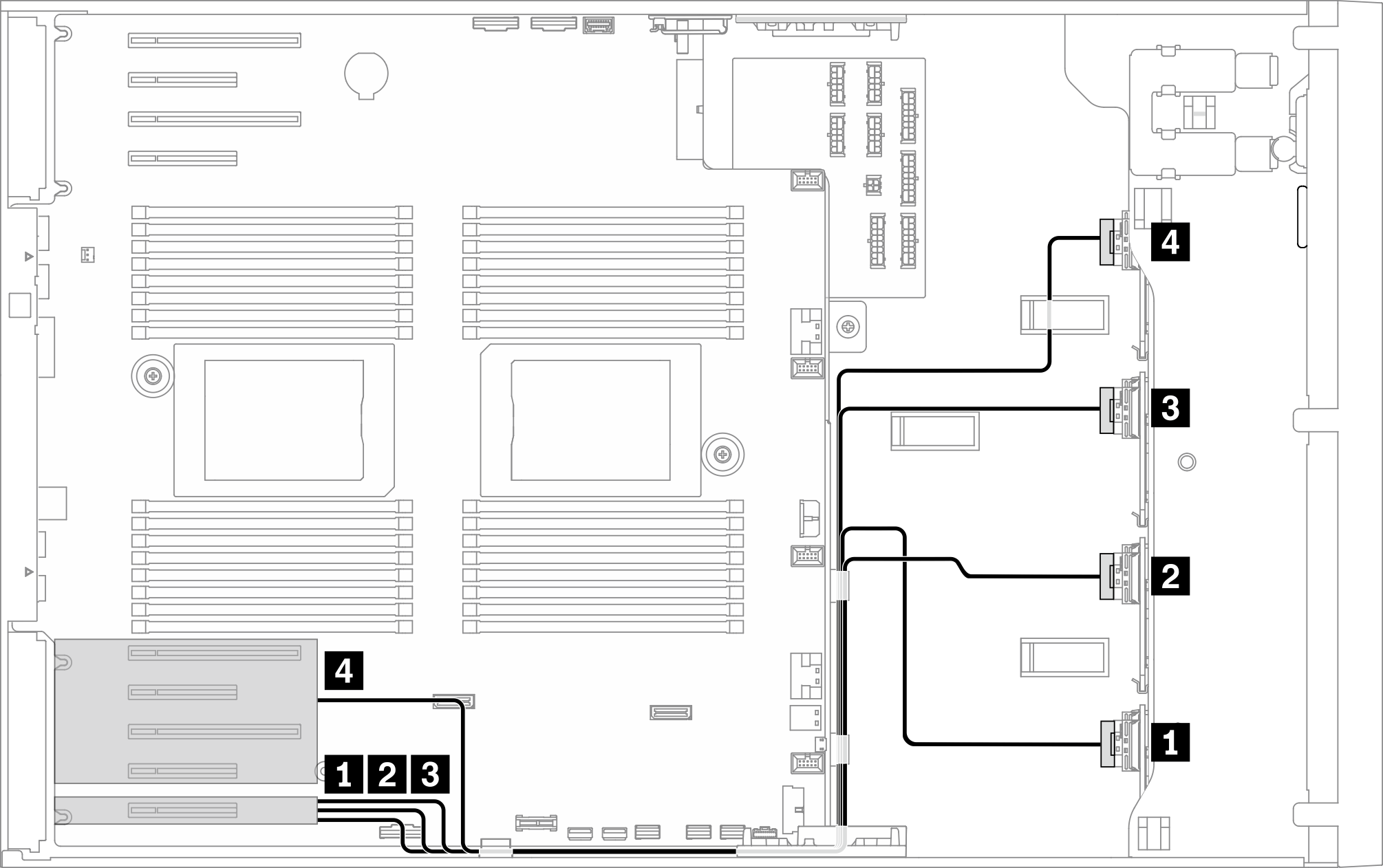
4 RAID/HBA 8i
| Instradamento dei cavi SAS/SATA | ||
|---|---|---|
Nota A seconda della configurazione del server, l'adattatore verrà installato nell'area PCIe superiore o inferiore. Figura 1. Instradamento dei cavi SAS/SATA all'area PCIe superiore ![]() Figura 2. Instradamento dei cavi SAS/SATA all'area PCIe inferiore ![]() | ||
| Da | A | Cavo |
| 1 BP1: SAS/SATA |
|
|
| 2 BP2: SAS/SATA |
|
|
| 3 BP3: SAS/SATA |
|
|
| 4 BP4: SAS/SATA |
|
|
2 RAID/HBA 8i + 1 RAID/HBA 16i
| Instradamento dei cavi SAS/SATA | ||
|---|---|---|
Nota A seconda della configurazione del server, l'adattatore verrà installato nell'area PCIe superiore o inferiore. Figura 3. Instradamento dei cavi SAS/SATA all'area PCIe superiore ![]() Figura 4. Instradamento dei cavi SAS/SATA all'area PCIe inferiore ![]() | ||
| Da | A | Cavo |
| 1 BP1: SAS/SATA |
|
|
| 2 BP2: SAS/SATA |
|
|
| 3 BP3: SAS/SATA |
|
|
| 4 BP4: SAS/SATA |
|
|
1 RAID/HBA 8i + 1 RAID/HBA 24i
| Instradamento dei cavi SAS/SATA | ||
|---|---|---|
Nota A seconda della configurazione del server, l'adattatore verrà installato nell'area PCIe superiore o inferiore. Figura 5. Instradamento dei cavi SAS/SATA all'area PCIe superiore ![]() Figura 6. Instradamento dei cavi SAS/SATA all'area PCIe inferiore ![]() | ||
| Da | A | Cavo |
| 1 BP1: SAS/SATA | 24i G3: C0, C1 | Gen 3: Da Mini-SAS x4*2 a SlimSAS x8 (640 mm) |
| 2 BP2: SAS/SATA | 24i G3: C2, C3 | Gen 3: Da Mini-SAS x4*2 a SlimSAS x8 (640 mm) |
| 3 BP3: SAS/SATA | 24i G3: C4, C5 | Gen 3: Da Mini-SAS x4*2 a SlimSAS x8 (930 mm) |
| 4 BP4: SAS/SATA |
|
|
2 RAID/HBA 8i + 1 RAID/HBA 24i
| Instradamento dei cavi SAS/SATA | ||
|---|---|---|
Nota A seconda della configurazione del server, l'adattatore verrà installato nell'area PCIe superiore o inferiore. Figura 7. Instradamento dei cavi SAS/SATA all'area PCIe superiore ![]() Figura 8. Instradamento dei cavi SAS/SATA all'area PCIe inferiore ![]() | ||
| Da | A | Cavo |
| 1 BP1: SAS/SATA | 24i G3: C0, C1 | Gen 3: Da Mini-SAS x4*2 a SlimSAS x8 (640 mm) |
| 2 BP2: SAS/SATA | 24i G3: C2, C3 | Gen 3: Da Mini-SAS x4*2 a SlimSAS x8 (640 mm) |
| 3 BP3: SAS/SATA |
|
|
| 4 BP4: SAS/SATA |
|
|
2 RAID/HBA 16i
| Instradamento dei cavi SAS/SATA | ||
|---|---|---|
Nota A seconda della configurazione del server, l'adattatore verrà installato nell'area PCIe superiore o inferiore. Figura 9. Instradamento dei cavi SAS/SATA all'area PCIe superiore ![]() Figura 10. Instradamento dei cavi SAS/SATA all'area PCIe inferiore ![]() | ||
| Da | A | Cavo |
| 1 BP1: SAS/SATA |
|
|
| 2 BP2: SAS/SATA |
|
|
| 3 BP3: SAS/SATA |
|
|
| 4 BP4: SAS/SATA |
|
|
1 RAID/HBA 16i + 1 RAID/HBA 24i
| Instradamento dei cavi SAS/SATA | ||
|---|---|---|
Nota A seconda della configurazione del server, l'adattatore verrà installato nell'area PCIe superiore o inferiore. Figura 11. Instradamento dei cavi SAS/SATA all'area PCIe superiore ![]() Figura 12. Instradamento dei cavi SAS/SATA all'area PCIe inferiore ![]() | ||
| Da | A | Cavo |
| 1 BP1: SAS/SATA | 24i G3: C0, C1 | Gen 3: Da Mini-SAS x4*2 a SlimSAS x8 (640 mm) |
| 2 BP2: SAS/SATA | 24i G3: C2, C3 | Gen 3: Da Mini-SAS x4*2 a SlimSAS x8 (640 mm) |
| 3 BP3: SAS/SATA | 16i G4: C0 | Gen 4: Da SlimSAS x8 a SlimSAS x8 (720 mm) |
| 4 BP4: SAS/SATA | 16i G4: C1 | Gen 4: Da SlimSAS x8 a SlimSAS x8 (720 mm) |
2 RAID/HBA 24i
| Instradamento dei cavi SAS/SATA | ||
|---|---|---|
Nota A seconda della configurazione del server, l'adattatore verrà installato nell'area PCIe superiore o inferiore. Figura 13. Instradamento dei cavi SAS/SATA all'area PCIe superiore ![]() Figura 14. Instradamento dei cavi SAS/SATA all'area PCIe inferiore ![]() | ||
| Da | A | Cavo |
| 1 BP1: SAS/SATA | 24i G3: C0, C1 | Gen 3: Da Mini-SAS x4*2 a SlimSAS x8 (640 mm) |
| 2 BP2: SAS/SATA | 24i G3: C2, C3 | Gen 3: Da Mini-SAS x4*2 a SlimSAS x8 (640 mm) |
| 3 BP3: SAS/SATA | 24i G3: C0, C1 | Gen 3: Da Mini-SAS x4*2 a SlimSAS x8 (930 mm) |
| 4 BP4: SAS/SATA | 24i G3: C2, C3 | Gen 3: Da Mini-SAS x4*2 a SlimSAS x8 (930 mm) |
1 RAID/HBA 32i
| Instradamento dei cavi SAS/SATA | ||
|---|---|---|
Figura 15. Instradamento dei cavi SAS/SATA allo slot PCIe 9 ![]() | ||
| Da | A | Cavo |
| 1 BP1: SAS/SATA | 32i G4: C0 | Da SlimSAS x8 a SlimSAS x8 (720 mm) |
| 2 BP2: SAS/SATA | 32i G4: C1 | Da SlimSAS x8 a SlimSAS x8 (720 mm) |
| 3 BP3: SAS/SATA | 32i G4: C2 | Da SlimSAS x8 a SlimSAS x8 (720 mm) |
| 4 BP4: SAS/SATA | 32i G4: C3 | Da SlimSAS x8 a SlimSAS x8 (880 mm) |






