4 x แบ็คเพลน SAS/SATA
ส่วนนี้แสดงรายการส่วนประกอบที่ต้องใช้ในรุ่นเซิร์ฟเวอร์ที่มีแบ็คเพลนแบบ Hot-swap ขนาด 2.5 นิ้ว 4 x SAS/SATA
การเชื่อมต่อระหว่างขั้วต่อ: 1↔1, 2↔2, 3↔3, ... n↔n
เมื่อเดินสาย ตรวจสอบให้แน่ใจว่าเดินสายทั้งหมดอย่างเหมาะสมผ่านช่องร้อยสายและคลิปยึดสาย
สาย Y จะแสดงเป็นสายแยกในภาพประกอบของแบ็คเพลนแต่ละตัว
ต่อสายโดยจัดลำดับความสำคัญของอะแดปเตอร์ RAID Gen 4
ดูข้อมูลเพิ่มเติมเกี่ยวกับสายที่ใช้ได้ที่ รายการสายแบ็คเพลน
4 x 8i RAID/HBA
| การเดินสาย SAS/SATA | ||
|---|---|---|
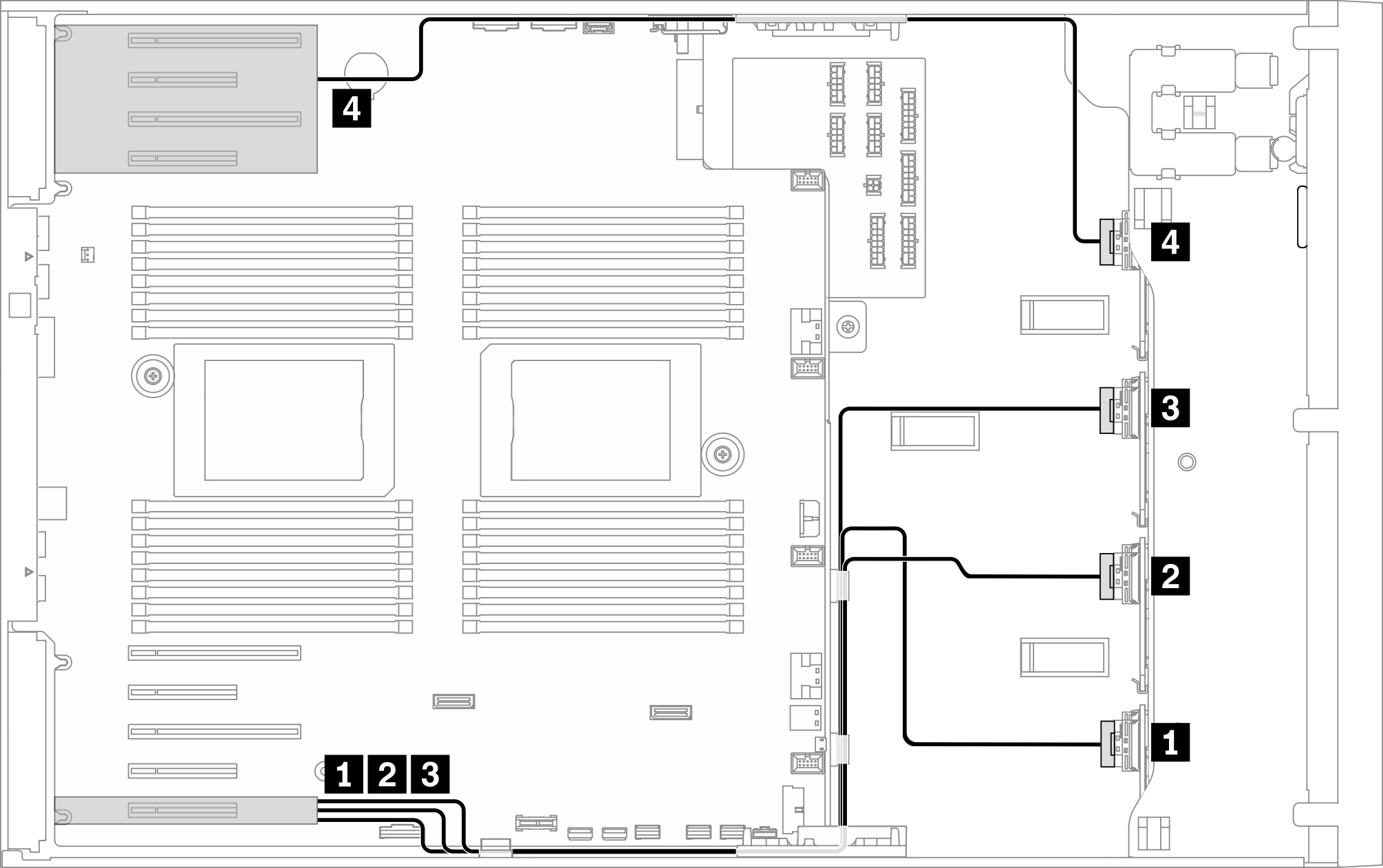
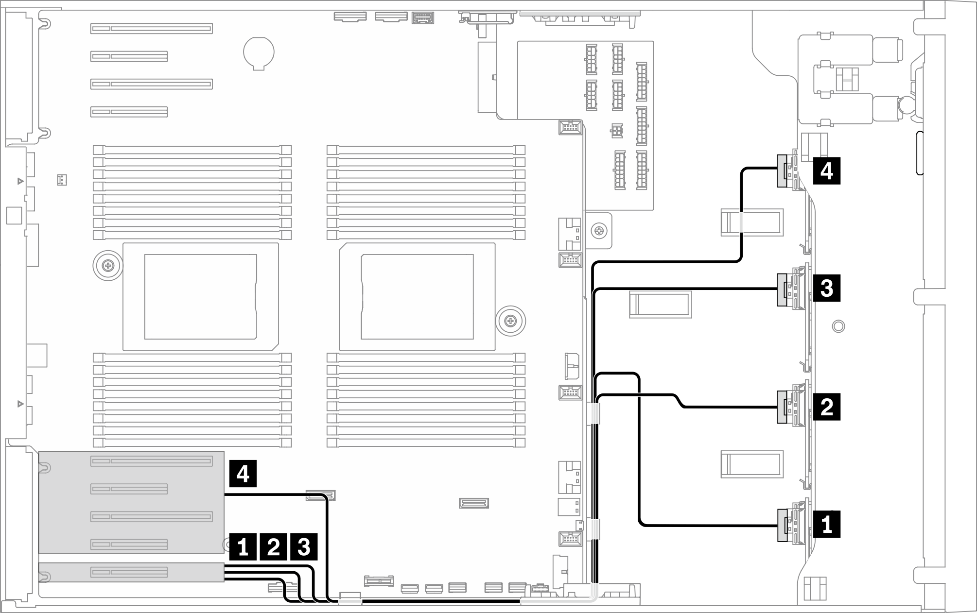
หมายเหตุ อะแดปเตอร์จะถูกติดตั้งในโซน PCIe ด้านบนหรือโซน PCIe ด้านล่าง ทั้งนี้ขึ้นอยู่กับการกําหนดค่า รูปที่ 1. การเดินสาย SAS/SATA ไปยังโซน PCIe ด้านบน ![]() รูปที่ 2. การเดินสาย SAS/SATA ไปยังโซน PCIe ด้านล่าง ![]() | ||
| จาก | ไปยัง | สาย |
| 1 BP1: SAS/SATA |
|
|
| 2 BP2: SAS/SATA |
|
|
| 3 BP3: SAS/SATA |
|
|
| 4 BP4: SAS/SATA |
|
|
2 x 8i RAID/HBA + 1 x 16i RAID/HBA
| การเดินสาย SAS/SATA | ||
|---|---|---|
หมายเหตุ อะแดปเตอร์จะถูกติดตั้งในโซน PCIe ด้านบนหรือโซน PCIe ด้านล่าง ทั้งนี้ขึ้นอยู่กับการกําหนดค่า รูปที่ 3. การเดินสาย SAS/SATA ไปยังโซน PCIe ด้านบน ![]() รูปที่ 4. การเดินสาย SAS/SATA ไปยังโซน PCIe ด้านล่าง ![]() | ||
| จาก | ไปยัง | สาย |
| 1 BP1: SAS/SATA |
|
|
| 2 BP2: SAS/SATA |
|
|
| 3 BP3: SAS/SATA |
|
|
| 4 BP4: SAS/SATA |
|
|
1 x 8i RAID/HBA + 1 x 24i RAID/HBA
| การเดินสาย SAS/SATA | ||
|---|---|---|
หมายเหตุ อะแดปเตอร์จะถูกติดตั้งในโซน PCIe ด้านบนหรือโซน PCIe ด้านล่าง ทั้งนี้ขึ้นอยู่กับการกําหนดค่า รูปที่ 5. การเดินสาย SAS/SATA ไปยังโซน PCIe ด้านบน ![]() รูปที่ 6. การเดินสาย SAS/SATA ไปยังโซน PCIe ด้านล่าง ![]() | ||
| จาก | ไปยัง | สาย |
| 1 BP1: SAS/SATA | 24i G3: C0, C1 | Gen 3: Mini-SAS x4*2 ถึง SlimSAS x8 (640 มม.) |
| 2 BP2: SAS/SATA | 24i G3: C2, C3 | Gen 3: Mini-SAS x4*2 ถึง SlimSAS x8 (640 มม.) |
| 3 BP3: SAS/SATA | 24i G3: C4, C5 | Gen 3: Mini-SAS x4*2 ถึง SlimSAS x8 (930 มม.) |
| 4 BP4: SAS/SATA |
|
|
2 x 8i RAID/HBA + 1 x 24i RAID/HBA
| การเดินสาย SAS/SATA | ||
|---|---|---|
หมายเหตุ อะแดปเตอร์จะถูกติดตั้งในโซน PCIe ด้านบนหรือโซน PCIe ด้านล่าง ทั้งนี้ขึ้นอยู่กับการกําหนดค่า รูปที่ 7. การเดินสาย SAS/SATA ไปยังโซน PCIe ด้านบน ![]() รูปที่ 8. การเดินสาย SAS/SATA ไปยังโซน PCIe ด้านล่าง ![]() | ||
| จาก | ไปยัง | สาย |
| 1 BP1: SAS/SATA | 24i G3: C0, C1 | Gen 3: Mini-SAS x4*2 ถึง SlimSAS x8 (640 มม.) |
| 2 BP2: SAS/SATA | 24i G3: C2, C3 | Gen 3: Mini-SAS x4*2 ถึง SlimSAS x8 (640 มม.) |
| 3 BP3: SAS/SATA |
|
|
| 4 BP4: SAS/SATA |
|
|
2 x 16i RAID/HBA
| การเดินสาย SAS/SATA | ||
|---|---|---|
หมายเหตุ อะแดปเตอร์จะถูกติดตั้งในโซน PCIe ด้านบนหรือโซน PCIe ด้านล่าง ทั้งนี้ขึ้นอยู่กับการกําหนดค่า รูปที่ 9. การเดินสาย SAS/SATA ไปยังโซน PCIe ด้านบน ![]() รูปที่ 10. การเดินสาย SAS/SATA ไปยังโซน PCIe ด้านล่าง ![]() | ||
| จาก | ไปยัง | สาย |
| 1 BP1: SAS/SATA |
|
|
| 2 BP2: SAS/SATA |
|
|
| 3 BP3: SAS/SATA |
|
|
| 4 BP4: SAS/SATA |
|
|
1 x 16i RAID/HBA + 1 x 24i RAID/HBA
| การเดินสาย SAS/SATA | ||
|---|---|---|
หมายเหตุ อะแดปเตอร์จะถูกติดตั้งในโซน PCIe ด้านบนหรือโซน PCIe ด้านล่าง ทั้งนี้ขึ้นอยู่กับการกําหนดค่า รูปที่ 11. การเดินสาย SAS/SATA ไปยังโซน PCIe ด้านบน ![]() รูปที่ 12. การเดินสาย SAS/SATA ไปยังโซน PCIe ด้านล่าง ![]() | ||
| จาก | ไปยัง | สาย |
| 1 BP1: SAS/SATA | 24i G3: C0, C1 | Gen 3: Mini-SAS x4*2 ถึง SlimSAS x8 (640 มม.) |
| 2 BP2: SAS/SATA | 24i G3: C2, C3 | Gen 3: Mini-SAS x4*2 ถึง SlimSAS x8 (640 มม.) |
| 3 BP3: SAS/SATA | 16i G4: C0 | Gen 4: SlimSAS x8 ถึง SlimSAS x8 (720 มม.) |
| 4 BP4: SAS/SATA | 16i G4: C1 | Gen 4: SlimSAS x8 ถึง SlimSAS x8 (720 มม.) |
2 x 24i RAID/HBA
| การเดินสาย SAS/SATA | ||
|---|---|---|
หมายเหตุ อะแดปเตอร์จะถูกติดตั้งในโซน PCIe ด้านบนหรือโซน PCIe ด้านล่าง ทั้งนี้ขึ้นอยู่กับการกําหนดค่า รูปที่ 13. การเดินสาย SAS/SATA ไปยังโซน PCIe ด้านบน ![]() รูปที่ 14. การเดินสาย SAS/SATA ไปยังโซน PCIe ด้านล่าง ![]() | ||
| จาก | ไปยัง | สาย |
| 1 BP1: SAS/SATA | 24i G3: C0, C1 | Gen 3: Mini-SAS x4*2 ถึง SlimSAS x8 (640 มม.) |
| 2 BP2: SAS/SATA | 24i G3: C2, C3 | Gen 3: Mini-SAS x4*2 ถึง SlimSAS x8 (640 มม.) |
| 3 BP3: SAS/SATA | 24i G3: C0, C1 | Gen 3: Mini-SAS x4*2 ถึง SlimSAS x8 (930 มม.) |
| 4 BP4: SAS/SATA | 24i G3: C2, C3 | Gen 3: Mini-SAS x4*2 ถึง SlimSAS x8 (930 มม.) |
1 x 32i RAID/HBA
| การเดินสาย SAS/SATA | ||
|---|---|---|
รูปที่ 15. การเดินสาย SAS/SATA ไปยังช่องเสียบ PCIe 9 ![]() | ||
| จาก | ไปยัง | สาย |
| 1 BP1: SAS/SATA | 32i G4: C0 | SlimSAS x8 ถึง SlimSAS x8 (720 มม.) |
| 2 BP2: SAS/SATA | 32i G4: C1 | SlimSAS x8 ถึง SlimSAS x8 (720 มม.) |
| 3 BP3: SAS/SATA | 32i G4: C2 | SlimSAS x8 ถึง SlimSAS x8 (720 มม.) |
| 4 BP4: SAS/SATA | 32i G4: C3 | SlimSAS x8 ถึง SlimSAS x8 (880 มม.) |






