4 x SAS/SATA 背板
本節列出配備 4 x SAS/SATA 2.5 吋熱抽換背板的伺服器型號的必需元件。
接頭之間的連接;1↔1,2↔2,3↔3,... n↔n
進行纜線佈線時,確保所有纜線都正確穿過纜線導件和纜線夾。
Y 纜線在每個背板的圖例中顯示為個別纜線。
連接纜線優先配置 Gen 4 RAID 配接卡。
如需所用纜線的相關資訊,請參閱背板纜線清單。
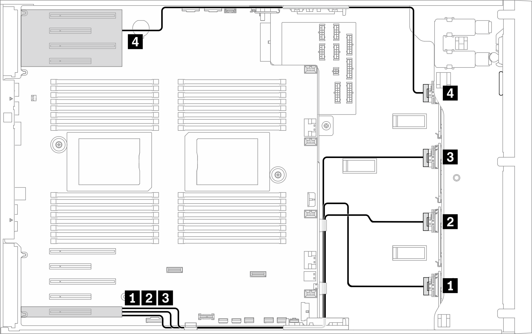
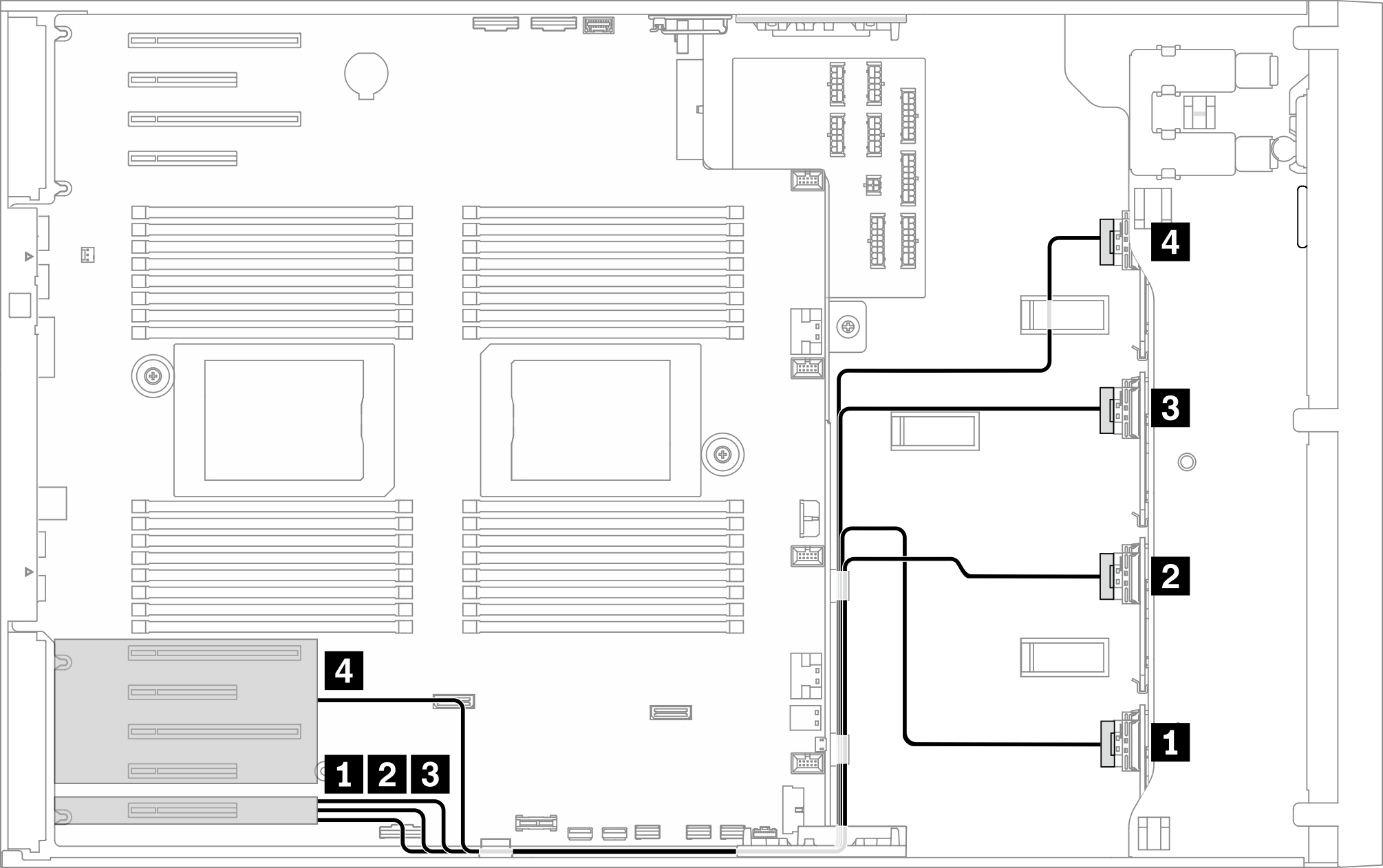
4 x 8i RAID/HBA
| SAS/SATA 纜線佈線 | ||
|---|---|---|
註 視您的配置而定,配接卡將安裝於頂端 PCIe 區域或底部 PCIe 區域。 圖 1. SAS/SATA 纜線佈線至頂端 PCIe 區域 ![]() 圖 2. SAS/SATA 纜線佈線至底部 PCIe 區域 ![]() | ||
| 從 | 到 | 纜線 |
| 1 BP1:SAS/SATA |
|
|
| 2 BP2:SAS/SATA |
|
|
| 3 BP3:SAS/SATA |
|
|
| 4 BP4:SAS/SATA |
|
|
2 x 8i RAID/HBA + 1 x 16i RAID/HBA
| SAS/SATA 纜線佈線 | ||
|---|---|---|
註 視您的配置而定,配接卡將安裝於頂端 PCIe 區域或底部 PCIe 區域。 圖 3. SAS/SATA 纜線佈線至頂端 PCIe 區域 ![]() 圖 4. SAS/SATA 纜線佈線至底部 PCIe 區域 ![]() | ||
| 從 | 到 | 纜線 |
| 1 BP1:SAS/SATA |
|
|
| 2 BP2:SAS/SATA |
|
|
| 3 BP3:SAS/SATA |
|
|
| 4 BP4:SAS/SATA |
|
|
1 x 8i RAID/HBA + 1 x 24i RAID/HBA
| SAS/SATA 纜線佈線 | ||
|---|---|---|
註 視您的配置而定,配接卡將安裝於頂端 PCIe 區域或底部 PCIe 區域。 圖 5. SAS/SATA 纜線佈線至頂端 PCIe 區域 ![]() 圖 6. SAS/SATA 纜線佈線至底部 PCIe 區域 ![]() | ||
| 從 | 到 | 纜線 |
| 1 BP1:SAS/SATA | 24i G3:C0、C1 | Gen 3:Mini SAS x4*2 至 SlimSAS x8(640 公釐) |
| 2 BP2:SAS/SATA | 24i G3:C2、C3 | Gen 3:Mini SAS x4*2 至 SlimSAS x8(640 公釐) |
| 3 BP3:SAS/SATA | 24i G3:C4、C5 | Gen 3:Mini SAS x4*2 至 SlimSAS x8(930 公釐) |
| 4 BP4:SAS/SATA |
|
|
2 x 8i RAID/HBA + 1 x 24i RAID/HBA
| SAS/SATA 纜線佈線 | ||
|---|---|---|
註 視您的配置而定,配接卡將安裝於頂端 PCIe 區域或底部 PCIe 區域。 圖 7. SAS/SATA 纜線佈線至頂端 PCIe 區域 ![]() 圖 8. SAS/SATA 纜線佈線至底部 PCIe 區域 ![]() | ||
| 從 | 到 | 纜線 |
| 1 BP1:SAS/SATA | 24i G3:C0、C1 | Gen 3:Mini SAS x4*2 至 SlimSAS x8(640 公釐) |
| 2 BP2:SAS/SATA | 24i G3:C2、C3 | Gen 3:Mini SAS x4*2 至 SlimSAS x8(640 公釐) |
| 3 BP3:SAS/SATA |
|
|
| 4 BP4:SAS/SATA |
|
|
2 x 16i RAID/HBA
| SAS/SATA 纜線佈線 | ||
|---|---|---|
註 視您的配置而定,配接卡將安裝於頂端 PCIe 區域或底部 PCIe 區域。 圖 9. SAS/SATA 纜線佈線至頂端 PCIe 區域 ![]() 圖 10. SAS/SATA 纜線佈線至底部 PCIe 區域 ![]() | ||
| 從 | 到 | 纜線 |
| 1 BP1:SAS/SATA |
|
|
| 2 BP2:SAS/SATA |
|
|
| 3 BP3:SAS/SATA |
|
|
| 4 BP4:SAS/SATA |
|
|
1 x 16i RAID/HBA + 1 x 24i RAID/HBA
| SAS/SATA 纜線佈線 | ||
|---|---|---|
註 視您的配置而定,配接卡將安裝於頂端 PCIe 區域或底部 PCIe 區域。 圖 11. SAS/SATA 纜線佈線至頂端 PCIe 區域 ![]() 圖 12. SAS/SATA 纜線佈線至底部 PCIe 區域 ![]() | ||
| 從 | 到 | 纜線 |
| 1 BP1:SAS/SATA | 24i G3:C0、C1 | Gen 3:Mini SAS x4*2 至 SlimSAS x8(640 公釐) |
| 2 BP2:SAS/SATA | 24i G3:C2、C3 | Gen 3:Mini SAS x4*2 至 SlimSAS x8(640 公釐) |
| 3 BP3:SAS/SATA | 16i G4:C0 | Gen 4:SlimSAS x8 至 SlimSAS x8(720 公釐) |
| 4 BP4:SAS/SATA | 16i G4:C1 | Gen 4:SlimSAS x8 至 SlimSAS x8(720 公釐) |
2 x 24i RAID/HBA
| SAS/SATA 纜線佈線 | ||
|---|---|---|
註 視您的配置而定,配接卡將安裝於頂端 PCIe 區域或底部 PCIe 區域。 圖 13. SAS/SATA 纜線佈線至頂端 PCIe 區域 ![]() 圖 14. SAS/SATA 纜線佈線至底部 PCIe 區域 ![]() | ||
| 從 | 到 | 纜線 |
| 1 BP1:SAS/SATA | 24i G3:C0、C1 | Gen 3:Mini SAS x4*2 至 SlimSAS x8(640 公釐) |
| 2 BP2:SAS/SATA | 24i G3:C2、C3 | Gen 3:Mini SAS x4*2 至 SlimSAS x8(640 公釐) |
| 3 BP3:SAS/SATA | 24i G3:C0、C1 | Gen 3:Mini SAS x4*2 至 SlimSAS x8(930 公釐) |
| 4 BP4:SAS/SATA | 24i G3:C2、C3 | Gen 3:Mini SAS x4*2 至 SlimSAS x8(930 公釐) |
1 x 32i RAID/HBA
| SAS/SATA 纜線佈線 | ||
|---|---|---|
圖 15. SAS/SATA 纜線佈線至 PCIe 插槽 9 ![]() | ||
| 從 | 到 | 纜線 |
| 1 BP1:SAS/SATA | 32i G4:C0 | SlimSAS x8 至 SlimSAS x8(720 公釐) |
| 2 BP2:SAS/SATA | 32i G4:C1 | SlimSAS x8 至 SlimSAS x8(720 公釐) |
| 3 BP3:SAS/SATA | 32i G4:C2 | SlimSAS x8 至 SlimSAS x8(720 公釐) |
| 4 BP4:SAS/SATA | 32i G4:C3 | SlimSAS x8 至 SlimSAS x8(880 公釐) |






