4 x SAS/SATA 백플레인
이 섹션에는 4 x SAS/SATA 2.5인치 핫 스왑 백플레인을 지원하는 서버 모델에 필요한 구성 요소가 나열되어 있습니다.
커넥터 간 연결: 1↔1, 2↔2, 3↔3, ... n↔n
케이블을 배선할 때 모든 케이블이 케이블 가이드 및 케이블 클립을 통과하여 올바르게 배선되었는지 확인하십시오.
각 백플레인의 그림에서 Y 케이블은 개별 케이블로 표시되어 있습니다.
Gen 4 RAID 어댑터를 우선으로 케이블을 연결합니다.
사용되는 케이블에 대한 자세한 내용은 백플레인 케이블 목록의 내용을 참조하십시오.
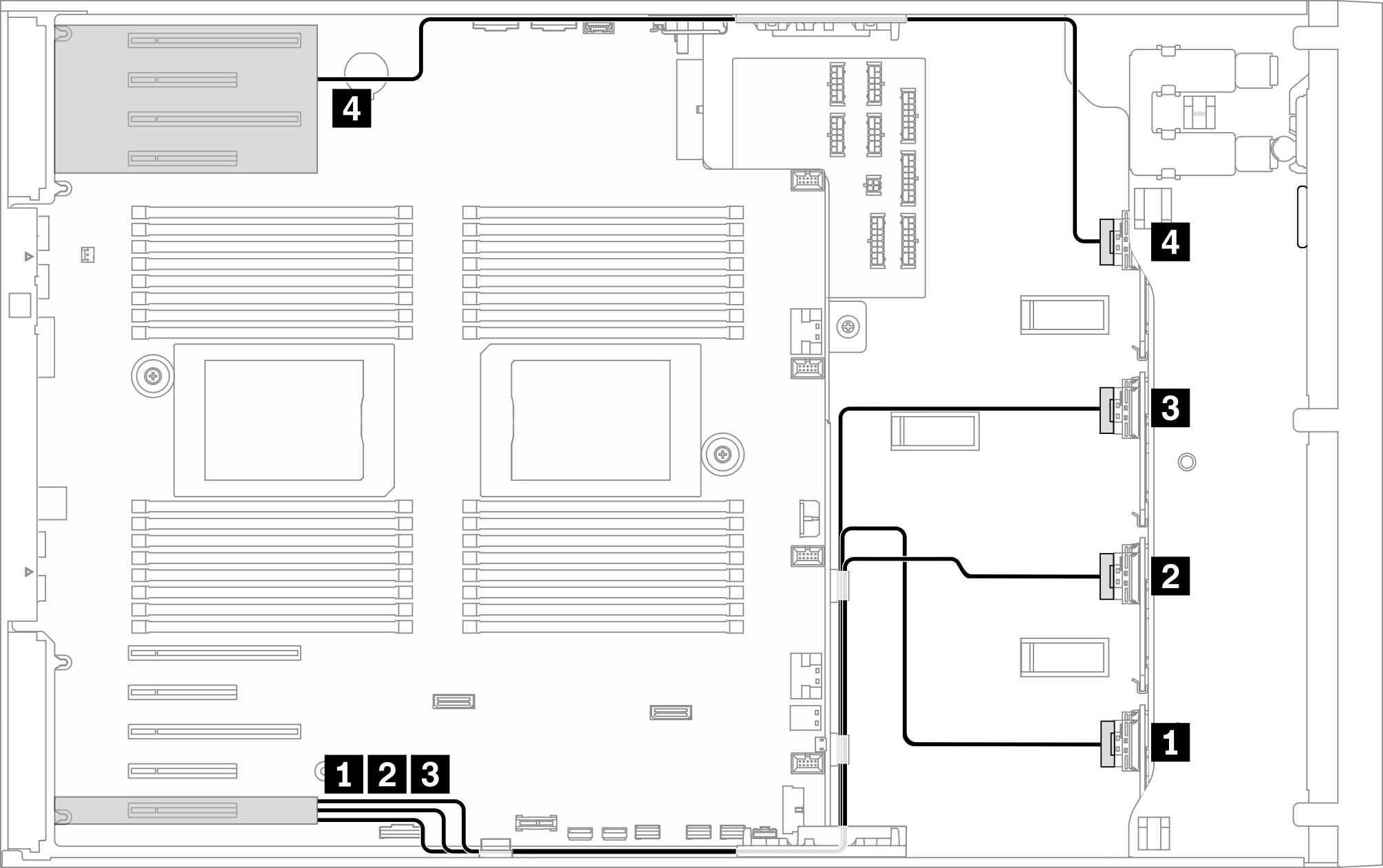
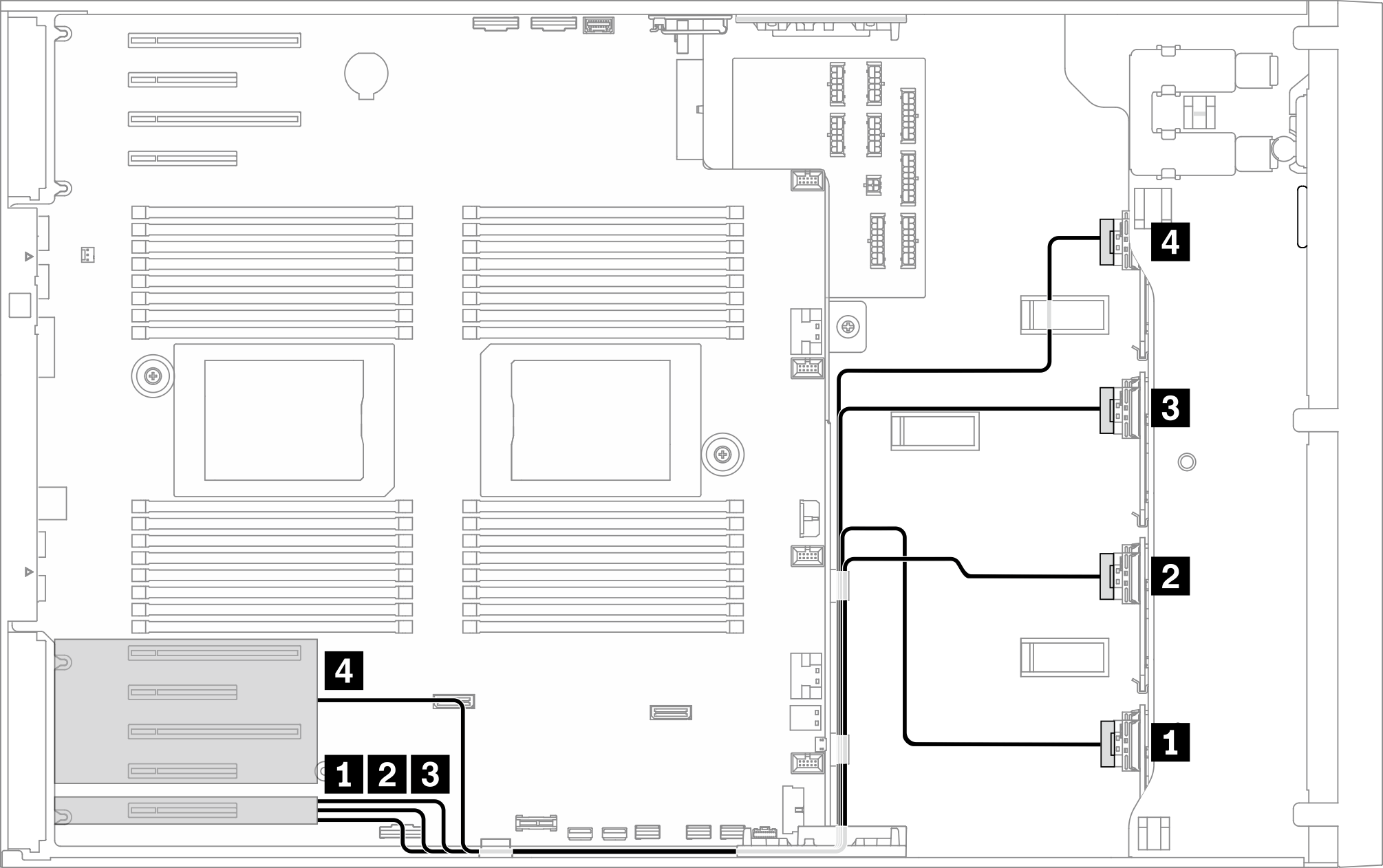
4 x 8i RAID/HBA
| SAS/SATA 케이블 배선 | ||
|---|---|---|
주 구성에 따라 어댑터는 상단 PCIe 영역 또는 하단 PCIe 영역에 설치됩니다. 그림 1. 상단 PCIe 영역에 대한 SAS/SATA 케이블 배선 ![]() 그림 2. 하단 PCIe 영역에 대한 SAS/SATA 케이블 배선 ![]() | ||
| 시작 | 끝 | 케이블 |
| 1 BP1: SAS/SATA |
|
|
| 2 BP2: SAS/SATA |
|
|
| 3 BP3: SAS/SATA |
|
|
| 4 BP4: SAS/SATA |
|
|
2 x 8i RAID/HBA + 1 x 16i RAID/HBA
| SAS/SATA 케이블 배선 | ||
|---|---|---|
주 구성에 따라 어댑터는 상단 PCIe 영역 또는 하단 PCIe 영역에 설치됩니다. 그림 3. 상단 PCIe 영역에 대한 SAS/SATA 케이블 배선 ![]() 그림 4. 하단 PCIe 영역에 대한 SAS/SATA 케이블 배선 ![]() | ||
| 시작 | 끝 | 케이블 |
| 1 BP1: SAS/SATA |
|
|
| 2 BP2: SAS/SATA |
|
|
| 3 BP3: SAS/SATA |
|
|
| 4 BP4: SAS/SATA |
|
|
1 x 8i RAID/HBA + 1 x 24i RAID/HBA
| SAS/SATA 케이블 배선 | ||
|---|---|---|
주 구성에 따라 어댑터는 상단 PCIe 영역 또는 하단 PCIe 영역에 설치됩니다. 그림 5. 상단 PCIe 영역에 대한 SAS/SATA 케이블 배선 ![]() 그림 6. 하단 PCIe 영역에 대한 SAS/SATA 케이블 배선 ![]() | ||
| 시작 | 끝 | 케이블 |
| 1 BP1: SAS/SATA | 24i G3: C0, C1 | Gen 3: Mini-SAS x4*2 - SlimSAS x8(640mm) |
| 2 BP2: SAS/SATA | 24i G3: C2, C3 | Gen 3: Mini-SAS x4*2 - SlimSAS x8(640mm) |
| 3 BP3: SAS/SATA | 24i G3: C4, C5 | Gen 3: Mini-SAS x4*2 - SlimSAS x8(930mm) |
| 4 BP4: SAS/SATA |
|
|
2 x 8i RAID/HBA + 1 x 24i RAID/HBA
| SAS/SATA 케이블 배선 | ||
|---|---|---|
주 구성에 따라 어댑터는 상단 PCIe 영역 또는 하단 PCIe 영역에 설치됩니다. 그림 7. 상단 PCIe 영역에 대한 SAS/SATA 케이블 배선 ![]() 그림 8. 하단 PCIe 영역에 대한 SAS/SATA 케이블 배선 ![]() | ||
| 시작 | 끝 | 케이블 |
| 1 BP1: SAS/SATA | 24i G3: C0, C1 | Gen 3: Mini-SAS x4*2 - SlimSAS x8(640mm) |
| 2 BP2: SAS/SATA | 24i G3: C2, C3 | Gen 3: Mini-SAS x4*2 - SlimSAS x8(640mm) |
| 3 BP3: SAS/SATA |
|
|
| 4 BP4: SAS/SATA |
|
|
2 x 16i RAID/HBA
| SAS/SATA 케이블 배선 | ||
|---|---|---|
주 구성에 따라 어댑터는 상단 PCIe 영역 또는 하단 PCIe 영역에 설치됩니다. 그림 9. 상단 PCIe 영역에 대한 SAS/SATA 케이블 배선 ![]() 그림 10. 하단 PCIe 영역에 대한 SAS/SATA 케이블 배선 ![]() | ||
| 시작 | 끝 | 케이블 |
| 1 BP1: SAS/SATA |
|
|
| 2 BP2: SAS/SATA |
|
|
| 3 BP3: SAS/SATA |
|
|
| 4 BP4: SAS/SATA |
|
|
1 x 16i RAID/HBA + 1 x 24i RAID/HBA
| SAS/SATA 케이블 배선 | ||
|---|---|---|
주 구성에 따라 어댑터는 상단 PCIe 영역 또는 하단 PCIe 영역에 설치됩니다. 그림 11. 상단 PCIe 영역에 대한 SAS/SATA 케이블 배선 ![]() 그림 12. 하단 PCIe 영역에 대한 SAS/SATA 케이블 배선 ![]() | ||
| 시작 | 끝 | 케이블 |
| 1 BP1: SAS/SATA | 24i G3: C0, C1 | Gen 3: Mini-SAS x4*2 - SlimSAS x8(640mm) |
| 2 BP2: SAS/SATA | 24i G3: C2, C3 | Gen 3: Mini-SAS x4*2 - SlimSAS x8(640mm) |
| 3 BP3: SAS/SATA | 16i G4: C0 | Gen 4: SlimSAS x8 - SlimSAS x8(720mm) |
| 4 BP4: SAS/SATA | 16i G4: C1 | Gen 4: SlimSAS x8 - SlimSAS x8(720mm) |
2 x 24i RAID/HBA
| SAS/SATA 케이블 배선 | ||
|---|---|---|
주 구성에 따라 어댑터는 상단 PCIe 영역 또는 하단 PCIe 영역에 설치됩니다. 그림 13. 상단 PCIe 영역에 대한 SAS/SATA 케이블 배선 ![]() 그림 14. 하단 PCIe 영역에 대한 SAS/SATA 케이블 배선 ![]() | ||
| 시작 | 끝 | 케이블 |
| 1 BP1: SAS/SATA | 24i G3: C0, C1 | Gen 3: Mini-SAS x4*2 - SlimSAS x8(640mm) |
| 2 BP2: SAS/SATA | 24i G3: C2, C3 | Gen 3: Mini-SAS x4*2 - SlimSAS x8(640mm) |
| 3 BP3: SAS/SATA | 24i G3: C0, C1 | Gen 3: Mini-SAS x4*2 - SlimSAS x8(930mm) |
| 4 BP4: SAS/SATA | 24i G3: C2, C3 | Gen 3: Mini-SAS x4*2 - SlimSAS x8(930mm) |
1 x 32i RAID/HBA
| SAS/SATA 케이블 배선 | ||
|---|---|---|
그림 15. PCIe 슬롯 9에 대한 SAS/SATA 케이블 배선 ![]() | ||
| 시작 | 끝 | 케이블 |
| 1 BP1: SAS/SATA | 32i G4: C0 | SlimSAS x8 - SlimSAS x8(720mm) |
| 2 BP2: SAS/SATA | 32i G4: C1 | SlimSAS x8 - SlimSAS x8(720mm) |
| 3 BP3: SAS/SATA | 32i G4: C2 | SlimSAS x8 - SlimSAS x8(720mm) |
| 4 BP4: SAS/SATA | 32i G4: C3 | SlimSAS x8 - SlimSAS x8(880mm) |






