4 x SAS/SATA 背板
本节列出了配备 4 x SAS/SATA 2.5 英寸热插拔背板的服务器型号所需的组件。
接口之间的连接:1↔1,2↔2,3↔3,... n↔n
请确保使用线缆导向装置和线缆夹正确布放所有线缆。
Y 型线缆在背板图示中显示为单独的线缆。
优先连接 Gen 4 RAID 适配器的线缆。
有关所使用的线缆的更多信息,请参阅背板线缆列表。
4 x 8i RAID/HBA
| SAS/SATA 线缆布放 | ||
|---|---|---|
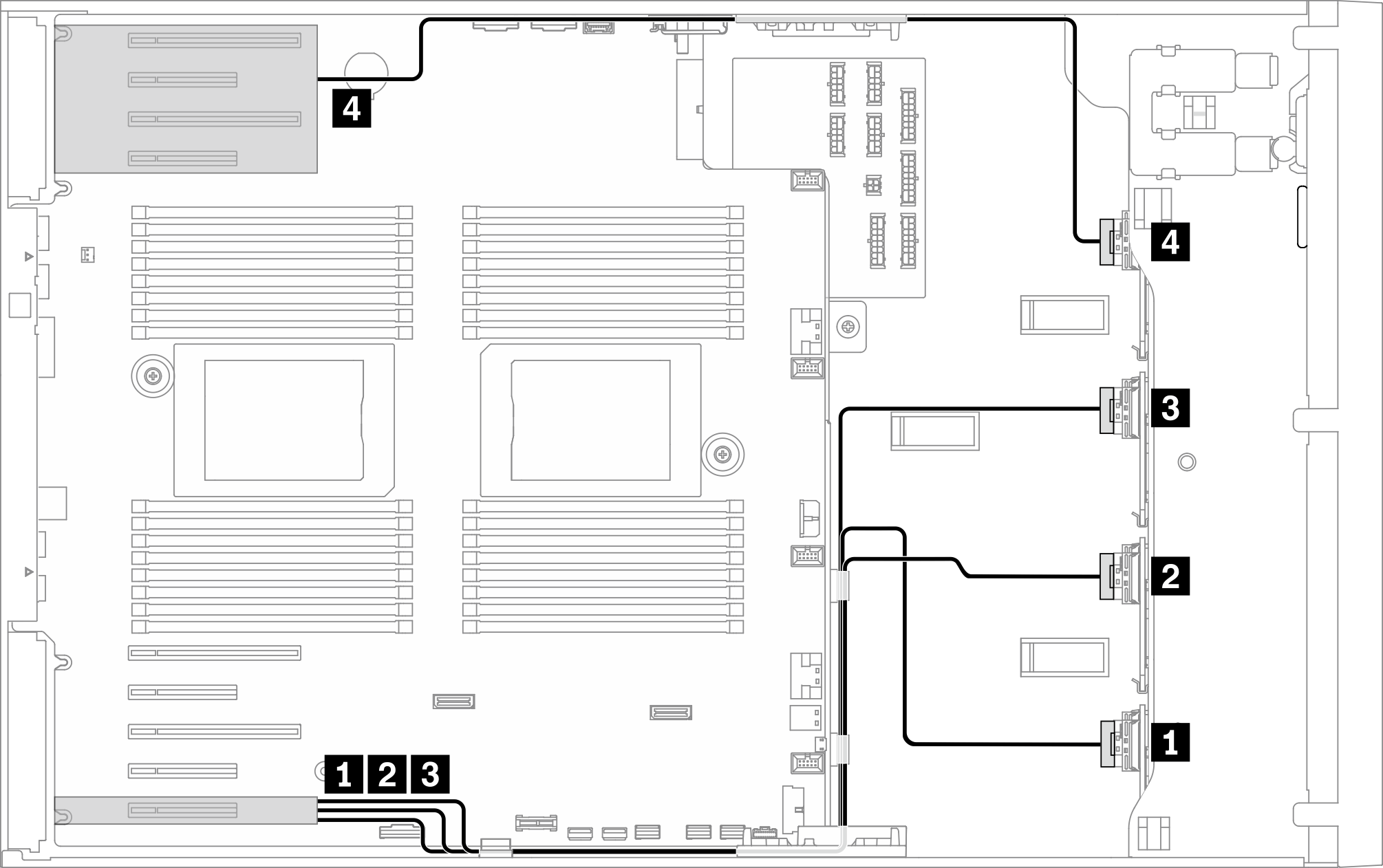
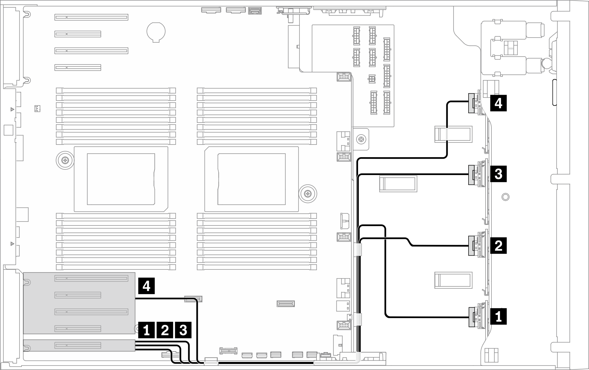
注 根据具体配置,适配器将安装在顶部 PCIe 区域或底部 PCIe 区域中。 图 1. 布放顶部 PCIe 区域的 SAS/SATA 线缆 ![]() 图 2. 布放底部 PCIe 区域的 SAS/SATA 线缆 ![]() | ||
| 从 | 到 | 线缆 |
| 1 BP1:SAS/SATA |
|
|
| 2 BP2:SAS/SATA |
|
|
| 3 BP3:SAS/SATA |
|
|
| 4 BP4:SAS/SATA |
|
|
2 x 8i RAID/HBA + 1 x 16i RAID/HBA
| SAS/SATA 线缆布放 | ||
|---|---|---|
注 根据具体配置,适配器将安装在顶部 PCIe 区域或底部 PCIe 区域中。 图 3. 布放顶部 PCIe 区域的 SAS/SATA 线缆 ![]() 图 4. 布放底部 PCIe 区域的 SAS/SATA 线缆 ![]() | ||
| 从 | 到 | 线缆 |
| 1 BP1:SAS/SATA |
|
|
| 2 BP2:SAS/SATA |
|
|
| 3 BP3:SAS/SATA |
|
|
| 4 BP4:SAS/SATA |
|
|
1 x 8i RAID/HBA + 1 x 24i RAID/HBA
| SAS/SATA 线缆布放 | ||
|---|---|---|
注 根据具体配置,适配器将安装在顶部 PCIe 区域或底部 PCIe 区域中。 图 5. 布放顶部 PCIe 区域的 SAS/SATA 线缆 ![]() 图 6. 布放底部 PCIe 区域的 SAS/SATA 线缆 ![]() | ||
| 从 | 到 | 线缆 |
| 1 BP1:SAS/SATA | 24i G3:C0、C1 | Gen 3:Mini SAS x4*2 转 SlimSAS x8(640 毫米) |
| 2 BP2:SAS/SATA | 24i G3:C2、C3 | Gen 3:Mini SAS x4*2 转 SlimSAS x8(640 毫米) |
| 3 BP3:SAS/SATA | 24i G3:C4、C5 | Gen 3:Mini SAS x4*2 转 SlimSAS x8(930 毫米) |
| 4 BP4:SAS/SATA |
|
|
2 x 8i RAID/HBA + 1 x 24i RAID/HBA
| SAS/SATA 线缆布放 | ||
|---|---|---|
注 根据具体配置,适配器将安装在顶部 PCIe 区域或底部 PCIe 区域中。 图 7. 布放顶部 PCIe 区域的 SAS/SATA 线缆 ![]() 图 8. 布放底部 PCIe 区域的 SAS/SATA 线缆 ![]() | ||
| 从 | 到 | 线缆 |
| 1 BP1:SAS/SATA | 24i G3:C0、C1 | Gen 3:Mini SAS x4*2 转 SlimSAS x8(640 毫米) |
| 2 BP2:SAS/SATA | 24i G3:C2、C3 | Gen 3:Mini SAS x4*2 转 SlimSAS x8(640 毫米) |
| 3 BP3:SAS/SATA |
|
|
| 4 BP4:SAS/SATA |
|
|
2 x 16i RAID/HBA
| SAS/SATA 线缆布放 | ||
|---|---|---|
注 根据具体配置,适配器将安装在顶部 PCIe 区域或底部 PCIe 区域中。 图 9. 布放顶部 PCIe 区域的 SAS/SATA 线缆 ![]() 图 10. 布放底部 PCIe 区域的 SAS/SATA 线缆 ![]() | ||
| 从 | 到 | 线缆 |
| 1 BP1:SAS/SATA |
|
|
| 2 BP2:SAS/SATA |
|
|
| 3 BP3:SAS/SATA |
|
|
| 4 BP4:SAS/SATA |
|
|
1 x 16i RAID/HBA + 1 x 24i RAID/HBA
| SAS/SATA 线缆布放 | ||
|---|---|---|
注 根据具体配置,适配器将安装在顶部 PCIe 区域或底部 PCIe 区域中。 图 11. 布放顶部 PCIe 区域的 SAS/SATA 线缆 ![]() 图 12. 布放底部 PCIe 区域的 SAS/SATA 线缆 ![]() | ||
| 从 | 到 | 线缆 |
| 1 BP1:SAS/SATA | 24i G3:C0、C1 | Gen 3:Mini SAS x4*2 转 SlimSAS x8(640 毫米) |
| 2 BP2:SAS/SATA | 24i G3:C2、C3 | Gen 3:Mini SAS x4*2 转 SlimSAS x8(640 毫米) |
| 3 BP3:SAS/SATA | 16i G4:C0 | Gen 4:SlimSAS x8 转 SlimSAS x8(720 毫米) |
| 4 BP4:SAS/SATA | 16i G4:C1 | Gen 4:SlimSAS x8 转 SlimSAS x8(720 毫米) |
2 x 24i RAID/HBA
| SAS/SATA 线缆布放 | ||
|---|---|---|
注 根据具体配置,适配器将安装在顶部 PCIe 区域或底部 PCIe 区域中。 图 13. 布放顶部 PCIe 区域的 SAS/SATA 线缆 ![]() 图 14. 布放底部 PCIe 区域的 SAS/SATA 线缆 ![]() | ||
| 从 | 到 | 线缆 |
| 1 BP1:SAS/SATA | 24i G3:C0、C1 | Gen 3:Mini SAS x4*2 转 SlimSAS x8(640 毫米) |
| 2 BP2:SAS/SATA | 24i G3:C2、C3 | Gen 3:Mini SAS x4*2 转 SlimSAS x8(640 毫米) |
| 3 BP3:SAS/SATA | 24i G3:C0、C1 | Gen 3:Mini SAS x4*2 转 SlimSAS x8(930 毫米) |
| 4 BP4:SAS/SATA | 24i G3:C2、C3 | Gen 3:Mini SAS x4*2 转 SlimSAS x8(930 毫米) |
1 x 32i RAID/HBA
| SAS/SATA 线缆布放 | ||
|---|---|---|
图 15. 布放 PCIe 插槽 9 的 SAS/SATA 线缆 ![]() | ||
| 从 | 到 | 线缆 |
| 1 BP1:SAS/SATA | 32i G4:C0 | SlimSAS x8 转 SlimSAS x8(720 毫米) |
| 2 BP2:SAS/SATA | 32i G4:C1 | SlimSAS x8 转 SlimSAS x8(720 毫米) |
| 3 BP3:SAS/SATA | 32i G4:C2 | SlimSAS x8 转 SlimSAS x8(720 毫米) |
| 4 BP4:SAS/SATA | 32i G4:C3 | SlimSAS x8 转 SlimSAS x8(880 毫米) |






