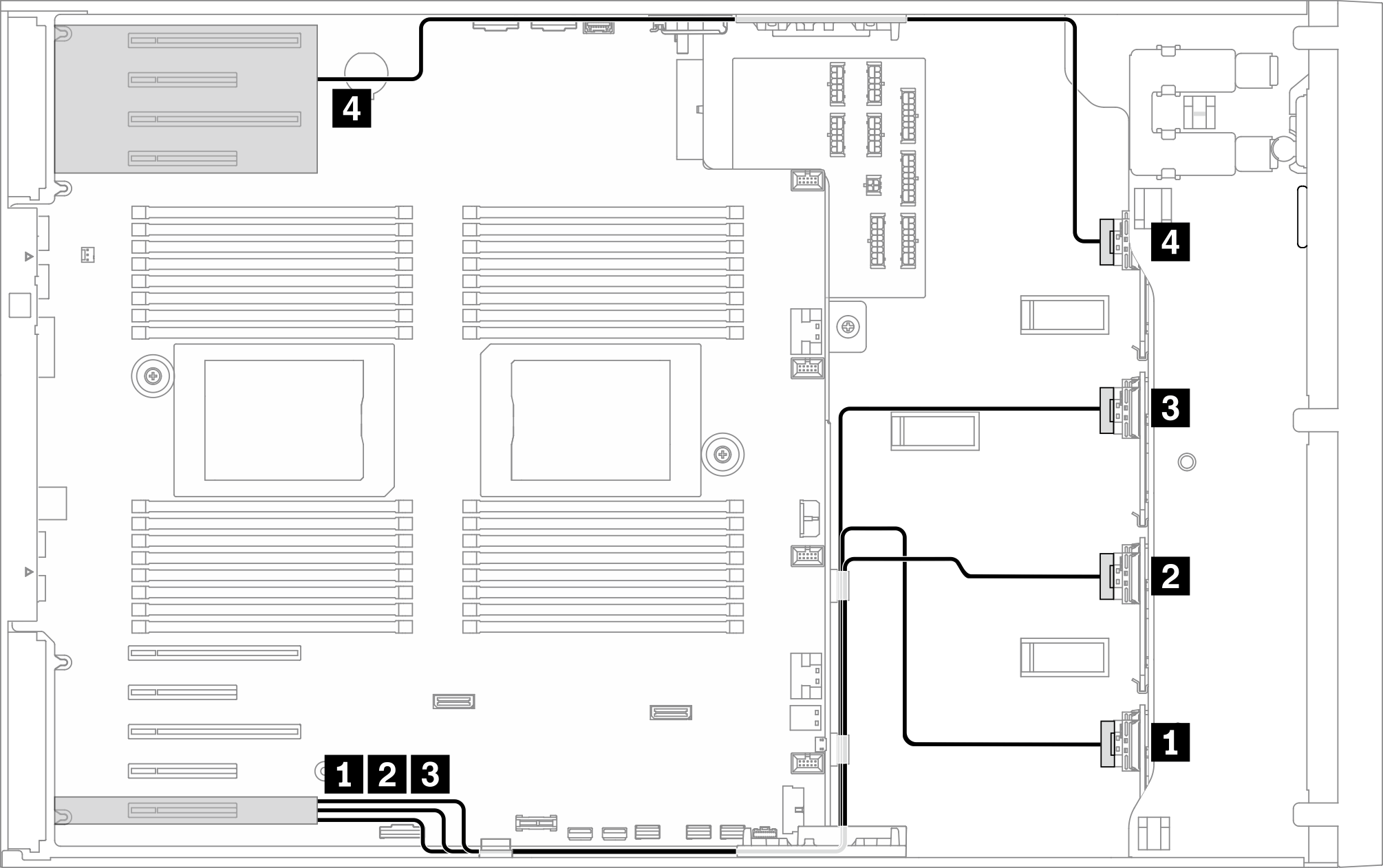
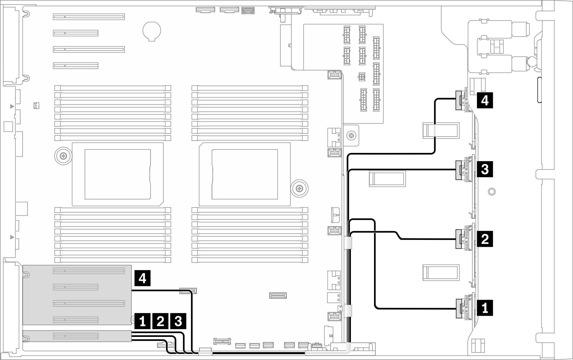
4 объединительные панели SAS/SATA
В этом разделе перечислены необходимые компоненты для моделей серверов с четырьмя объединительными панелями для 2,5-дюймовых оперативно заменяемых дисков SAS/SATA.
Подключения между разъемами: 1↔1, 2↔2, 3↔3, ... n↔n
При прокладке кабелей убедитесь, что все кабели проложены надлежащим образом с помощью кабельных направляющих или кабельных зажимов.
Y-кабели показаны как отдельные кабели на изображениях каждой объединительной панели.
Подключите кабели, отдавая приоритет адаптерам RAID Gen 4.
Дополнительные сведения об используемых кабелях см. в разделе Список кабелей для задней панели.
4 адаптера RAID/HBA 8i
| Прокладка кабелей SAS/SATA | ||
|---|---|---|
Прим. В зависимости от конфигурации адаптер будет установлен в зону верхнего PCIe или зону нижнего PCIe. Рис. 1. Прокладка кабелей SAS/SATA к зоне верхнего PCIe ![]() Рис. 2. Прокладка кабелей SAS/SATA к зоне нижнего PCIe ![]() | ||
| От | До | Кабель |
| 1 BP1: SAS/SATA |
|
|
| 2 BP2: SAS/SATA |
|
|
| 3 BP3: SAS/SATA |
|
|
| 4 BP4: SAS/SATA |
|
|
2 адаптера RAID/HBA 8i + 1 адаптер RAID/HBA 16i
| Прокладка кабелей SAS/SATA | ||
|---|---|---|
Прим. В зависимости от конфигурации адаптер будет установлен в зону верхнего PCIe или зону нижнего PCIe. Рис. 3. Прокладка кабелей SAS/SATA к зоне верхнего PCIe ![]() Рис. 4. Прокладка кабелей SAS/SATA к зоне нижнего PCIe ![]() | ||
| От | До | Кабель |
| 1 BP1: SAS/SATA |
|
|
| 2 BP2: SAS/SATA |
|
|
| 3 BP3: SAS/SATA |
|
|
| 4 BP4: SAS/SATA |
|
|
1 адаптер RAID/HBA 8i + 1 адаптер RAID/HBA 24i
| Прокладка кабелей SAS/SATA | ||
|---|---|---|
Прим. В зависимости от конфигурации адаптер будет установлен в зону верхнего PCIe или зону нижнего PCIe. Рис. 5. Прокладка кабелей SAS/SATA к зоне верхнего PCIe ![]() Рис. 6. Прокладка кабелей SAS/SATA к зоне нижнего PCIe ![]() | ||
| От | До | Кабель |
| 1 BP1: SAS/SATA | 24i G3: C0, C1 | Gen 3: Mini-SAS x4*2 — SlimSAS x8 (640 мм) |
| 2 BP2: SAS/SATA | 24i G3: C2, C3 | Gen 3: Mini-SAS x4*2 — SlimSAS x8 (640 мм) |
| 3 BP3: SAS/SATA | 24i G3: C4, C5 | Gen 3: Mini-SAS x4*2 — SlimSAS x8 (930 мм) |
| 4 BP4: SAS/SATA |
|
|
2 адаптера RAID/HBA 8i + 1 адаптер RAID/HBA 24i
| Прокладка кабелей SAS/SATA | ||
|---|---|---|
Прим. В зависимости от конфигурации адаптер будет установлен в зону верхнего PCIe или зону нижнего PCIe. Рис. 7. Прокладка кабелей SAS/SATA к зоне верхнего PCIe ![]() Рис. 8. Прокладка кабелей SAS/SATA к зоне нижнего PCIe ![]() | ||
| От | До | Кабель |
| 1 BP1: SAS/SATA | 24i G3: C0, C1 | Gen 3: Mini-SAS x4*2 — SlimSAS x8 (640 мм) |
| 2 BP2: SAS/SATA | 24i G3: C2, C3 | Gen 3: Mini-SAS x4*2 — SlimSAS x8 (640 мм) |
| 3 BP3: SAS/SATA |
|
|
| 4 BP4: SAS/SATA |
|
|
2 адаптера RAID/HBA 16i
| Прокладка кабелей SAS/SATA | ||
|---|---|---|
Прим. В зависимости от конфигурации адаптер будет установлен в зону верхнего PCIe или зону нижнего PCIe. Рис. 9. Прокладка кабелей SAS/SATA к зоне верхнего PCIe ![]() Рис. 10. Прокладка кабелей SAS/SATA к зоне нижнего PCIe ![]() | ||
| От | До | Кабель |
| 1 BP1: SAS/SATA |
|
|
| 2 BP2: SAS/SATA |
|
|
| 3 BP3: SAS/SATA |
|
|
| 4 BP4: SAS/SATA |
|
|
1 адаптер RAID/HBA 16i + 1 адаптер RAID/HBA 24i
| Прокладка кабелей SAS/SATA | ||
|---|---|---|
Прим. В зависимости от конфигурации адаптер будет установлен в зону верхнего PCIe или зону нижнего PCIe. Рис. 11. Прокладка кабелей SAS/SATA к зоне верхнего PCIe ![]() Рис. 12. Прокладка кабелей SAS/SATA к зоне нижнего PCIe ![]() | ||
| От | До | Кабель |
| 1 BP1: SAS/SATA | 24i G3: C0, C1 | Gen 3: Mini-SAS x4*2 — SlimSAS x8 (640 мм) |
| 2 BP2: SAS/SATA | 24i G3: C2, C3 | Gen 3: Mini-SAS x4*2 — SlimSAS x8 (640 мм) |
| 3 BP3: SAS/SATA | 16i G4: C0 | Gen 4: SlimSAS x8 — SlimSAS x8 (720 мм) |
| 4 BP4: SAS/SATA | 16i G4: C1 | Gen 4: SlimSAS x8 — SlimSAS x8 (720 мм) |
2 x 24i RAID/HBA-контроллера
| Прокладка кабелей SAS/SATA | ||
|---|---|---|
Прим. В зависимости от конфигурации адаптер будет установлен в зону верхнего PCIe или зону нижнего PCIe. Рис. 13. Прокладка кабелей SAS/SATA к зоне верхнего PCIe ![]() Рис. 14. Прокладка кабелей SAS/SATA к зоне нижнего PCIe ![]() | ||
| От | До | Кабель |
| 1 BP1: SAS/SATA | 24i G3: C0, C1 | Gen 3: Mini-SAS x4*2 — SlimSAS x8 (640 мм) |
| 2 BP2: SAS/SATA | 24i G3: C2, C3 | Gen 3: Mini-SAS x4*2 — SlimSAS x8 (640 мм) |
| 3 BP3: SAS/SATA | 24i G3: C0, C1 | Gen 3: Mini-SAS x4*2 — SlimSAS x8 (930 мм) |
| 4 BP4: SAS/SATA | 24i G3: C2, C3 | Gen 3: Mini-SAS x4*2 — SlimSAS x8 (930 мм) |
1 адаптер RAID/HBA 32i
| Прокладка кабелей SAS/SATA | ||
|---|---|---|
Рис. 15. Прокладка кабелей SAS/SATA к гнезду PCIe 9 ![]() | ||
| От | До | Кабель |
| 1 BP1: SAS/SATA | 32i G4: C0 | SlimSAS x8 — SlimSAS x8 (720 мм) |
| 2 BP2: SAS/SATA | 32i G4: C1 | SlimSAS x8 — SlimSAS x8 (720 мм) |
| 3 BP3: SAS/SATA | 32i G4: C2 | SlimSAS x8 — SlimSAS x8 (720 мм) |
| 4 BP4: SAS/SATA | 32i G4: C3 | SlimSAS x8 — SlimSAS x8 (880 мм) |






