4 placas posteriores SAS/SATA
En esta sección se enumeran los componentes necesarios para los modelos de servidor con 4 placas posteriores de intercambio en caliente SAS/SATA de 2,5 pulgadas.
Conexiones entre conectores; 1↔1, 2↔2, 3↔3, ... n↔n
Al disponer los cables, asegúrese de que todos los cables se dirijan de forma adecuada a través de las guías de cables y los clips de los cables.
Los cables en Y se muestran como cables individuales en las ilustraciones de cada placa posterior.
Conecte los cables y dé prioridad a los adaptadores RAID Gen 4.
Para obtener más información sobre los cables que se utilizan, consulte Lista de cables de la placa posterior.
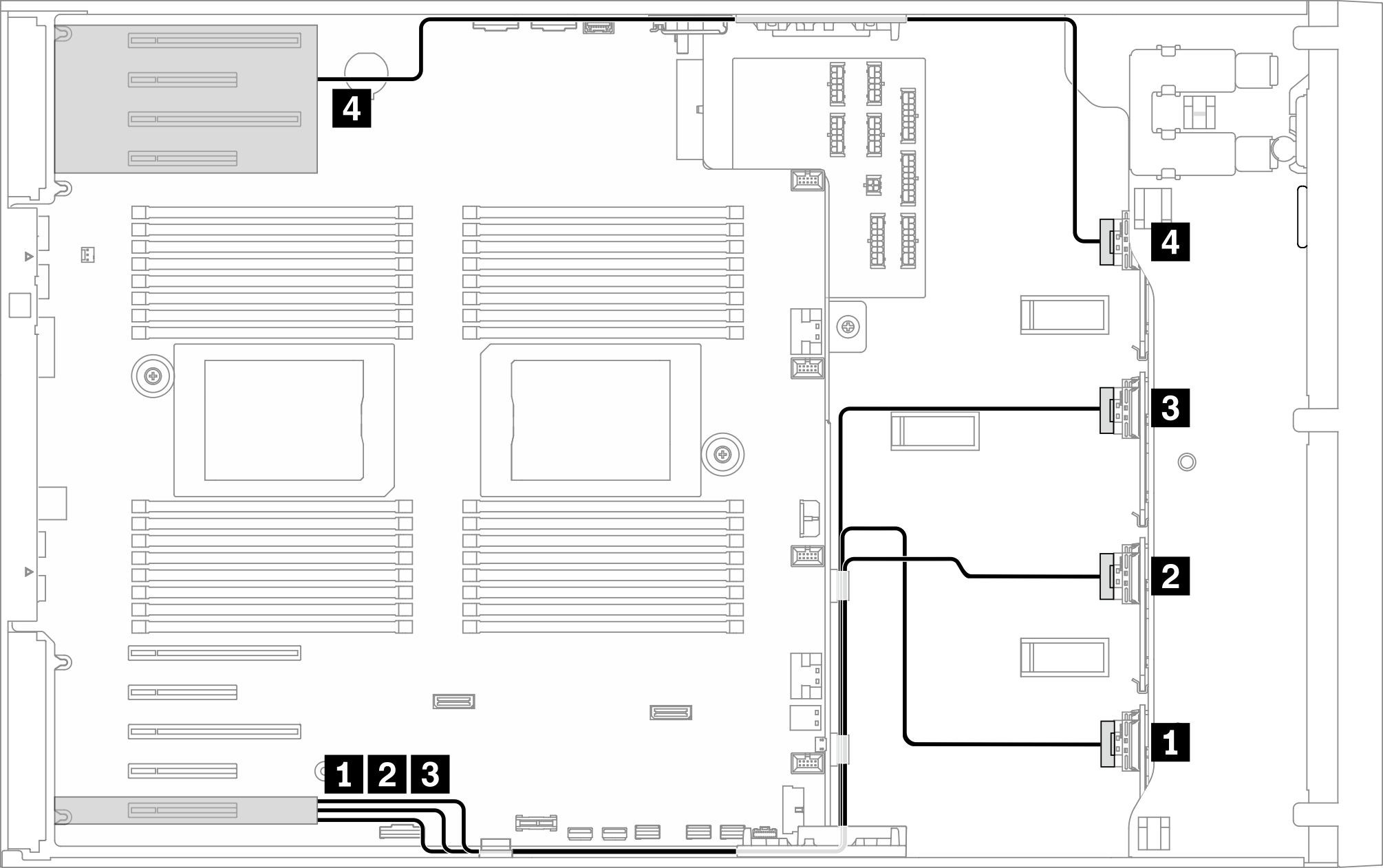
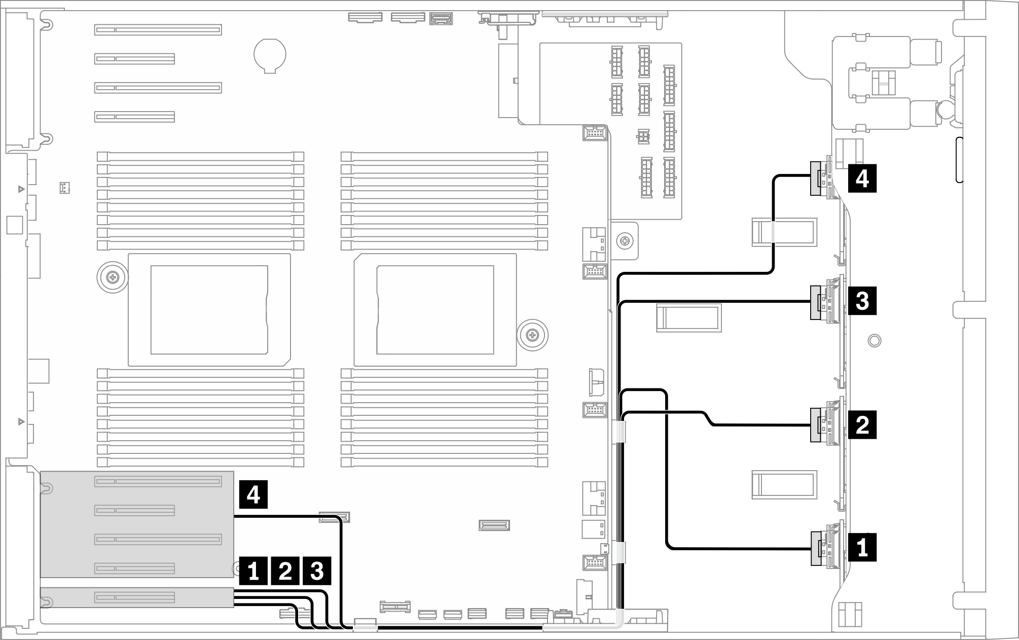
4 8i RAID/HBA
| Disposición de los cables SAS/SATA | ||
|---|---|---|
Nota En función de la configuración, el adaptador se instalará en la zona de PCIe superior o en la zona de PCIe inferior. Figura 1. Disposición de los cables SAS/SATA a la zona de PCIe superior ![]() Figura 2. Disposición de los cables SAS/SATA a la zona de PCIe inferior ![]() | ||
| Desde | Hasta | Cable |
| 1 BP1: SAS/SATA |
|
|
| 2 BP2: SAS/SATA |
|
|
| 3 BP3: SAS/SATA |
|
|
| 4 BP4: SAS/SATA |
|
|
2 8i RAID/HBA + 1 16i RAID/HBA
| Disposición de los cables SAS/SATA | ||
|---|---|---|
Nota En función de la configuración, el adaptador se instalará en la zona de PCIe superior o en la zona de PCIe inferior. Figura 3. Disposición de los cables SAS/SATA a la zona de PCIe superior ![]() Figura 4. Disposición de los cables SAS/SATA a la zona de PCIe inferior ![]() | ||
| Desde | Hasta | Cable |
| 1 BP1: SAS/SATA |
|
|
| 2 BP2: SAS/SATA |
|
|
| 3 BP3: SAS/SATA |
|
|
| 4 BP4: SAS/SATA |
|
|
1 8i RAID/HBA + 1 24i RAID/HBA
| Disposición de los cables SAS/SATA | ||
|---|---|---|
Nota En función de la configuración, el adaptador se instalará en la zona de PCIe superior o en la zona de PCIe inferior. Figura 5. Disposición de los cables SAS/SATA a la zona de PCIe superior ![]() Figura 6. Disposición de los cables SAS/SATA a la zona de PCIe inferior ![]() | ||
| Desde | Hasta | Cable |
| 1 BP1: SAS/SATA | 24i G3: C0, C1 | Gen 3: Mini-SAS x4*2 a SlimSAS x8 (640 mm) |
| 2 BP2: SAS/SATA | 24i G3: C2, C3 | Gen 3: Mini-SAS x4*2 a SlimSAS x8 (640 mm) |
| 3 BP3: SAS/SATA | 24i G3: C4, C5 | Gen 3: Mini-SAS x4*2 a SlimSAS x8 (930 mm) |
| 4 BP4: SAS/SATA |
|
|
2 8i RAID/HBA + 1 24i RAID/HBA
| Disposición de los cables SAS/SATA | ||
|---|---|---|
Nota En función de la configuración, el adaptador se instalará en la zona de PCIe superior o en la zona de PCIe inferior. Figura 7. Disposición de los cables SAS/SATA a la zona de PCIe superior ![]() Figura 8. Disposición de los cables SAS/SATA a la zona de PCIe inferior ![]() | ||
| Desde | Hasta | Cable |
| 1 BP1: SAS/SATA | 24i G3: C0, C1 | Gen 3: Mini-SAS x4*2 a SlimSAS x8 (640 mm) |
| 2 BP2: SAS/SATA | 24i G3: C2, C3 | Gen 3: Mini-SAS x4*2 a SlimSAS x8 (640 mm) |
| 3 BP3: SAS/SATA |
|
|
| 4 BP4: SAS/SATA |
|
|
2 16i RAID/HBA
| Disposición de los cables SAS/SATA | ||
|---|---|---|
Nota En función de la configuración, el adaptador se instalará en la zona de PCIe superior o en la zona de PCIe inferior. Figura 9. Disposición de los cables SAS/SATA a la zona de PCIe superior ![]() Figura 10. Disposición de los cables SAS/SATA a la zona de PCIe inferior ![]() | ||
| Desde | Hasta | Cable |
| 1 BP1: SAS/SATA |
|
|
| 2 BP2: SAS/SATA |
|
|
| 3 BP3: SAS/SATA |
|
|
| 4 BP4: SAS/SATA |
|
|
1 16i RAID/HBA + 1 24i RAID/HBA
| Disposición de los cables SAS/SATA | ||
|---|---|---|
Nota En función de la configuración, el adaptador se instalará en la zona de PCIe superior o en la zona de PCIe inferior. Figura 11. Disposición de los cables SAS/SATA a la zona de PCIe superior ![]() Figura 12. Disposición de los cables SAS/SATA a la zona de PCIe inferior ![]() | ||
| Desde | Hasta | Cable |
| 1 BP1: SAS/SATA | 24i G3: C0, C1 | Gen 3: Mini-SAS x4*2 a SlimSAS x8 (640 mm) |
| 2 BP2: SAS/SATA | 24i G3: C2, C3 | Gen 3: Mini-SAS x4*2 a SlimSAS x8 (640 mm) |
| 3 BP3: SAS/SATA | 16i G4: C0 | Gen 4: SlimSAS x8 a SlimSAS x8 (720 mm) |
| 4 BP4: SAS/SATA | 16i G4: C1 | Gen 4: SlimSAS x8 a SlimSAS x8 (720 mm) |
2 24i RAID/HBA
| Disposición de los cables SAS/SATA | ||
|---|---|---|
Nota En función de la configuración, el adaptador se instalará en la zona de PCIe superior o en la zona de PCIe inferior. Figura 13. Disposición de los cables SAS/SATA a la zona de PCIe superior ![]() Figura 14. Disposición de los cables SAS/SATA a la zona de PCIe inferior ![]() | ||
| Desde | Hasta | Cable |
| 1 BP1: SAS/SATA | 24i G3: C0, C1 | Gen 3: Mini-SAS x4*2 a SlimSAS x8 (640 mm) |
| 2 BP2: SAS/SATA | 24i G3: C2, C3 | Gen 3: Mini-SAS x4*2 a SlimSAS x8 (640 mm) |
| 3 BP3: SAS/SATA | 24i G3: C0, C1 | Gen 3: Mini-SAS x4*2 a SlimSAS x8 (930 mm) |
| 4 BP4: SAS/SATA | 24i G3: C2, C3 | Gen 3: Mini-SAS x4*2 a SlimSAS x8 (930 mm) |
1 32i RAID/HBA
| Disposición de los cables SAS/SATA | ||
|---|---|---|
Figura 15. Disposición de los cables SAS/SATA a la ranura de PCIe 9 ![]() | ||
| Desde | Hasta | Cable |
| 1 BP1: SAS/SATA | 32i G4: C0 | SlimSAS x8 a SlimSAS x8 (720 mm) |
| 2 BP2: SAS/SATA | 32i G4: C1 | SlimSAS x8 a SlimSAS x8 (720 mm) |
| 3 BP3: SAS/SATA | 32i G4: C2 | SlimSAS x8 a SlimSAS x8 (720 mm) |
| 4 BP4: SAS/SATA | 32i G4: C3 | SlimSAS x8 a SlimSAS x8 (880 mm) |






