4 x SAS/SATA-Rückwandplatinen
In diesem Abschnitt sind die erforderlichen Komponenten für Servermodelle mit Rückwandplatinen für 4 x SAS/SATA-2,5-Zoll-Hot-Swap-Einheiten aufgeführt.
Verbindungen zwischen Anschlüssen: 1↔1, 2↔2, 3↔3, … n↔n
Stellen Sie beim Verlegen der Kabel sicher, dass alle Kabel ordnungsgemäß durch die Kabelführungen und Kabelklemmen geführt werden.
Y-Kabel werden in den Abbildungen für jede Rückwandplatine als einzelne Kabel dargestellt.
Schließen Sie die Kabel beginnend mit den GEN 4 RAID-Adaptern an.
Weitere Informationen zu den verwendeten Kabeln finden Sie unter Kabelliste für Rückwandplatine.
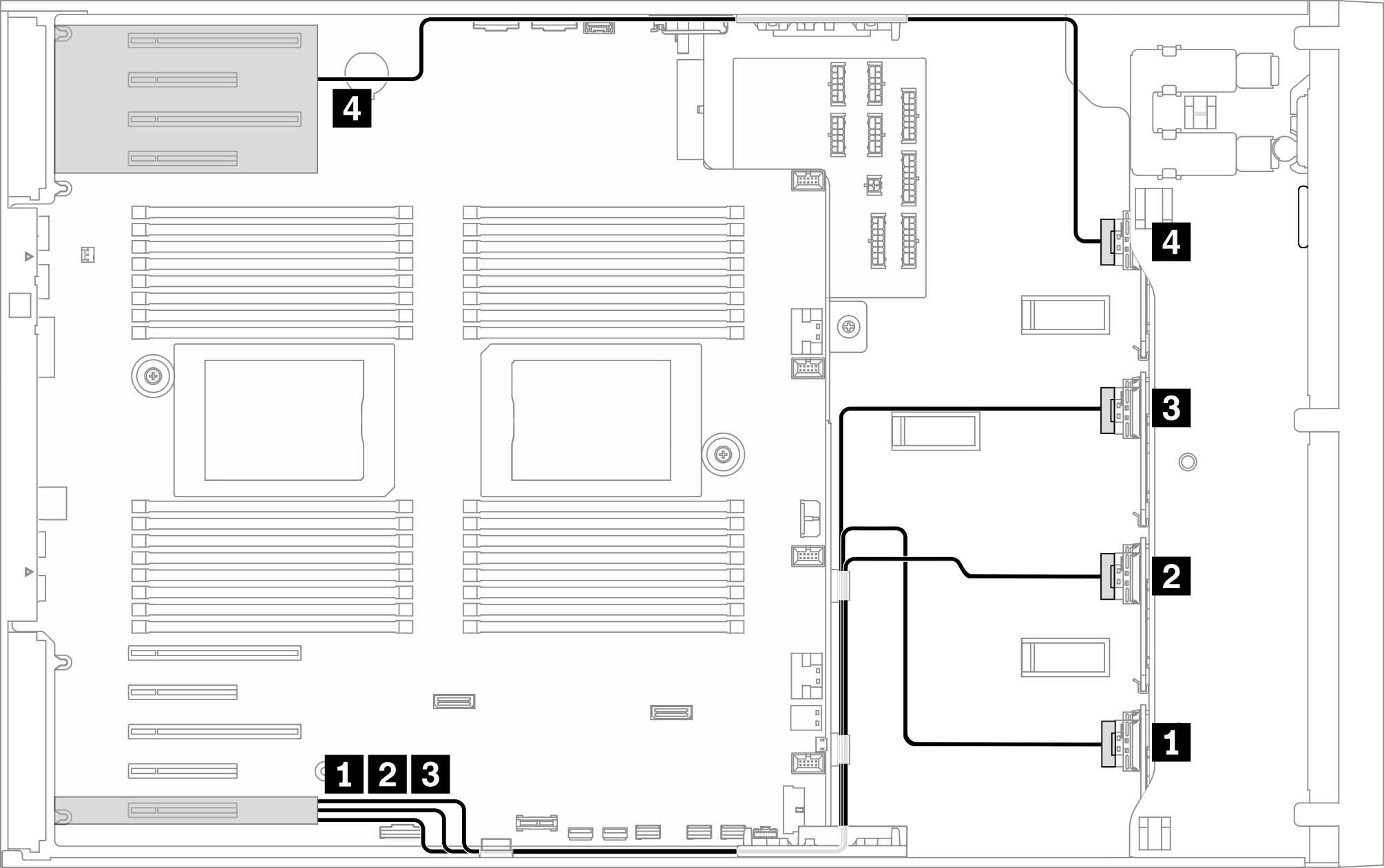
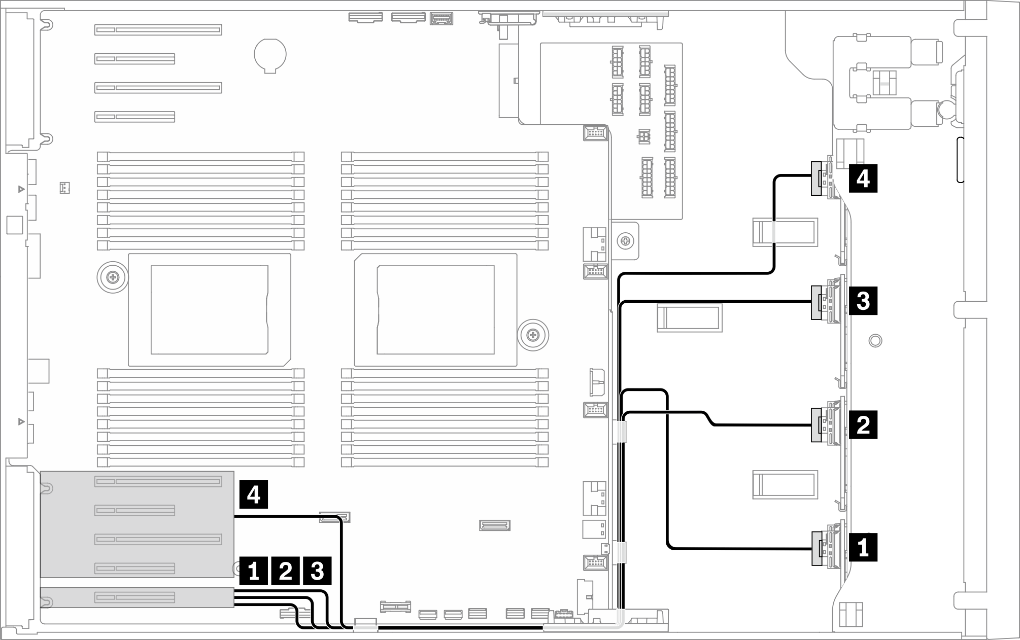
4 x 8i RAID/HBA
| SAS/SATA-Kabelführung | ||
|---|---|---|
Anmerkung Je nach Konfiguration wird der Adapter im oberen oder im unteren PCIe-Bereich installiert. Abbildung 1. SAS/SATA-Kabelführung zum oberen PCIe-Bereich ![]() Abbildung 2. SAS/SATA-Kabelführung zum unteren PCIe-Bereich ![]() | ||
| Von | Zu | Kabel |
| 1 BP1: SAS/SATA |
|
|
| 2 BP2: SAS/SATA |
|
|
| 3 BP3: SAS/SATA |
|
|
| 4 BP4: SAS/SATA |
|
|
2 x 8i RAID/HBA + 1 x 16i RAID/HBA
| SAS/SATA-Kabelführung | ||
|---|---|---|
Anmerkung Je nach Konfiguration wird der Adapter im oberen oder im unteren PCIe-Bereich installiert. Abbildung 3. SAS/SATA-Kabelführung zum oberen PCIe-Bereich ![]() Abbildung 4. SAS/SATA-Kabelführung zum unteren PCIe-Bereich ![]() | ||
| Von | Zu | Kabel |
| 1 BP1: SAS/SATA |
|
|
| 2 BP2: SAS/SATA |
|
|
| 3 BP3: SAS/SATA |
|
|
| 4 BP4: SAS/SATA |
|
|
1 x 8i RAID/HBA + 1 x 24i RAID/HBA
| SAS/SATA-Kabelführung | ||
|---|---|---|
Anmerkung Je nach Konfiguration wird der Adapter im oberen oder im unteren PCIe-Bereich installiert. Abbildung 5. SAS/SATA-Kabelführung zum oberen PCIe-Bereich ![]() Abbildung 6. SAS/SATA-Kabelführung zum unteren PCIe-Bereich ![]() | ||
| Von | Zu | Kabel |
| 1 BP1: SAS/SATA | 24i G3: C0, C1 | Gen 3: Mini-SAS x4*2 zu SlimSAS x8 (640 mm) |
| 2 BP2: SAS/SATA | 24i G3: C2, C3 | Gen 3: Mini-SAS x4*2 zu SlimSAS x8 (640 mm) |
| 3 BP3: SAS/SATA | 24i G3: C4, C5 | Gen 3: Mini-SAS x4*2 zu SlimSAS x8 (930 mm) |
| 4 BP4: SAS/SATA |
|
|
2 x 8i RAID/HBA + 1 x 24i RAID/HBA
| SAS/SATA-Kabelführung | ||
|---|---|---|
Anmerkung Je nach Konfiguration wird der Adapter im oberen oder im unteren PCIe-Bereich installiert. Abbildung 7. SAS/SATA-Kabelführung zum oberen PCIe-Bereich ![]() Abbildung 8. SAS/SATA-Kabelführung zum unteren PCIe-Bereich ![]() | ||
| Von | Zu | Kabel |
| 1 BP1: SAS/SATA | 24i G3: C0, C1 | Gen 3: Mini-SAS x4*2 zu SlimSAS x8 (640 mm) |
| 2 BP2: SAS/SATA | 24i G3: C2, C3 | Gen 3: Mini-SAS x4*2 zu SlimSAS x8 (640 mm) |
| 3 BP3: SAS/SATA |
|
|
| 4 BP4: SAS/SATA |
|
|
2 x 16i RAID/HBA
| SAS/SATA-Kabelführung | ||
|---|---|---|
Anmerkung Je nach Konfiguration wird der Adapter im oberen oder im unteren PCIe-Bereich installiert. Abbildung 9. SAS/SATA-Kabelführung zum oberen PCIe-Bereich ![]() Abbildung 10. SAS/SATA-Kabelführung zum unteren PCIe-Bereich ![]() | ||
| Von | Zu | Kabel |
| 1 BP1: SAS/SATA |
|
|
| 2 BP2: SAS/SATA |
|
|
| 3 BP3: SAS/SATA |
|
|
| 4 BP4: SAS/SATA |
|
|
1 x 16i RAID/HBA + 1 x 24i RAID/HBA
| SAS/SATA-Kabelführung | ||
|---|---|---|
Anmerkung Je nach Konfiguration wird der Adapter im oberen oder im unteren PCIe-Bereich installiert. Abbildung 11. SAS/SATA-Kabelführung zum oberen PCIe-Bereich ![]() Abbildung 12. SAS/SATA-Kabelführung zum unteren PCIe-Bereich ![]() | ||
| Von | Zu | Kabel |
| 1 BP1: SAS/SATA | 24i G3: C0, C1 | Gen 3: Mini-SAS x4*2 zu SlimSAS x8 (640 mm) |
| 2 BP2: SAS/SATA | 24i G3: C2, C3 | Gen 3: Mini-SAS x4*2 zu SlimSAS x8 (640 mm) |
| 3 BP3: SAS/SATA | 16i G4: C0 | Gen 4: SlimSAS x8 zu SlimSAS x8 (720 mm) |
| 4 BP4: SAS/SATA | 16i G4: C1 | Gen 4: SlimSAS x8 zu SlimSAS x8 (720 mm) |
2 x 24i RAID/HBA
| SAS/SATA-Kabelführung | ||
|---|---|---|
Anmerkung Je nach Konfiguration wird der Adapter im oberen oder im unteren PCIe-Bereich installiert. Abbildung 13. SAS/SATA-Kabelführung zum oberen PCIe-Bereich ![]() Abbildung 14. SAS/SATA-Kabelführung zum unteren PCIe-Bereich ![]() | ||
| Von | Zu | Kabel |
| 1 BP1: SAS/SATA | 24i G3: C0, C1 | Gen 3: Mini-SAS x4*2 zu SlimSAS x8 (640 mm) |
| 2 BP2: SAS/SATA | 24i G3: C2, C3 | Gen 3: Mini-SAS x4*2 zu SlimSAS x8 (640 mm) |
| 3 BP3: SAS/SATA | 24i G3: C0, C1 | Gen 3: Mini-SAS x4*2 zu SlimSAS x8 (930 mm) |
| 4 BP4: SAS/SATA | 24i G3: C2, C3 | Gen 3: Mini-SAS x4*2 zu SlimSAS x8 (930 mm) |
1 x 32i RAID/HBA
| SAS/SATA-Kabelführung | ||
|---|---|---|
Abbildung 15. SAS/SATA-Kabelführung zu PCIe-Steckplatz 9 ![]() | ||
| Von | Zu | Kabel |
| 1 BP1: SAS/SATA | 32i G4: C0 | SlimSAS x8 zu SlimSAS x8 (720 mm) |
| 2 BP2: SAS/SATA | 32i G4: C1 | SlimSAS x8 zu SlimSAS x8 (720 mm) |
| 3 BP3: SAS/SATA | 32i G4: C2 | SlimSAS x8 zu SlimSAS x8 (720 mm) |
| 4 BP4: SAS/SATA | 32i G4: C3 | SlimSAS x8 zu SlimSAS x8 (880 mm) |






