4 x SAS/SATA バックプレーン
このセクションでは、4 x SAS/SATA 2.5 インチ ホット・スワップ・バックプレーンを搭載したサーバー・モデルに必要なコンポーネントをリストしています。
コネクター間の接続: 1↔1、2↔2、3↔3、... n↔n
ケーブルを配線するときは、ケーブル・ガイドとケーブル・クリップを使用して、すべてのケーブルが適切に配線されていることを確認します。
Y ケーブルは、各バックプレーンの図で個別のケーブルとして示されています。
Gen 4 RAID アダプターを優先してケーブルを接続します。
使用するケーブルの詳細については、バックプレーン・ケーブル・リストを参照してください。
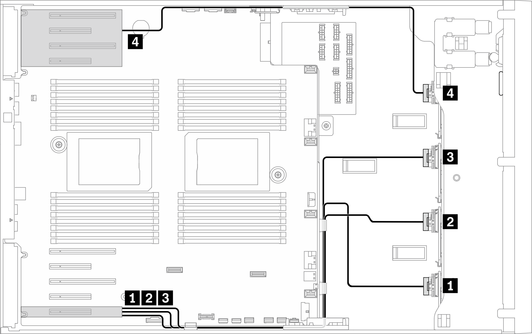
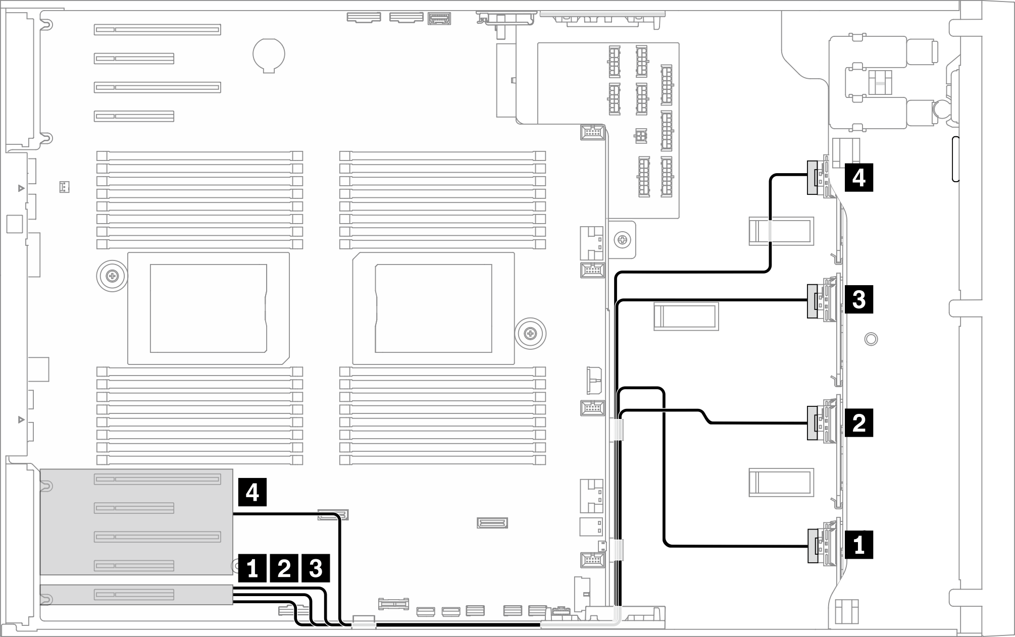
4 x 8i RAID/HBA
| SAS/SATA ケーブル配線 | ||
|---|---|---|
注 構成に応じて、アダプターは上部 PCIe ゾーンまたは下部 PCIe ゾーンに取り付けます。 図 1. 上部 PCIe ゾーンへの SAS/SATA ケーブル配線 ![]() 図 2. 下部 PCIe ゾーンへの SAS/SATA ケーブル配線 ![]() | ||
| 始点 | 終点 | ケーブル |
| 1 BP1: SAS/SATA |
|
|
| 2 BP2: SAS/SATA |
|
|
| 3 BP3: SAS/SATA |
|
|
| 4 BP4: SAS/SATA |
|
|
2 x 8i RAID/HBA + 1 x 16i RAID/HBA
| SAS/SATA ケーブル配線 | ||
|---|---|---|
注 構成に応じて、アダプターは上部 PCIe ゾーンまたは下部 PCIe ゾーンに取り付けます。 図 3. 上部 PCIe ゾーンへの SAS/SATA ケーブル配線 ![]() 図 4. 下部 PCIe ゾーンへの SAS/SATA ケーブル配線 ![]() | ||
| 始点 | 終点 | ケーブル |
| 1 BP1: SAS/SATA |
|
|
| 2 BP2: SAS/SATA |
|
|
| 3 BP3: SAS/SATA |
|
|
| 4 BP4: SAS/SATA |
|
|
1 x 8i RAID/HBA + 1 x 24i RAID/HBA
| SAS/SATA ケーブル配線 | ||
|---|---|---|
注 構成に応じて、アダプターは上部 PCIe ゾーンまたは下部 PCIe ゾーンに取り付けます。 図 5. 上部 PCIe ゾーンへの SAS/SATA ケーブル配線 ![]() 図 6. 下部 PCIe ゾーンへの SAS/SATA ケーブル配線 ![]() | ||
| 始点 | 終点 | ケーブル |
| 1 BP1: SAS/SATA | 24i G3: C0、C1 | Gen 3: Mini-SAS x4*2 - SlimSAS x8 (640 mm) |
| 2 BP2: SAS/SATA | 24i G3: C2、C3 | Gen 3: Mini-SAS x4*2 - SlimSAS x8 (640 mm) |
| 3 BP3: SAS/SATA | 24i G3: C4、C5 | Gen 3: Mini-SAS x4*2 - SlimSAS x8 (930 mm) |
| 4 BP4: SAS/SATA |
|
|
2 x 8i RAID/HBA + 1 x 24i RAID/HBA
| SAS/SATA ケーブル配線 | ||
|---|---|---|
注 構成に応じて、アダプターは上部 PCIe ゾーンまたは下部 PCIe ゾーンに取り付けます。 図 7. 上部 PCIe ゾーンへの SAS/SATA ケーブル配線 ![]() 図 8. 下部 PCIe ゾーンへの SAS/SATA ケーブル配線 ![]() | ||
| 始点 | 終点 | ケーブル |
| 1 BP1: SAS/SATA | 24i G3: C0、C1 | Gen 3: Mini-SAS x4*2 - SlimSAS x8 (640 mm) |
| 2 BP2: SAS/SATA | 24i G3: C2、C3 | Gen 3: Mini-SAS x4*2 - SlimSAS x8 (640 mm) |
| 3 BP3: SAS/SATA |
|
|
| 4 BP4: SAS/SATA |
|
|
2 x 16i RAID/HBA
| SAS/SATA ケーブル配線 | ||
|---|---|---|
注 構成に応じて、アダプターは上部 PCIe ゾーンまたは下部 PCIe ゾーンに取り付けます。 図 9. 上部 PCIe ゾーンへの SAS/SATA ケーブル配線 ![]() 図 10. 下部 PCIe ゾーンへの SAS/SATA ケーブル配線 ![]() | ||
| 始点 | 終点 | ケーブル |
| 1 BP1: SAS/SATA |
|
|
| 2 BP2: SAS/SATA |
|
|
| 3 BP3: SAS/SATA |
|
|
| 4 BP4: SAS/SATA |
|
|
1 x 16i RAID/HBA + 1 x 24i RAID/HBA
| SAS/SATA ケーブル配線 | ||
|---|---|---|
注 構成に応じて、アダプターは上部 PCIe ゾーンまたは下部 PCIe ゾーンに取り付けます。 図 11. 上部 PCIe ゾーンへの SAS/SATA ケーブル配線 ![]() 図 12. 下部 PCIe ゾーンへの SAS/SATA ケーブル配線 ![]() | ||
| 始点 | 終点 | ケーブル |
| 1 BP1: SAS/SATA | 24i G3: C0、C1 | Gen 3: Mini-SAS x4*2 - SlimSAS x8 (640 mm) |
| 2 BP2: SAS/SATA | 24i G3: C2、C3 | Gen 3: Mini-SAS x4*2 - SlimSAS x8 (640 mm) |
| 3 BP3: SAS/SATA | 16i G4: C0 | Gen 4: SlimSAS x8 - SlimSAS x8 (720 mm) |
| 4 BP4: SAS/SATA | 16i G4: C1 | Gen 4: SlimSAS x8 - SlimSAS x8 (720 mm) |
2 x 24i RAID/HBA
| SAS/SATA ケーブル配線 | ||
|---|---|---|
注 構成に応じて、アダプターは上部 PCIe ゾーンまたは下部 PCIe ゾーンに取り付けます。 図 13. 上部 PCIe ゾーンへの SAS/SATA ケーブル配線 ![]() 図 14. 下部 PCIe ゾーンへの SAS/SATA ケーブル配線 ![]() | ||
| 始点 | 終点 | ケーブル |
| 1 BP1: SAS/SATA | 24i G3: C0、C1 | Gen 3: Mini-SAS x4*2 - SlimSAS x8 (640 mm) |
| 2 BP2: SAS/SATA | 24i G3: C2、C3 | Gen 3: Mini-SAS x4*2 - SlimSAS x8 (640 mm) |
| 3 BP3: SAS/SATA | 24i G3: C0、C1 | Gen 3: Mini-SAS x4*2 - SlimSAS x8 (930 mm) |
| 4 BP4: SAS/SATA | 24i G3: C2、C3 | Gen 3: Mini-SAS x4*2 - SlimSAS x8 (930 mm) |
1 x 32i RAID/HBA
| SAS/SATA ケーブル配線 | ||
|---|---|---|
図 15. PCIe スロット 9 への SAS/SATA ケーブル配線 ![]() | ||
| 始点 | 終点 | ケーブル |
| 1 BP1: SAS/SATA | 32i G4: C0 | SlimSAS x8 - SlimSAS x8 (720 mm) |
| 2 BP2: SAS/SATA | 32i G4: C1 | SlimSAS x8 - SlimSAS x8 (720 mm) |
| 3 BP3: SAS/SATA | 32i G4: C2 | SlimSAS x8 - SlimSAS x8 (720 mm) |
| 4 BP4: SAS/SATA | 32i G4: C3 | SlimSAS x8 - SlimSAS x8 (880 mm) |






