Combinaisons mixtes
Parcourez la présente rubrique pour localiser la combinaison avec des fonds de panier d’unité SAS/SATA et AnyBay.
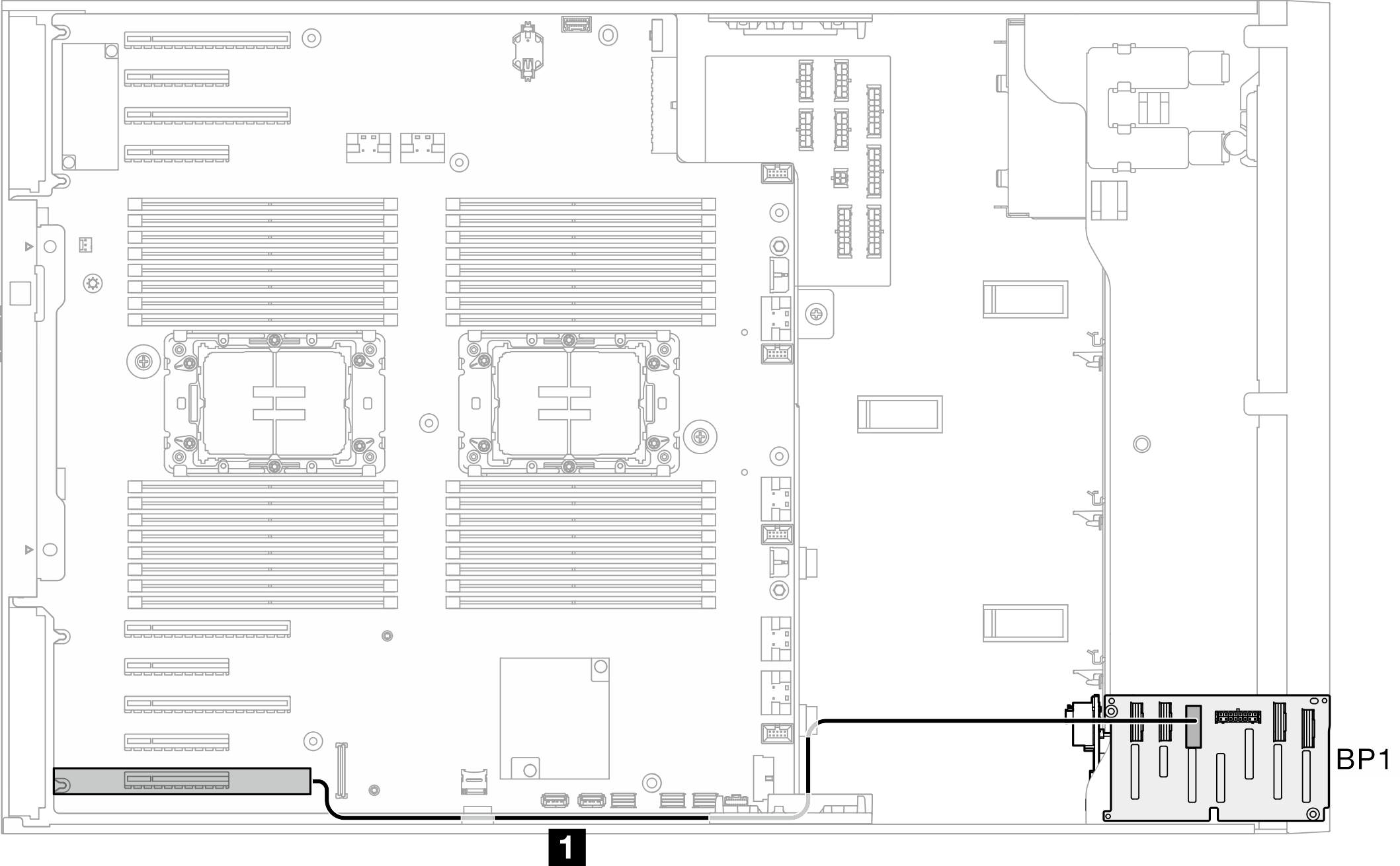
BP1
8i (tri-mode)
![]() | ||
| De | Vers | Fonds de panier |
| 1 8i G4 : C0 | 1 SAS/SATA, BP1 | BP1 : SAS/SATA/NVMe |
BP4
8i (BP4) ; VROC (BP4)
![]() | ||
| De | Vers | Fonds de panier |
|
|
|
BP12
16i (tri-mode)
![]() | ||
| De | Vers | Fonds de panier |
|
|
|
BP34
8i (BP3) ; VROC (BP34)
![]() | ||
| De | Vers | Fonds de panier |
|
|
|
BP14
8i (BP1) ; 8i (BP4) ; VROC (BP4)
![]() | ||
| De | Vers | Fonds de panier |
|
|
|
16i (BP14) ; VROC (BP4)
![]() | ||
| De | Vers | Fonds de panier |
|
|
|
BP234
8i (BP2) ; VROC (BP234)
![]() | ||
| De | Vers | Fonds de panier |
|
|
|
BP124
16i (BP12) ; 8i (BP4) ; VROC (BP4)
![]() | ||
| De | Vers | Fonds de panier |
|
|
|
8i (BP124) ; VROC (BP4)
![]() | ||
| De | Vers | Fonds de panier |
|
|
|
32i (BP124) ; VROC (BP4)
Unités NVMe | ||
| De | Vers | Fonds de panier |
|
|
|
Unités SAS/SATA | ||
| De | Vers | Fonds de panier |
|
|
|
BP1234
16i (BP12) ; 8i (BP34) ; VROC (BP4)
Unités NVMe | ||
| De | Vers | Fonds de panier |
|
|
|
Unités SAS/SATA | ||
| De | Vers | Fonds de panier |
4
|
|
|
16i (BP12) ; 16i (BP34) ; VROC (BP4)
Unités NVMe | ||
| De | Vers | Fonds de panier |
|
|
|
Unités SAS/SATA | ||
| De | Vers | Fonds de panier |
4
|
|
|
32i (BP1234) ; VROC (BP4)
Unités NVMe | ||
| De | Vers | Fonds de panier |
|
|
|
Unités SAS/SATA | ||
| De | Vers | Fonds de panier |
|
|
|
16i (BP12) ; CFF (BP34) ; VROC (BP4)
Unités NVMe | ||
| De | Vers | Fonds de panier |
|
|
|
Unités SAS/SATA | ||
| De | Vers | Fonds de panier |
|
|
|
Envoyer des commentaires












