混在した組み合わせ
SAS/SATA および AnyBay ドライブ・バックプレーンとの組み合わせを見つけるには、このトピックを参照してください。
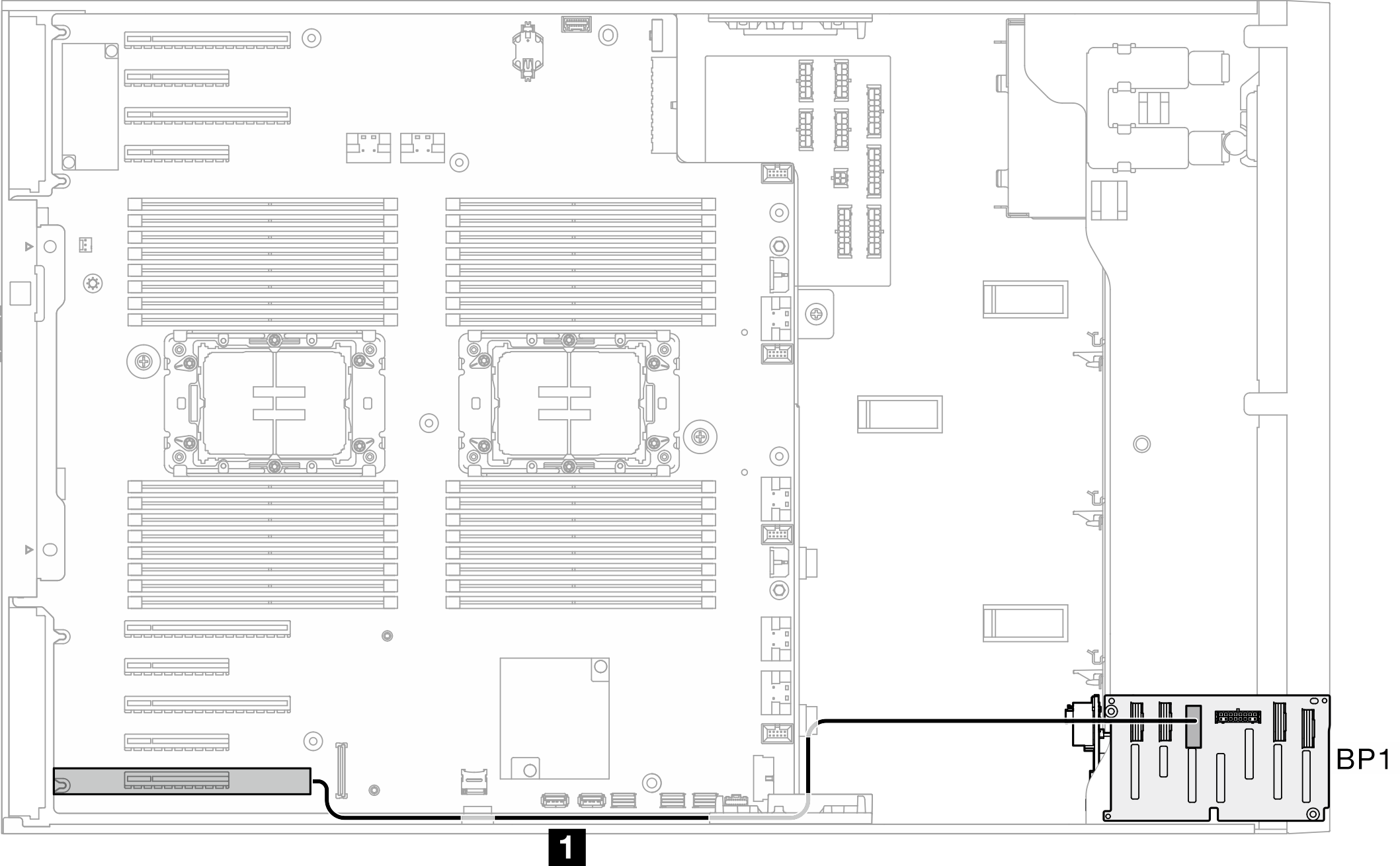
BP1
8i (トライモード)
|  | ||
| 始点 | 終点 | バックプレーン | 
| 1 8i G4: C0 | 1 SAS/SATA、BP1 | BP1: SAS/SATA/NVMe | 
BP4
8i (BP4)、VROC (BP4)
|  | ||
| 始点 | 終点 | バックプレーン | 
| 
 | 
 | 
 | 
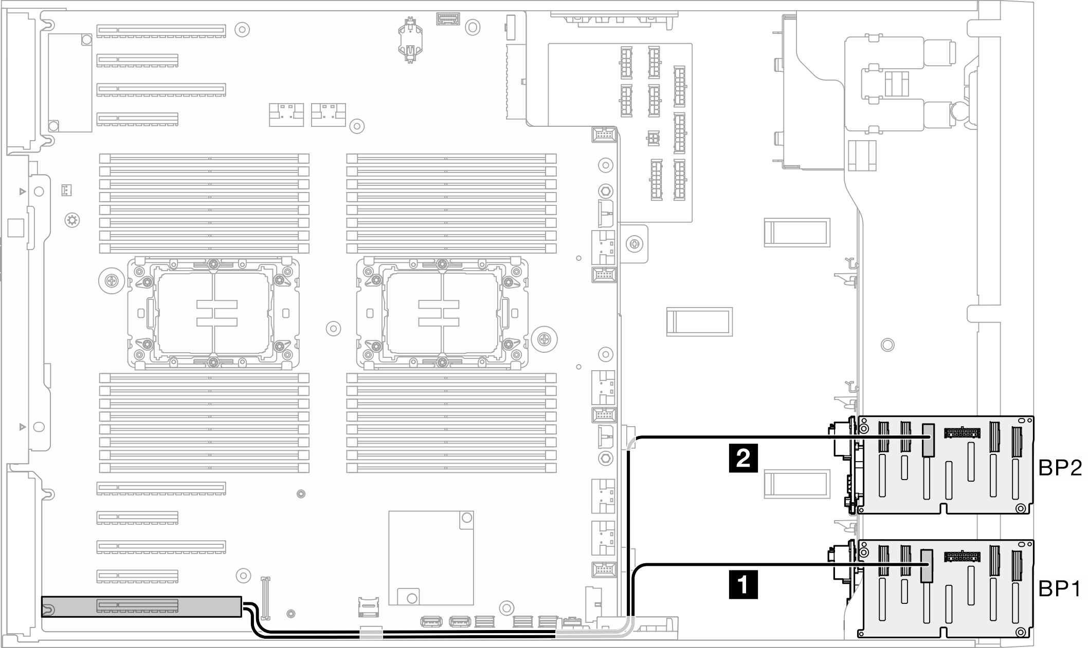
BP12
16i (トライモード)
|  | ||
| 始点 | 終点 | バックプレーン | 
| 
 | 
 | 
 | 
BP34
8i (BP3)、VROC (BP34)
|  | ||
| 始点 | 終点 | バックプレーン | 
| 
 | 
 | 
 | 
BP14
8i (BP1)、8i (BP4)、VROC (BP4)
|  | ||
| 始点 | 終点 | バックプレーン | 
| 
 | 
 | 
 | 
16i (BP14)、VROC (BP4)
|  | ||
| 始点 | 終点 | バックプレーン | 
| 
 | 
 | 
 | 
BP234
8i (BP2)、VROC (BP234)
|  | ||
| 始点 | 終点 | バックプレーン | 
| 
 | 
 | 
 | 
BP124
16i (BP12)、8i (BP4)、VROC (BP4)
|  | ||
| 始点 | 終点 | バックプレーン | 
| 
 | 
 | 
 | 
8i (BP124)、VROC (BP4)
|  | ||
| 始点 | 終点 | バックプレーン | 
| 
 | 
 | 
 | 
32i (BP124)、VROC (BP4)
|  NVMe ドライブ | ||
| 始点 | 終点 | バックプレーン | 
| 
 | 
 | 
 | 
|  SAS/SATA ドライブ | ||
| 始点 | 終点 | バックプレーン | 
| 
 | 
 | 
 | 
BP1234
16i (BP12)、8i (BP34)、VROC (BP4)
|  NVMe ドライブ | ||
| 始点 | 終点 | バックプレーン | 
| 
 | 
 | 
 | 
|  SAS/SATA ドライブ | ||
| 始点 | 終点 | バックプレーン | 
| 4 
 
 
 
 | 
 | 
 | 
16i (BP12)、16i (BP34)、VROC (BP4)
|  NVMe ドライブ | ||
| 始点 | 終点 | バックプレーン | 
| 
 | 
 | 
 | 
|  SAS/SATA ドライブ | ||
| 始点 | 終点 | バックプレーン | 
| 4 
 
 
 
 | 
 | 
 | 
32i (BP1234)、VROC (BP4)
|  NVMe ドライブ | ||
| 始点 | 終点 | バックプレーン | 
| 
 | 
 | 
 | 
|  SAS/SATA ドライブ | ||
| 始点 | 終点 | バックプレーン | 
| 
 | 
 | 
 | 
16i (BP12)、CFF (BP34)、VROC (BP4)
|  NVMe ドライブ | ||
| 始点 | 終点 | バックプレーン | 
| 
 | 
 | 
 | 
|  SAS/SATA ドライブ | ||
| 始点 | 終点 | バックプレーン | 
| 
 | 
 | 
 | 
フィードバックを送る