Gemischte Kombinationen
Mithilfe der Informationen in diesem Abschnitt können Sie die Kombination mit Rückwandplatinen für SAS/SATA‑ und AnyBay-Laufwerke identifizieren.
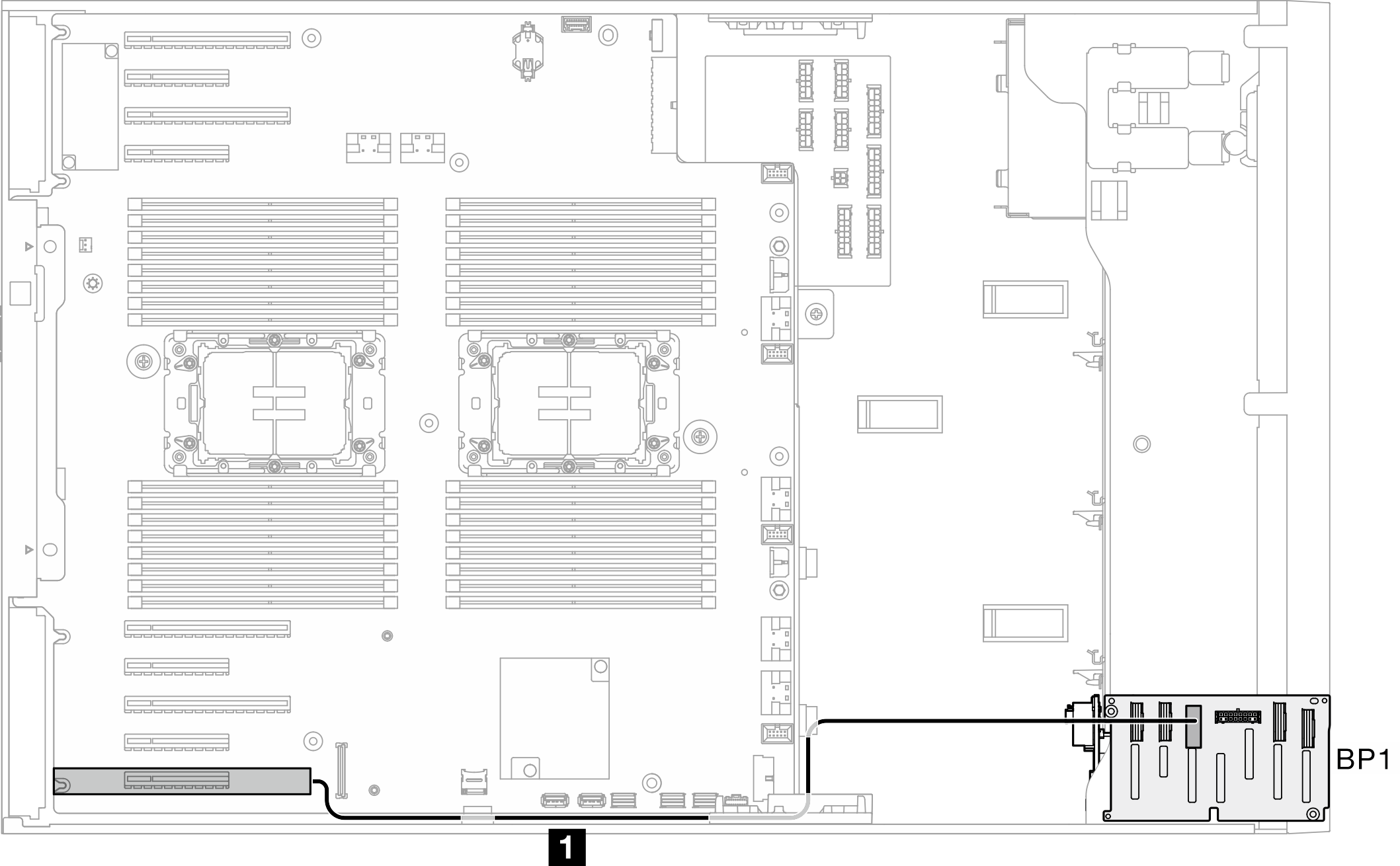
BP1
8i (Tri-Modus)
![]() | ||
| Von | Zu | Rückwandplatinen |
| 1 8i G4: C0 | 1 SAS/SATA, BP1 | BP1: SAS/SATA/NVMe |
BP4
8i (BP4); VROC (BP4)
![]() | ||
| Von | Zu | Rückwandplatinen |
|
|
|
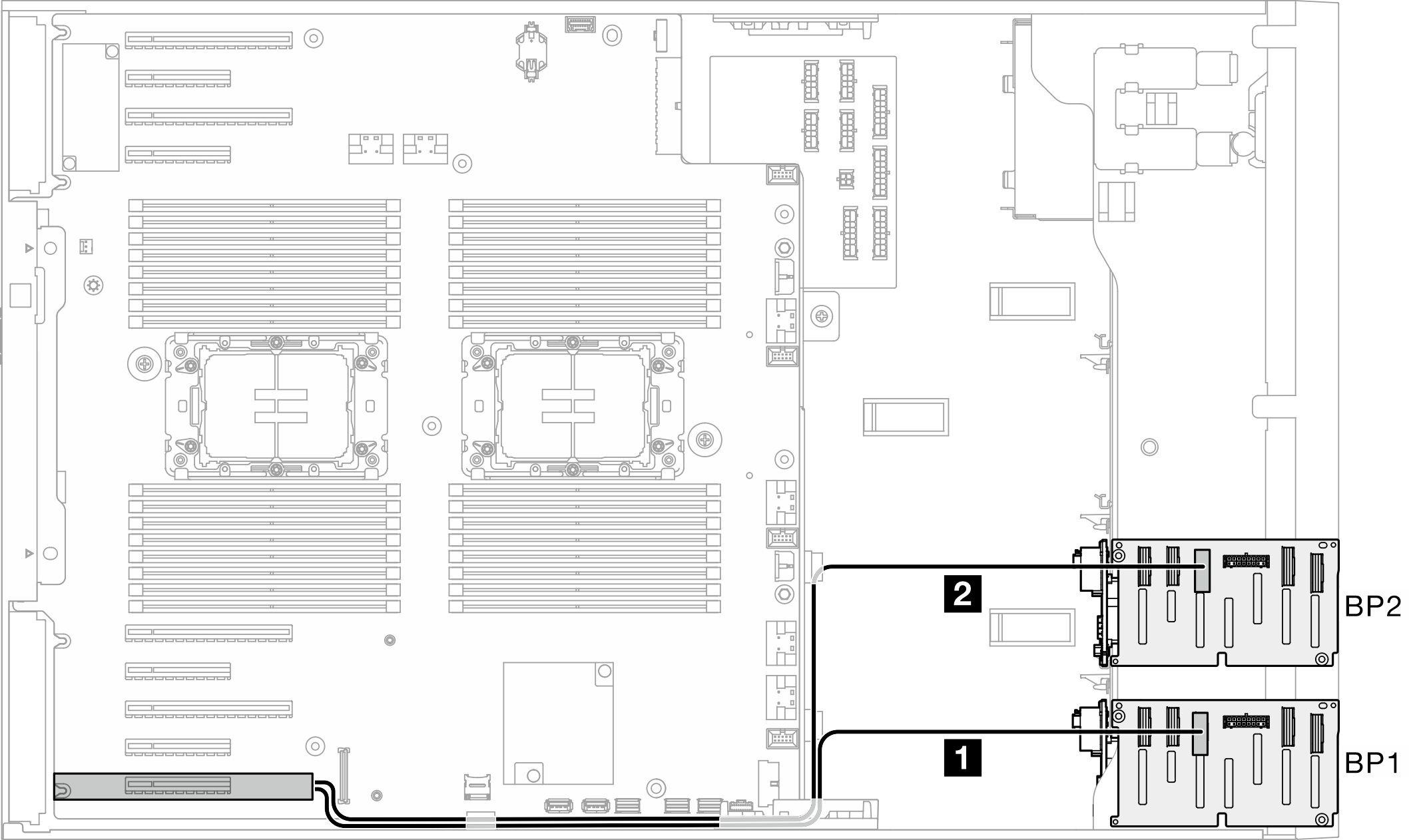
BP12
16i (Tri-Modus)
![]() | ||
| Von | Zu | Rückwandplatinen |
|
|
|
BP34
8i (BP3); VROC (BP34)
![]() | ||
| Von | Zu | Rückwandplatinen |
|
|
|
BP14
8i (BP1); 8i (BP4); VROC (BP4)
![]() | ||
| Von | Zu | Rückwandplatinen |
|
|
|
16i (BP14); VROC (BP4)
![]() | ||
| Von | Zu | Rückwandplatinen |
|
|
|
BP234
8i (BP2); VROC (BP234)
![]() | ||
| Von | Zu | Rückwandplatinen |
|
|
|
BP124
16i (BP12); 8i (BP4); VROC (BP4)
![]() | ||
| Von | Zu | Rückwandplatinen |
|
|
|
8i (BP124); VROC (BP4)
![]() | ||
| Von | Zu | Rückwandplatinen |
|
|
|
32i (BP124); VROC (BP4)
NVMe-Laufwerke | ||
| Von | Zu | Rückwandplatinen |
|
|
|
SAS/SATA-Laufwerke | ||
| Von | Zu | Rückwandplatinen |
|
|
|
BP1234
16i (BP12); 8i (BP34); VROC (BP4)
NVMe-Laufwerke | ||
| Von | Zu | Rückwandplatinen |
|
|
|
SAS/SATA-Laufwerke | ||
| Von | Zu | Rückwandplatinen |
4
|
|
|
16i (BP12); 16i (BP34); VROC (BP4)
NVMe-Laufwerke | ||
| Von | Zu | Rückwandplatinen |
|
|
|
SAS/SATA-Laufwerke | ||
| Von | Zu | Rückwandplatinen |
4
|
|
|
32i (BP1234); VROC (BP4)
NVMe-Laufwerke | ||
| Von | Zu | Rückwandplatinen |
|
|
|
SAS/SATA-Laufwerke | ||
| Von | Zu | Rückwandplatinen |
|
|
|
16i (BP12); CFF (BP34); VROC (BP4)
NVMe-Laufwerke | ||
| Von | Zu | Rückwandplatinen |
|
|
|
SAS/SATA-Laufwerke | ||
| Von | Zu | Rückwandplatinen |
|
|
|
Feedback geben












