Смешанные сочетания
В этом разделе представлены сведения о том, как найти сочетание с объединительными панелями для дисков SAS/SATA и AnyBay.
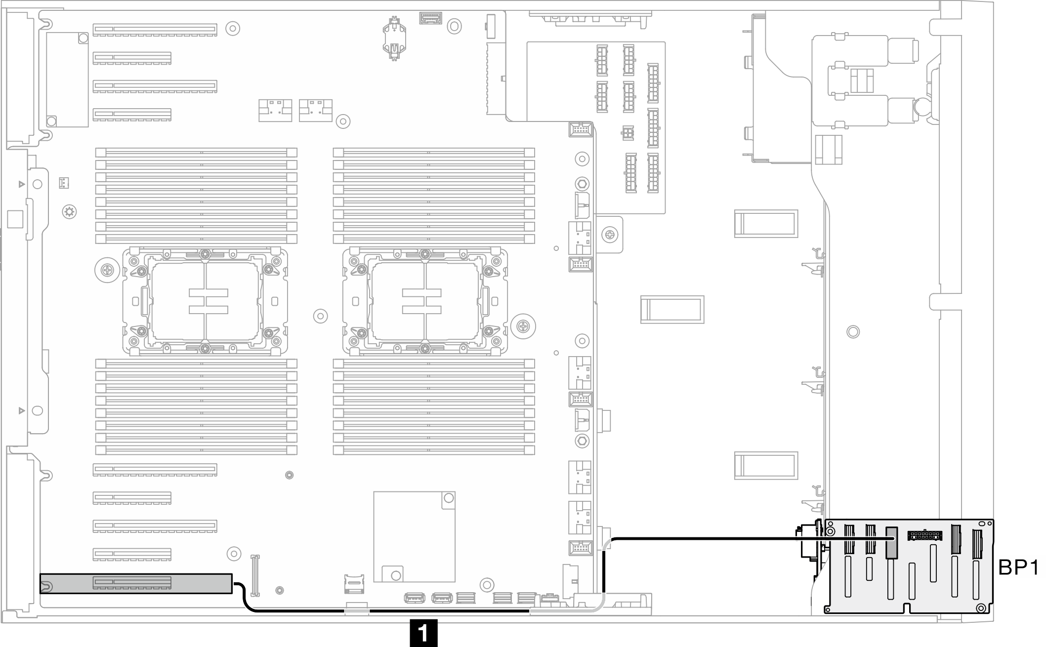
BP1
8i (трехрежимный)
![]() | ||
| От | К | Объединительные панели |
| 1 8i G4: C0 | 1 SAS/SATA, BP1 | BP1: SAS/SATA/NVMe |
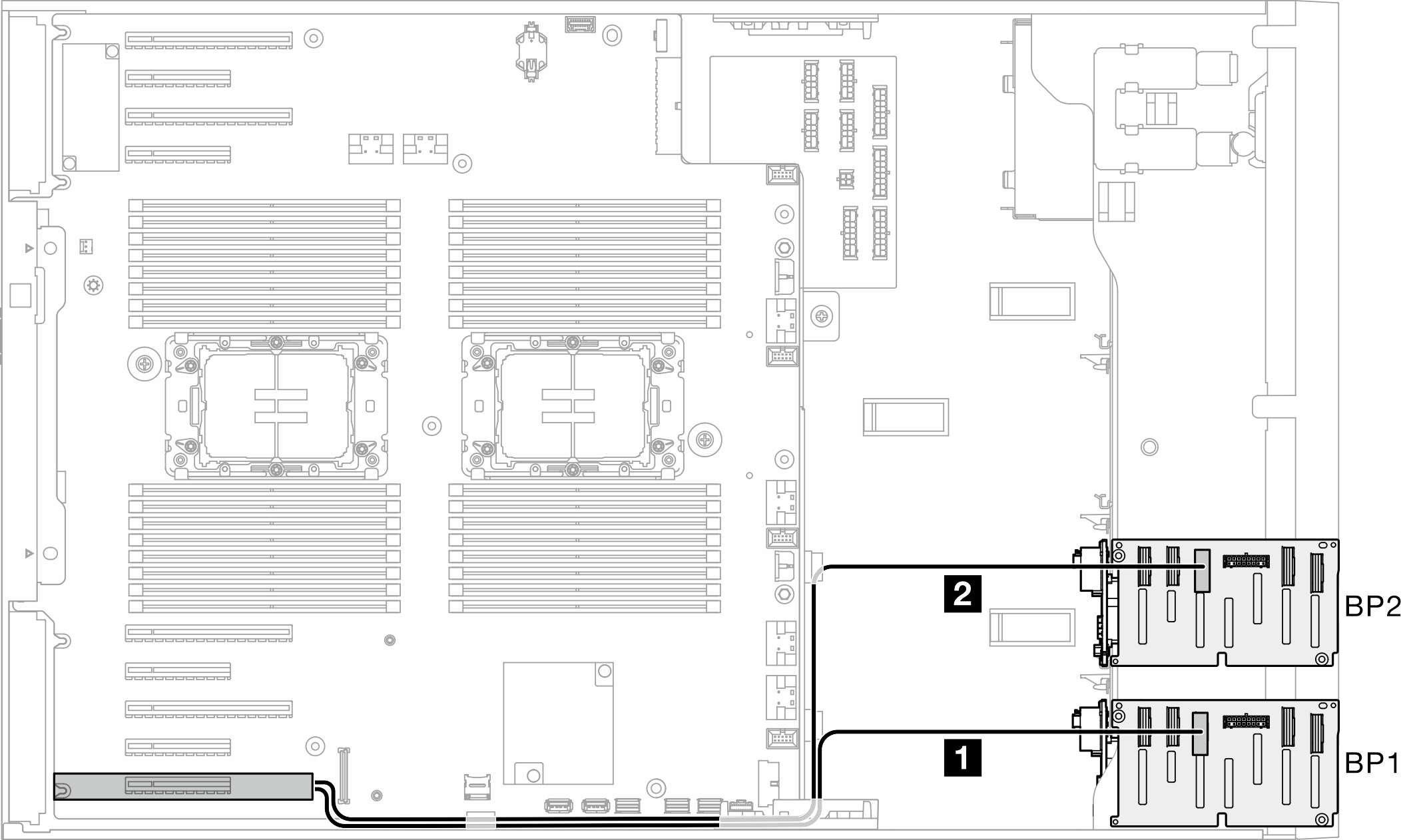
BP4
8i (BP4); VROC (BP4)
![]() | ||
| От | К | Объединительные панели |
|
|
|
BP12
16i (трехрежимный)
![]() | ||
| От | К | Объединительные панели |
|
|
|
BP34
8i (BP3); VROC (BP34)
![]() | ||
| От | К | Объединительные панели |
|
|
|
BP14
8i (BP1); 8i (BP4); VROC (BP4)
![]() | ||
| От | К | Объединительные панели |
|
|
|
16i (BP14); VROC (BP4)
![]() | ||
| От | К | Объединительные панели |
|
|
|
BP234
8i (BP2); VROC (BP234)
![]() | ||
| От | К | Объединительные панели |
|
|
|
BP124
16i (BP12); 8i (BP4); VROC (BP4)
![]() | ||
| От | К | Объединительные панели |
|
|
|
8i (BP124); VROC (BP4)
![]() | ||
| От | К | Объединительные панели |
|
|
|
32i (BP124); VROC (BP4)
Диски NVMe | ||
| От | К | Объединительные панели |
|
|
|
Диски SAS/SATA | ||
| От | К | Объединительные панели |
|
|
|
BP1234
16i (BP12); 8i (BP34); VROC (BP4)
Диски NVMe | ||
| От | К | Объединительные панели |
|
|
|
Диски SAS/SATA | ||
| От | К | Объединительные панели |
4
|
|
|
16i (BP12); 16i (BP34); VROC (BP4)
Диски NVMe | ||
| От | К | Объединительные панели |
|
|
|
Диски SAS/SATA | ||
| От | К | Объединительные панели |
4
|
|
|
32i (BP1234); VROC (BP4)
Диски NVMe | ||
| От | К | Объединительные панели |
|
|
|
Диски SAS/SATA | ||
| От | К | Объединительные панели |
|
|
|
16i (BP12); CFF (BP34); VROC (BP4)
Диски NVMe | ||
| От | К | Объединительные панели |
|
|
|
Диски SAS/SATA | ||
| От | К | Объединительные панели |
|
|
|
Предоставить обратную связь












