 |
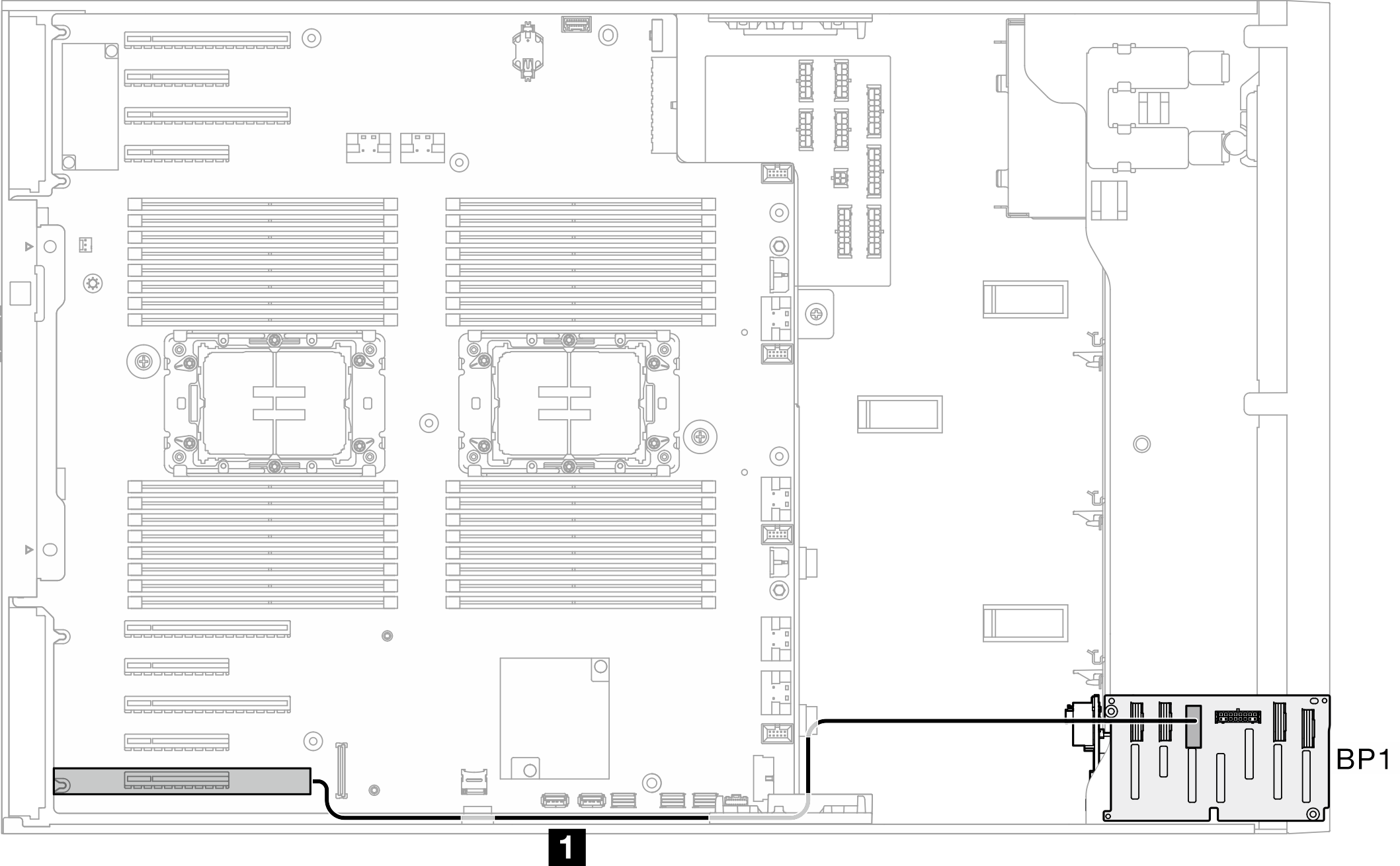
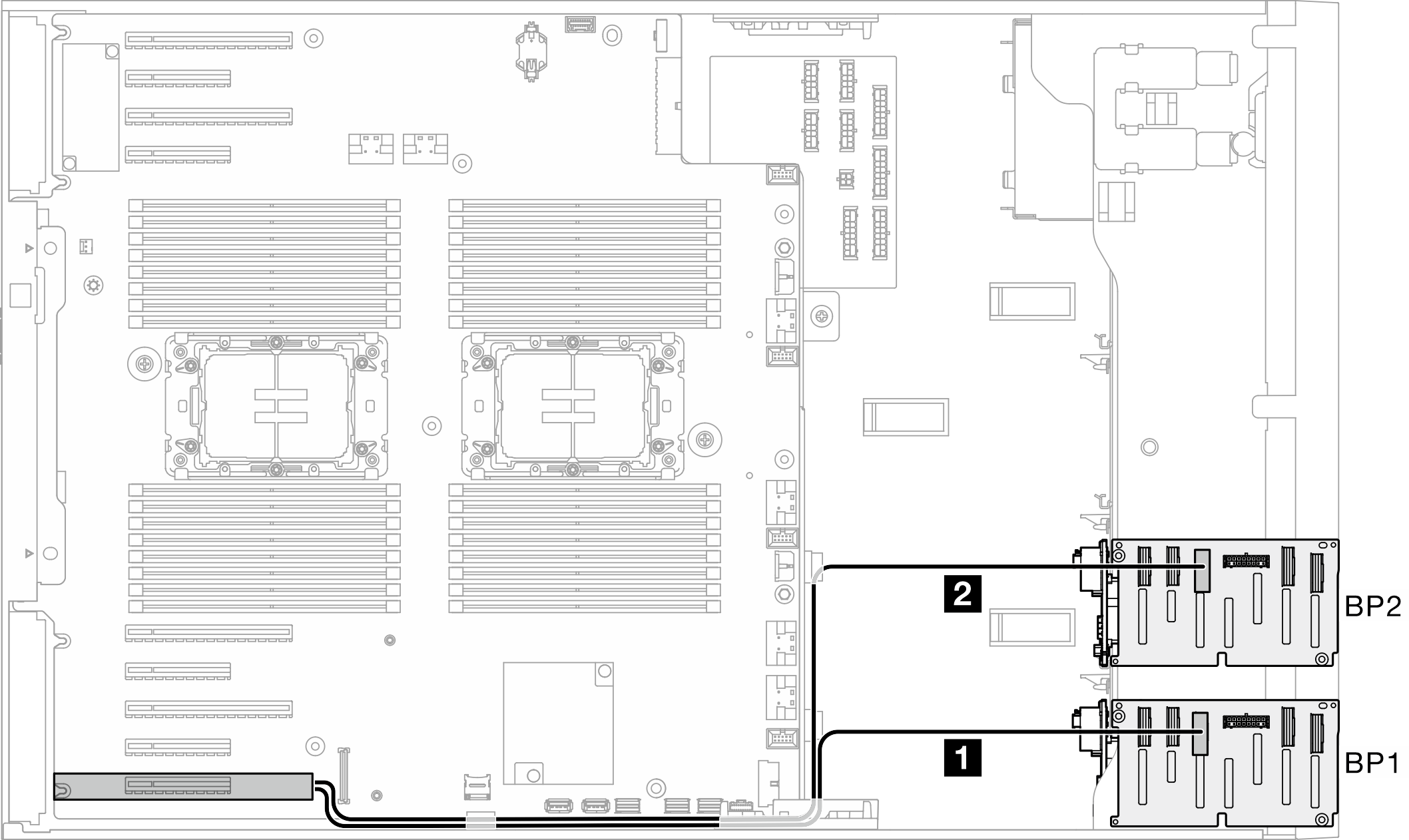
De | Para | Backplanes |
- 4b PCIe 1, placa-mãe
- 4b PCIe 2, placa-mãe
- 4a PCIe 5, placa-mãe
- 4a PCIe 6, placa-mãe
- 3b C0, placa temporizadora
- 3b C1, placa temporizadora
- 3a PCIe 4, placa-mãe
- 3a PCIe 3, placa-mãe
- 2b C0, placa temporizadora
- 2b C1, placa temporizadora
- 2a C0, placa temporizadora
- 2a C1, placa temporizadora
- 2s
- 8i G4: C0
- 8i G3: C0, C1
| - 4b NVMe 4-5, BP4
- 4b NVMe 6-7, BP4
- 4a NVMe 0-1, BP4
- 4a NVMe 2-3, BP4
- 3b NVMe 4-5, BP3
- 3b NVMe 6-7, BP3
- 3a NVMe 0-1, BP3
- 3a NVMe 2-3, BP3
- 2b NVMe 0-1, BP2
- 2b NVMe 2-3, BP2
- 2a NVMe 4-5, BP2
- 2a NVMe 6-7, BP2
- 2s SAS/SATA, BP2
| - BP4: NVMe
- BP3: NVMe
- BP2: SAS/SATA/NVMe
- BP1: vazio
|