Zum Hauptinhalt springen

Gehäuse aus dem Rack entfernen

Mithilfe der Informationen in diesem Abschnitt können Sie das Gehäuse aus dem Rack entfernen.

Zu dieser Aufgabe

S002
disconnect all power
VORSICHT
Mit dem Netzschalter an der Einheit und am Netzteil wird die Stromversorgung für die Einheit nicht unterbrochen. Die Einheit kann auch mit mehreren Netzkabeln ausgestattet sein. Um die Stromversorgung für die Einheit vollständig zu unterbrechen, müssen alle zum Gerät führenden Netzkabel vom Netz getrennt werden.
Achtung
  • Lesen Sie Installationsrichtlinien und Sicherheitsprüfungscheckliste, um sicherzustellen, dass Sie sicher arbeiten.

  • Beim Bewegen des Gehäuses über längere Strecken oder bei größeren Bewegungen müssen Hebevorrichtung und Hebegriffe verwendet werden. Das manuelle Anheben ohne Werkzeuge darf nur erfolgen, wenn das Gehäuse über eine kurze Distanz bewegt wird. Achten Sie beim manuellen Anheben darauf, nicht an den oberen Kanten an der Vorder- und Rückseite des Gehäuses zu greifen, um Beschädigungen zu vermeiden.

    Abbildung 1. Eingeschränkter Bereich für manuelles Heben (nur für kurze Distanzen)

  • Führen Sie die folgenden Schritte aus, um die Lösung bei Bedarf herunterzufahren.

    1. Erfassen Sie die folgenden Informationen über das Gehäuse, das Sie entfernen.

      1. Melden Sie sich bei der SMM3-Webschnittstelle an, wechseln Sie zu System > Bestand > Gehäuse und notieren Sie sich die Seriennummer des Gehäuses, den Namen und die UUID.

      2. Melden Sie sich bei der SMM3-Webschnittstelle an, wechseln Sie zu System > Bestand > Interposer und notieren Sie die UUID.

      3. Melden Sie sich bei der SMM3-Webschnittstelle an, wechseln Sie zu Stromversorgung > Leistungskonfiguration und notieren Sie die Mindestanzahl an PCS.

    2. Gehäuse funktioniert nicht:
      1. Die Seriennummer des Gehäuses und das Maschinentypmodell finden Sie auf einem der Gehäuseetiketten.
      2. Notieren Sie die Seriennummer des Gehäuses, das Maschinentypmodell und die UUID, bevor Sie fortfahren.
  • Ziehen Sie alle externen Kabel vom Gehäuse ab.

  • Ziehen Sie die QSFP-Kabel von der Lösung ab. Dies erfordert zusätzliche Kraft.

Sehen Sie sich das Verfahren an
  • Ein Video zu diesem Verfahren ist auf YouTube.

Vorgehensweise

  1. Bereiten Sie diese Aufgabe vor.
    1. Entfernen Sie alle Einbaurahmen aus dem Gehäuse. Siehe Einbaurahmen aus dem Gehäuse entfernen.
    2. Entfernen Sie die Abdeckblende. Weitere Informationen unter Abdeckblende entfernen.
    3. Entfernen Sie den SMM3. Weitere Informationen unter SMM3 entfernen.
    4. Trennen Sie die Netzkabel und entfernen Sie alle Power Conversion Stations (PCS). Siehe Power Conversion Station (PCS) entfernen.
    5. Entfernen Sie alle Power Conversion Station (PCS)-Rahmen. Siehe Power Conversion Station (PCS)-Rahmen entfernen.
    6. Entfernen Sie die oberen und unteren Leitungen. Siehe Leitung entfernen.
    7. Entfernen Sie die Mittelplattenbaugruppe. Weitere Informationen unter Mittelplattenbaugruppe entfernen.
  2. Entfernen Sie die EIA-Abdeckungen vom Rack.
    1. Entfernen Sie die zwei Schrauben an jeder Rackstütze, um die EIA-Abdeckungen zu lösen.
      Abbildung 2. Entfernen der Schrauben von EIA-Abdeckungen

    2. Entfernen Sie die EIA-Halterungen von den Rackstützen.
      Abbildung 3. Entfernen der EIA-Abdeckungen

  3. Entfernen Sie die untere vordere Halterung.
    1. Entfernen Sie sechs Schrauben, um die untere Halterung von der Vorderseite des Gehäuses zu lösen.
      Abbildung 4. Entfernen der unteren vorderen Halterung

    2. Entfernen Sie sechs Schrauben an jeder Rackstütze an, um die untere vordere Halterung vom Gehäuse zu entfernen.
      Abbildung 5. Entfernen der unteren vorderen Halterung

  4. Entfernen Sie die obere vordere Halterung.
    1. Entfernen Sie vier Schrauben, um die obere vordere Halterung vom Gehäuse zu lösen.
      Abbildung 6. Entfernen der oberen vorderen Halterung

    2. Entfernen Sie zwei Schrauben von der Unterseite der oberen vorderen Halterung.
      Abbildung 7. Entfernen von zwei Schrauben von der Unterseite der oberen vorderen Halterung

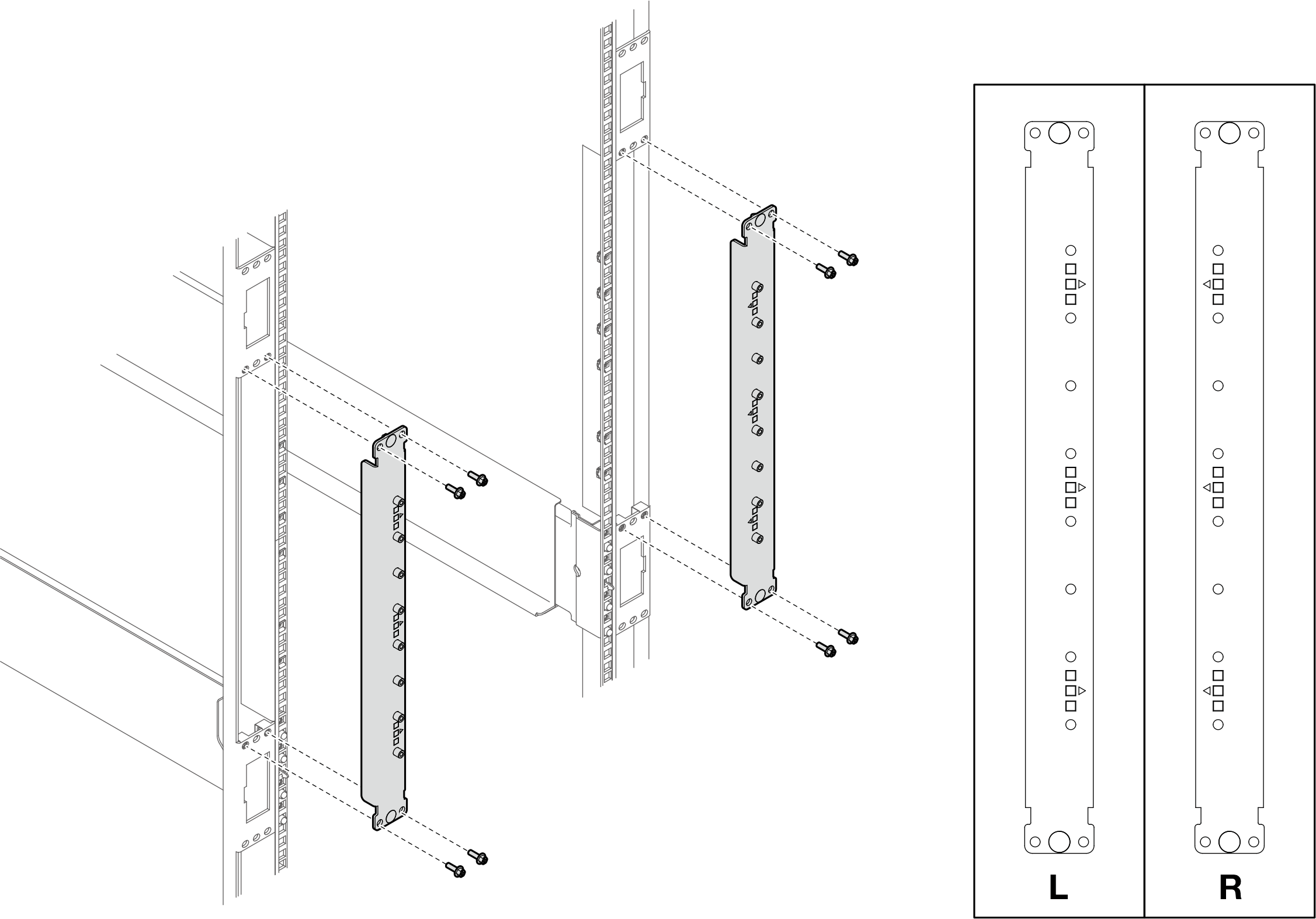
  5. Entfernen Sie die EIA-Halterungen am Gehäuse. Entfernen Sie die fünf Schrauben an jeder Rackstütze, um die EIA-Halterungen aus dem Rack zu entfernen.
    Abbildung 8. Entfernen der EIA-Halterungen von der Vorderseite des Gehäuses

  6. Entfernen Sie die vier Schrauben, um die hintere Halterung von der Gehäuserückseite zu lösen.
    Abbildung 9. Lösen der hinteren Halterung von der Gehäuserückseite

  7. Lösen Sie von der Innenseite der Rückseite des Gehäuses sechs Schrauben, um die hintere Halterung von der Unterseite des Gehäuses zu entfernen.
    Abbildung 10. Entfernen der hinteren Halterung von der Unterseite des Gehäuses

  8. Entfernen Sie acht Schrauben an der linken Innenseite, um die hintere Halterung am Gehäuse zu befestigen.
    Abbildung 11. Entfernen der Schrauben von der linken Innenseite des Gehäuses

  9. Entfernen Sie acht Schrauben von der rechten Innenseite, um das Gehäuse von der hinteren Halterung zu lösen.
    Abbildung 12. Entfernen der Schrauben von der rechten Innenseite des Gehäuses

  10. Schieben Sie das Gehäuse von der Vorderseite des Racks heraus, bis Sie an beiden Seiten die vorderen Hebegriffe anbringen können. Richten Sie die Schlitze an den Griffen an den Stützen am Gehäuse aus und schieben Sie die Griffe nach oben, bis sie einrasten.
    Abbildung 13. Entfernen des Gehäuses aus dem Rack

    Abbildung 14. Installieren der vorderen Hebegriffe am Gehäuse

  11. Halten Sie die vorderen Griffe an beiden Seiten und ziehen Sie das Gehäuse heraus, bis genügend Platz für die Installation der hinteren Griffe vorhanden ist.
    Abbildung 15. Installieren der hinteren Hebegriffe am Gehäuse

  12. Halten Sie die vorderen und hinteren Griffe an beiden Seiten, um das Gehäuse aus dem Rack zu ziehen. Legen Sie das Gehäuse dann vorsichtig auf einer stabilen Arbeitsoberfläche ab.
    Abbildung 16. Halten der Griffe beim Entfernen des Gehäuses aus dem Rack

  13. Entfernen Sie die Hebegriffe vom Gehäuse.
    1. Drücken Sie die Verriegelungen an den Seiten des Hebegriffs.
    2. Schieben Sie den Hebegriff nach unten und entfernen Sie ihn dann von der Mittelplatte.
    Abbildung 17. Entfernen der Hebegriffe vom Gehäuse

  14. Entfernen Sie die hintere Halterung.
    1. Entfernen Sie alle Schrauben, um die hintere Halterung vom Erweiterungssatz zu lösen.
      Abbildung 18. Entfernen der hinteren Halterung vom Erweiterungssatz

    2. Lösen Sie die zehn Schrauben an jeder Rackstütze, um die hintere Halterung vom Rack zu lösen.
      Abbildung 19. Lösen der Schrauben zum Entfernen der hinteren Halterung

    3. Entfernen Sie die hintere Halterung aus dem Rack.
      Abbildung 20. Entfernen der hinteren Halterung

  15. (Optional) Entfernen Sie vier Schrauben an jeder Rackstütze, um die Erweiterungssätze von den Rackstützen zu lösen. Entfernen Sie die Erweiterungssätze aus dem Rack.
    Abbildung 21. Entfernen der Erweiterungssätze

Nach dieser Aufgabe

  1. Befolgen Sie zum Entfernen der Schienen aus einem Rack die Anweisungen in Schiene aus dem Rack entfernen.

  2. Wenn Sie angewiesen werden, die Komponente oder die Zusatzeinrichtung einzusenden, befolgen Sie die Verpackungsanweisungen und verwenden Sie ggf. das mitgelieferte Verpackungsmaterial für den Transport.