Saltar al contenido principal

Quitar el alojamiento del bastidor

Utilice esta información para quitar el alojamiento del bastidor.

Acerca de esta tarea

S002
disconnect all power
PRECAUCIÓN
El botón de control de encendido del dispositivo y el interruptor de alimentación de la fuente de alimentación no cortan la corriente eléctrica suministrada al dispositivo. Es posible que el dispositivo tenga también más de un cable de alimentación. Para cortar completamente la corriente eléctrica del dispositivo, asegúrese de que todos los cables de alimentación estén desconectados de la fuente de alimentación.
Atención
  • Lea Directrices de instalación y Lista de comprobación de inspección de seguridad para asegurarse de trabajar con seguridad.

  • Al trasladar el alojamiento por largas distancias o con movimientos de mayor envergadura, se deben utilizar la herramienta de elevación y las asas de elevación. La elevación manual sin herramientas solo se puede realizar cuando el alojamiento se traslada a corta distancia. Al levantar el alojamiento manualmente, evite sujetar los bordes superiores en la parte frontal y posterior del alojamiento para evitar daños.

    Figura 1. Área restringida para levantamiento manual (solo para distancias cortas)

  • Siga los pasos que se indican a continuación para apagar la solución si es necesario.

    1. Registre la siguiente información del alojamiento que está extrayendo.

      1. Inicie sesión en la interfaz web de SMM3 y vaya a Sistema > Inventario > Alojamiento y registre el número de serie, el nombre y el UUID del alojamiento.

      2. Inicie sesión en la interfaz web de SMM3, vaya a Sistema > Inventario > Intercalador y registre el UUID.

      3. Inicie sesión en la interfaz web de SMM3 y vaya a Alimentación > Configuración de alimentación y registre el recuento mínimo de PCS.

    2. El alojamiento no está funcionando:
      1. Obtenga el número de serie de alojamiento y el modelo de tipo de máquina de una de las etiquetas del alojamiento.
      2. Registre el número de serie de alojamiento, el modelo de tipo de máquina y el UUID antes de continuar.
  • Desconecte todos los cables externos del alojamiento.

  • Utilice la fuerza adicional para desconectar los cables QSFP si están conectados a la solución.

Observe el procedimiento
  • Un video de este procedimiento está disponible en YouTube.

Procedimiento

  1. Prepárese para esta tarea.
    1. Quite todas las bandejas del alojamiento. Consulte Extracción de una bandeja del alojamiento.
    2. Extraiga el relleno vacío. Consulte Extracción del relleno vacío.
    3. Extraiga el SMM3. Consulte Extracción del SMM3.
    4. Desconecte los cables de alimentación y quite todas las estaciones de conversión de energía (PCS). Consulte Extracción de una estación de conversión de energía (PCS).
    5. Quita todos los compartimientos de la estación de conversión de energía (PCS). Consulte Extracción del compartimiento de la estación de conversión de energía (PCS).
    6. Quite los múltiples superior e inferior. Consulte Quitar el múltiple.
    7. Quite el conjunto de la placa media del alojamiento. Consulte Extracción del conjunto de la placa media.
  2. Quite las cubiertas EIA del bastidor.
    1. Quite dos tornillos a cada poste del bastidor para separar las cubiertas EIA.
      Figura 2. Extracción de tornillos de las cubiertas EIA

    2. Quite los soportes EIA de los postes del bastidor.
      Figura 3. Extracción de las cubiertas EIA

  3. Extracción de la abrazadera de soporte frontal inferior.
    1. Quite seis tornillos para separar la abrazadera de soporte inferior del extremo frontal del alojamiento.
      Figura 4. Extracción de la abrazadera de soporte inferior

    2. Quite seis tornillos en cada poste del bastidor para quitar la abrazadera de soporte frontal inferior del alojamiento.
      Figura 5. Extracción de la abrazadera de soporte frontal inferior

  4. Quite la abrazadera de soporte frontal superior.
    1. Quite cuatro tornillos para separar la abrazadera de soporte frontal superior del alojamiento.
      Figura 6. Extracción de la abrazadera de soporte frontal superior

    2. Quite dos tornillos desde debajo de la abrazadera de soporte frontal superior.
      Figura 7. Extracción de dos tornillos desde debajo de la abrazadera de soporte frontal superior.

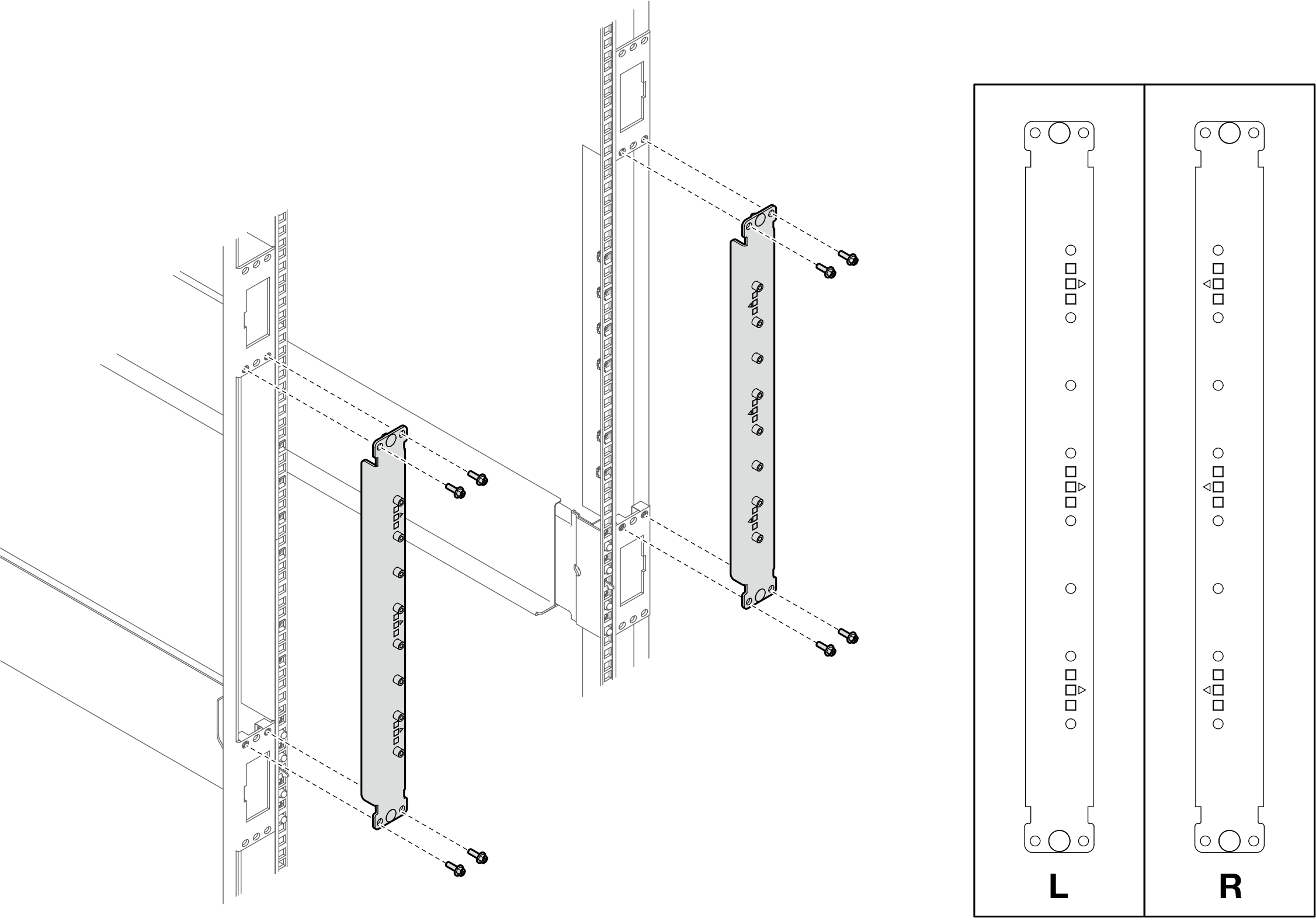
  5. Quite los soportes EIA del alojamiento. Quite cinco tornillos en cada poste del bastidor para quitar los soportes EIA del bastidor.
    Figura 8. Extracción de los soportes EIA de la parte frontal del alojamiento

  6. Quite cuatro tornillos para separar la abrazadera de soporte posterior del extremo posterior del alojamiento.
    Figura 9. Separación de la abrazadera de soporte posterior del extremo posterior del alojamiento

  7. Desde el interior de la parte posterior del alojamiento, suelte seis tornillos para separar la abrazadera de soporte posterior desde la parte inferior del alojamiento.
    Figura 10. Separación de la abrazadera de soporte posterior de la parte inferior del alojamiento.

  8. Quite ocho tornillos en el lado interno izquierdo para fijar la abrazadera de soporte posterior al alojamiento.
    Figura 11. Extracción de los tornillos del lado interno izquierdo del alojamiento

  9. Quite ocho tornillos del lado interno derecho para separar el alojamiento de la abrazadera de soporte posterior.
    Figura 12. Extracción de los tornillos del lado interno derecho del alojamiento

  10. Desde la parte frontal del bastidor, deslice el alojamiento hacia afuera hasta que pueda fijar asas de elevación frontales a ambos lados. Alinee las ranuras de las manijas con los postes en el alojamiento y las asas de deslizamiento hasta que se traban en sus lugares.
    Figura 13. Extracción del alojamiento del bastidor

    Figura 14. Instalación de asas de elevación frontales en el alojamiento

  11. Sostenga las asas frontales en ambos lados y deslice el alojamiento hasta que tenga espacio suficiente para instalar las asas posteriores.
    Figura 15. Instalación de asas de elevación posteriores en el alojamiento

  12. Sostenga con cuidado las asas frontal y posterior a ambos lados para deslizar el alojamiento hacia fuera del bastidor; a continuación, coloque suavemente el alojamiento en una superficie de trabajo estable.
    Figura 16. Sujeción de las asas al quitar el alojamiento del bastidor

  13. Quite las asas de elevación del alojamiento.
    1. Presione los pestillos que se encuentran a los lados del asa de elevación.
    2. Deslice el asa de elevación hacia abajo y, luego, quítela de la placa media.
    Figura 17. Extracción de las asas de elevación del alojamiento

  14. Quite la abrazadera de soporte posterior.
    1. Quite todos los tornillos para separar la abrazadera de soporte posterior del kit de optimización.
      Figura 18. Extracción de la abrazadera de soporte posterior del kit de optimización

    2. Suelte diez tornillos en cada poste del bastidor para separar la abrazadera de soporte posterior del bastidor.
      Figura 19. Extracción de los tornillos para separar la abrazadera de soporte posterior

    3. Quite la abrazadera de soporte posterior del bastidor.
      Figura 20. Extracción de la abrazadera de soporte posterior

  15. (Opcional) Quite los cuatro tornillos de cada poste del bastidor para separar los kits de optimización de los postes del bastidor. Extraiga los kits de mejora del bastidor.
    Figura 21. Extracción de los kits de mejora

Después de finalizar

  1. Para quitar los rieles de un bastidor, siga las instrucciones que se indican en Extracción del riel del bastidor.

  2. Si se le indica que devuelva el componente o dispositivo opcional, siga todas las instrucciones del embalaje y utilice los materiales de embalaje para el envío que se le suministraron.