Aller au contenu principal

Retrait du boîtier de l’armoire

Les informations suivantes vous indiquent comment retirer le boîtier de l’armoire.

À propos de cette tâche

S002
disconnect all power
ATTENTION
Le bouton de mise sous tension du serveur et l’interrupteur du bloc d’alimentation ne coupent pas le courant électrique alimentant l’unité. En outre, le système peut être équipé de plusieurs cordons d'alimentation. Pour mettre l'unité hors tension, vous devez déconnecter tous les cordons de la source d'alimentation.
Avertissement
  • Lisez Conseils d’installation et Liste de contrôle d’inspection de sécurité pour vous assurer que vous travaillez en toute sécurité.

  • Lors du déplacement du boîtier sur de longues distances ou lors de mouvements plus importants, il convient d’utiliser un outil de levage et des poignées de levage. Il n’est possible de lever le boîtier manuellement sans outils que lors de son déplacement sur une courte distance. Lors d’un levage manuel, veillez à ne pas saisir les bords supérieurs situés à l’avant et à l’arrière du boîtier afin d’éviter tout dommage.

    Figure 1. Zone restreinte pour le levage manuel (courte distance uniquement)

  • Suivez les étapes ci-dessous pour arrêter la solution si nécessaire.

    1. Enregistrez les informations suivantes sur le boîtier que vous retirez.

      1. Connectez-vous à l’interface Web SMM3, accédez à Système > Inventaire > Boîtier, puis notez le numéro de série, le nom et de l’UUID du boîtier.

      2. Connectez-vous à l’interface Web SMM3 et accédez à Système > Inventaire > Interposeur, puis notez l’UUID.

      3. Connectez-vous à l’interface Web SMM3 et accédez à Alimentation > Configuration de l’alimentation, puis notez le nombre minimal de PCS.

    2. Le boîtier ne fonctionne pas :
      1. Obtenez le numéro de série du boîtier et le modèle du type de machine à partir de l'une des étiquettes du boîtier.
      2. Notez le numéro de série du boîtier, le modèle du type de machine et l'identificateur unique universel avant de poursuivre.
  • Débranchez tous les câbles externes du boîtier.

  • Exercez une force supplémentaire pour déconnecter les câbles QSFP éventuellement connectés à la solution.

Visionnage de la procédure
  • Une vidéo de cette procédure est disponible sur YouTube.

Procédure

  1. Préparez-vous en vue de cette tâche.
    1. Retirez tous les plateaux du boîtier. Voir Retrait d’un plateau du boîtier.
    2. Retrait de l’obturateur. Voir Retrait de l’obturateur.
    3. Retirez la SMM3. Voir Retrait du SMM3.
    4. Débranchez les cordons d’alimentation et retirez toutes les stations de conversion d’alimentation (PCS). Voir Retrait d’une station de conversion d’alimentation (PCS).
    5. Retirez tous les boîtiers des stations de conversion d’alimentation (PCS). Voir Retrait d’un boîtier de station de conversion d’alimentation (PCS).
    6. Retirez les collecteurs supérieur et inférieur. Voir Retrait du collecteur.
    7. Retirez le bloc plaque médiane du boîtier. Voir Retrait de l’assemblage de la plaque médiane.
  2. Retirez les caches EIA de l’armoire.
    1. Retirez deux vis de chaque montant de l’armoire pour détacher les caches EIA.
      Figure 2. Retrait des vis des capots EIA

    2. Retirez les supports EIA des montants de l’armoire.
      Figure 3. Retrait des caches EIA

  3. Retirez le support inférieur avant.
    1. Retirez six vis afin de détacher le support inférieur de l’extrémité avant du boîtier.
      Figure 4. Retrait du support inférieur

    2. Retirez six vis de chaque montant de l’armoire pour retirer le support inférieur avant du boîtier.
      Figure 5. Retrait du support inférieur avant

  4. Retirez le support avant supérieur.
    1. Retirez quatre vis afin de détacher le support supérieur avant du boîtier.
      Figure 6. Retrait du support supérieur avant

    2. Retirez deux vis par le dessous du support supérieur avant.
      Figure 7. Retrait de deux vis par le dessous du support supérieur avant

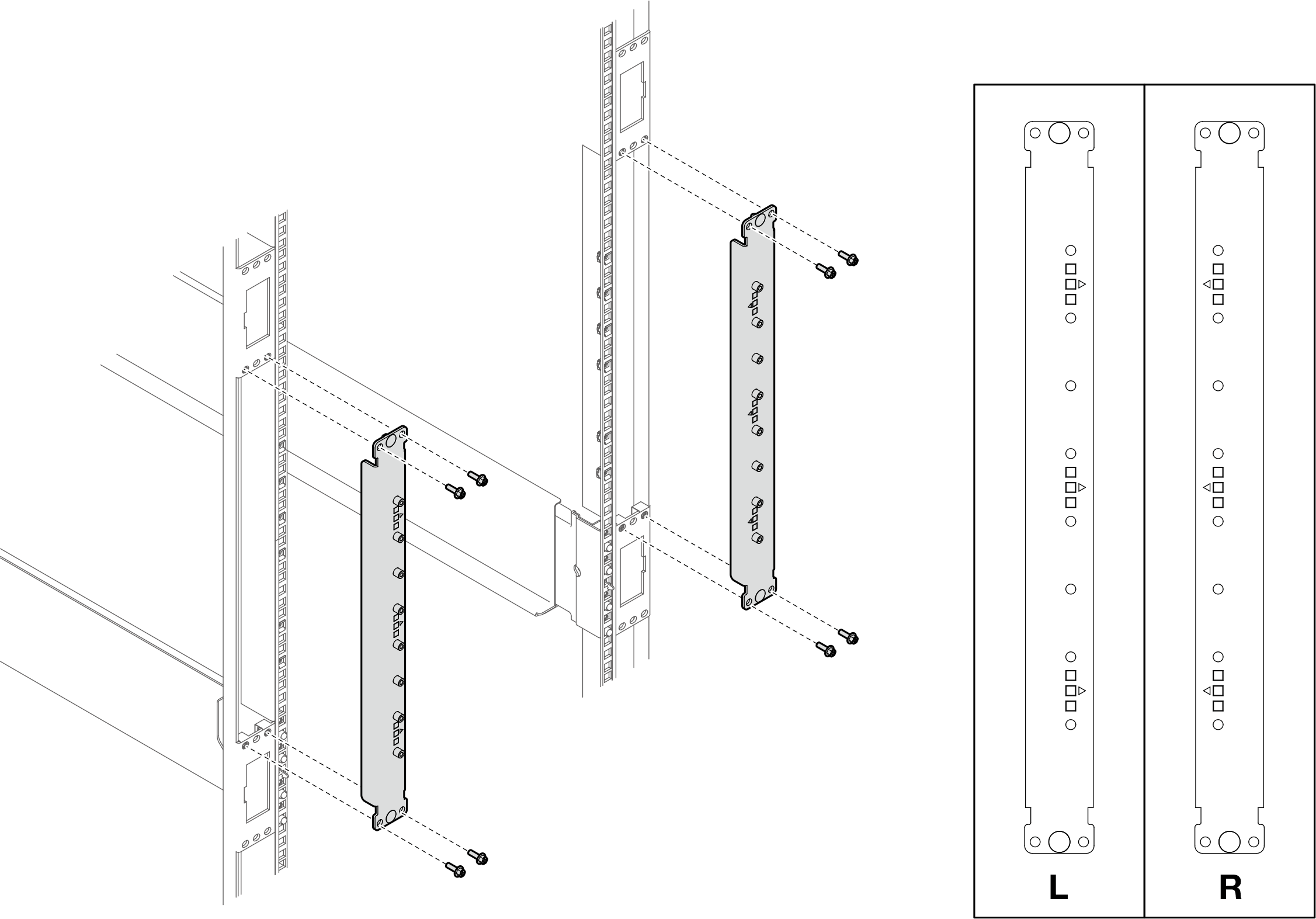
  5. Retirez les supports EIA du boîtier. Retirez cinq vis de chaque montant de l’armoire afin de retirer les supports EIA de l’armoire.
    Figure 8. Retrait des supports EIA de la partie avant du boîtier

  6. Retirez quatre vis afin de détacher le support arrière de l’extrémité arrière du boîtier.
    Figure 9. Retrait du support arrière de l’extrémité arrière du boîtier

  7. Depuis l’intérieur de l’arrière du boîtier, desserrez les six vis pour détacher le support arrière de la partie inférieure du boîtier.
    Figure 10. Retrait du support arrière de la face inférieure du boîtier

  8. Retirez huit vis du côté intérieur gauche afin de retirer le support arrière du boîtier.
    Figure 11. Retrait des vis du côté intérieur gauche du boîtier

  9. Retirez huit vis du côté intérieur droit afin de détacher le boîtier du support arrière.
    Figure 12. Retrait des vis du côté intérieur droit du boîtier

  10. Depuis l’avant de l’armoire, sortez le boîtier jusqu’à ce qu’il vous soit possible de fixer les poignées de levage avant de chaque côté. Alignez les encoches des poignées avec les tenons sur le boîtier et faites glisser les poignées vers le haut jusqu’à ce qu’elles s’enclenchent.
    Figure 13. Retrait du boîtier de l’armoire

    Figure 14. Installation des poignées de levage avant sur le boîtier

  11. Tenez les poignées avant des deux côtés et faites glisser le boîtier jusqu’à avoir suffisamment de place pour installer les poignées arrière.
    Figure 15. Installation des poignées de levage arrière sur le boîtier

  12. Tenez soigneusement les poignées avant et arrière de chaque côté pour faire glisser le boîtier hors de l’armoire ; ensuite, placez délicatement le boîtier sur une surface de travail stable.
    Figure 16. Maintien des poignées lors du retrait du boîtier de l’armoire

  13. Retirez les poignées de levage du boîtier.
    1. Enfoncez les taquets sur les deux côtés de la poignée de levage.
    2. Faites glisser la poignée de levage vers le bas, puis retirez la poignée de levage de la plaque médiane.
    Figure 17. Retrait des poignées de levage du boîtier

  14. Retirez le support arrière.
    1. Retirez toutes les vis pour détacher le support arrière du kit d’optimisation.
      Figure 18. Retrait du support arrière du kit d’optimisation

    2. Desserrez dix vis sur chaque montant de l’armoire pour détacher le support arrière de l’armoire.
      Figure 19. Retrait des vis afin de détacher le support arrière

    3. Retirez le support arrière de l’armoire.
      Figure 20. Retrait du support arrière

  15. (Facultatif) Retirez quatre vis de chaque montant de l’armoire afin de détacher les kits d’optimisation des montants de l’armoire. Retirez les kits d’optimisation de l’armoire.
    Figure 21. Retrait des kits d’optimisation

Après avoir terminé

  1. Pour retirer les glissières d’une armoire, suivez les instructions dans Retrait de la glissière de l’armoire.

  2. Si vous devez renvoyer le composant ou le périphérique en option, suivez les instructions d’emballage et utilisez les matériaux que vous avez reçus pour l’emballer.