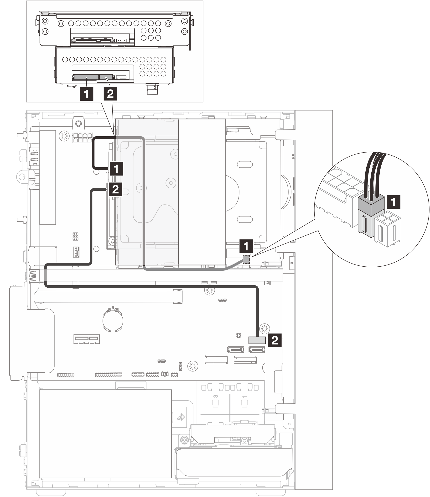
Disposición de los cables para la unidad de la bahía 3
Siga las instrucciones que aparecen en esta sección para obtener información sobre cómo disponer los cables para la unidad de la bahía 3.
Para conocer las ubicaciones de los conectores de la placa del sistema, consulte Conectores de la placa del sistema.
Figura 1. Disposición de los cables para la unidad de la bahía 3


| Desde (unidad de bahía 3) | A (placa del sistema) | Cable |
|---|---|---|
| 1 Conector de señal | 1 Conector SATA 3 | 7pin SATA to 7pin RA SATA cable, 185 mm |
| 2 Conector de alimentación | 2 Conector de alimentación SATA 1 | 4pin power cable, 300 mm/80 mm |
Entregar comentarios