베이 3 드라이브의 케이블 배선
이 섹션의 지침에 따라 베이 3의 드라이브에 대한 케이블 배선 방법을 알아보십시오.
시스템 보드 커넥터 위치는 시스템 보드 커넥터를 참조하십시오.
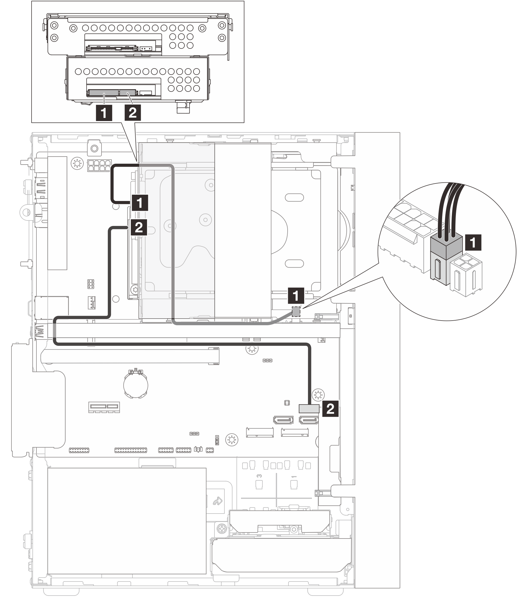
그림 1. 베이 3 드라이브의 케이블 배선


| 베이 3 드라이브에서 | (시스템 보드)로 | 케이블 |
|---|---|---|
| 1 신호 커넥터 | 1 SATA 3 커넥터 | 7pin SATA to 7pin RA SATA cable, 185 mm |
| 2 전원 커넥터 | 2 SATA 전원 1 커넥터 | 4pin power cable, 300 mm/80 mm |
피드백 보내기