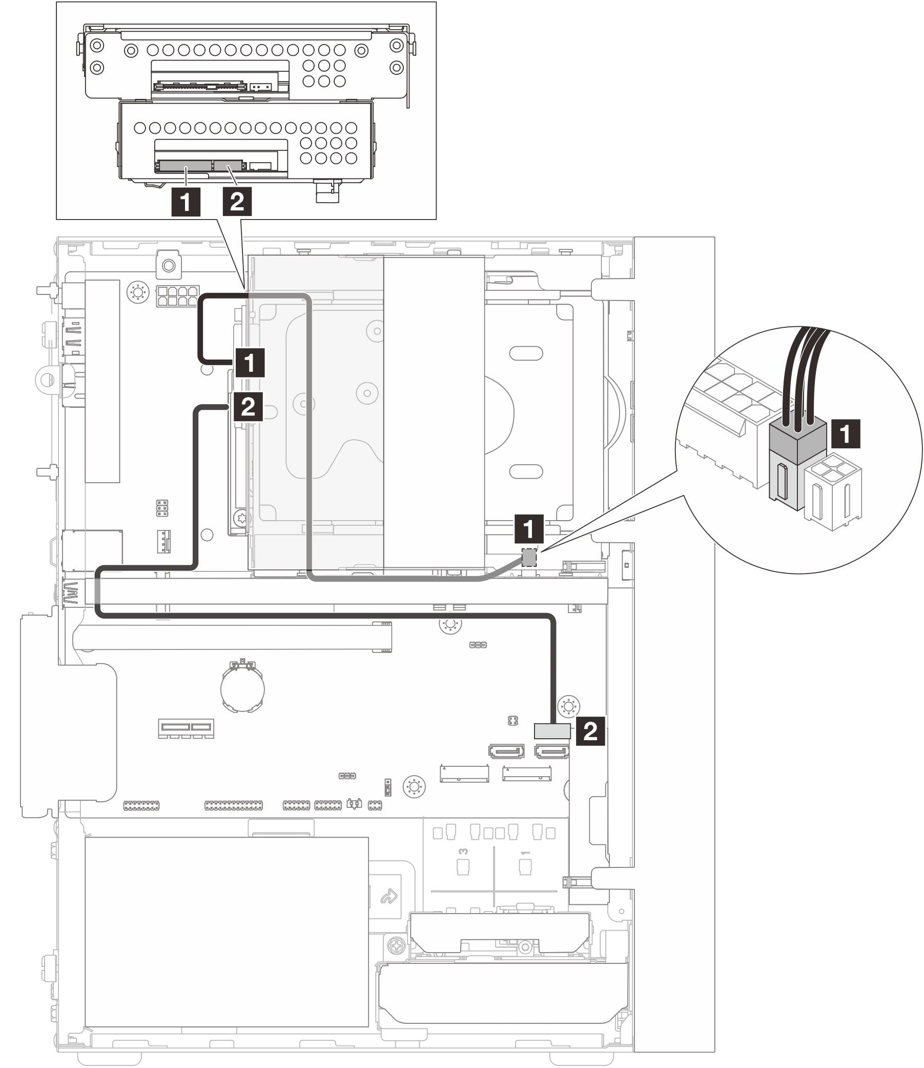
Roteamento de cabos da unidade de compartimento 3
Siga as instruções nesta seção para aprender a fazer o roteamento de cabos da unidade no compartimento 3.
Para obter os locais dos conectores da placa-mãe, consulte Conectores da Placa-mãe.
Figura 1. Roteamento de cabos da unidade de compartimento 3


| Da (unidade do compartimento 3) | Para (placa-mãe) | Cabo |
|---|---|---|
| 1 Conector de sinal | 1 Conector SATA 3 | 7pin SATA to 7pin RA SATA cable, 185 mm |
| 2 Conector de alimentação | 2 Conector de energia SATA 1 | 4pin power cable, 300 mm/80 mm |
Enviar feedback