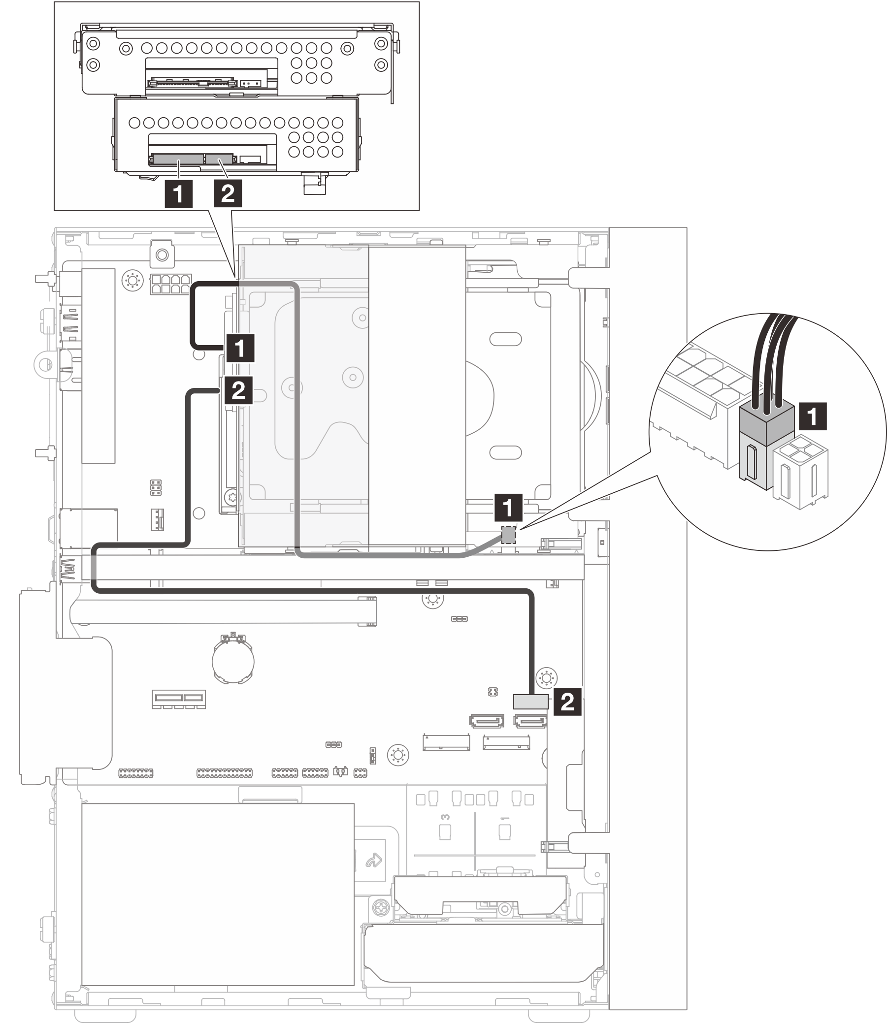
ベイ 3 ドライブのケーブル配線
ベイ 3 のドライブのケーブル配線方法については、このセクションの手順に従ってください。
システム・ボード・コネクターの位置については、システム・ボード・コネクターを参照してください。
図 1. ベイ 3 ドライブのケーブル配線


| 始点 (ベイ 3 ドライブ) | 始点 (システム・ボード) | ケーブル |
|---|---|---|
| 1 信号コネクター | 1 SATA 3 コネクター | 7pin SATA to 7pin RA SATA cable, 185 mm |
| 2 電源コネクター | 2 SATA 電源 1 コネクター | 4pin power cable, 300 mm/80 mm |
フィードバックを送る