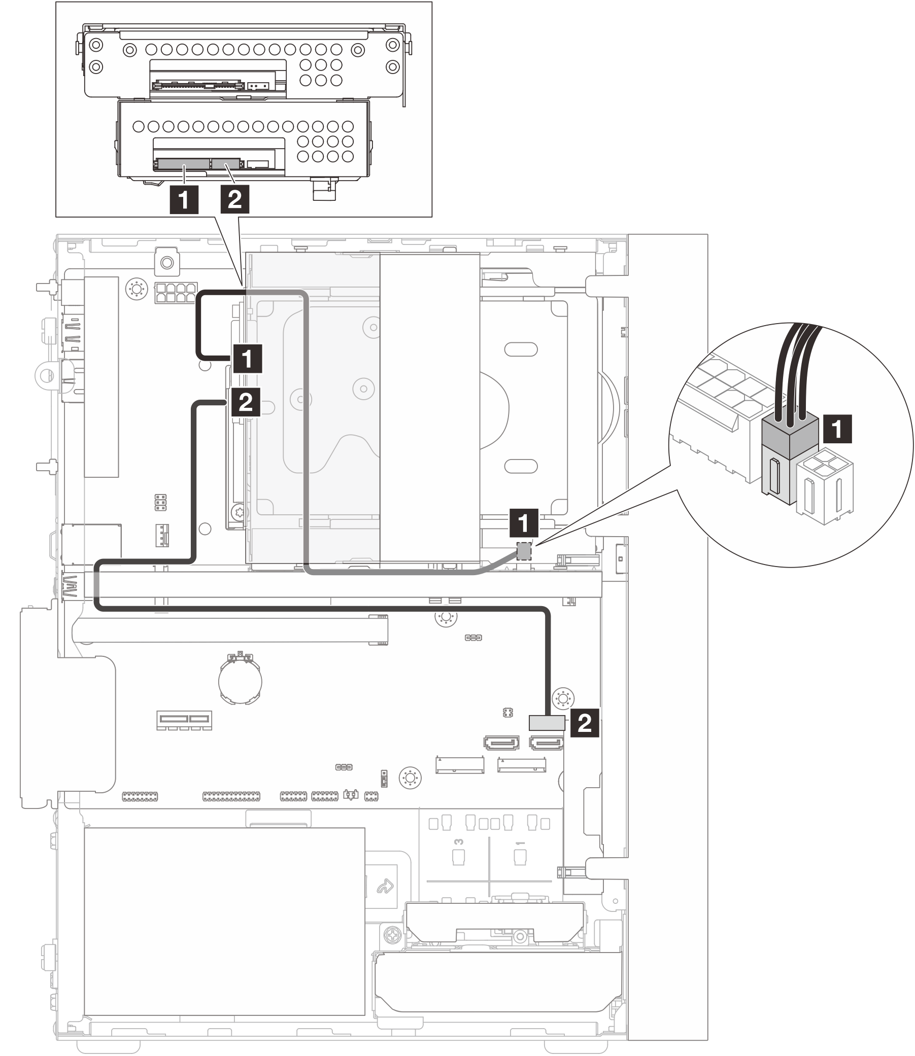
Прокладка кабелей для диска в отсеке 3
В этом разделе приведены инструкции по прокладке кабелей для диска в отсеке 3.
Расположение разъемов на материнской плате см. в разделе Разъемы материнской платы.
Рис. 1. Прокладка кабелей для диска в отсеке 3


| От (диск в отсеке 3) | К (материнская плата) | Кабель |
|---|---|---|
| 1 Разъем для сигнального кабеля | 1 Разъем SATA 3 | 7pin SATA to 7pin RA SATA cable, 185 mm |
| 2 Разъем питания | 2 Разъем питания SATA 1 | 4pin power cable, 300 mm/80 mm |
Предоставить обратную связь