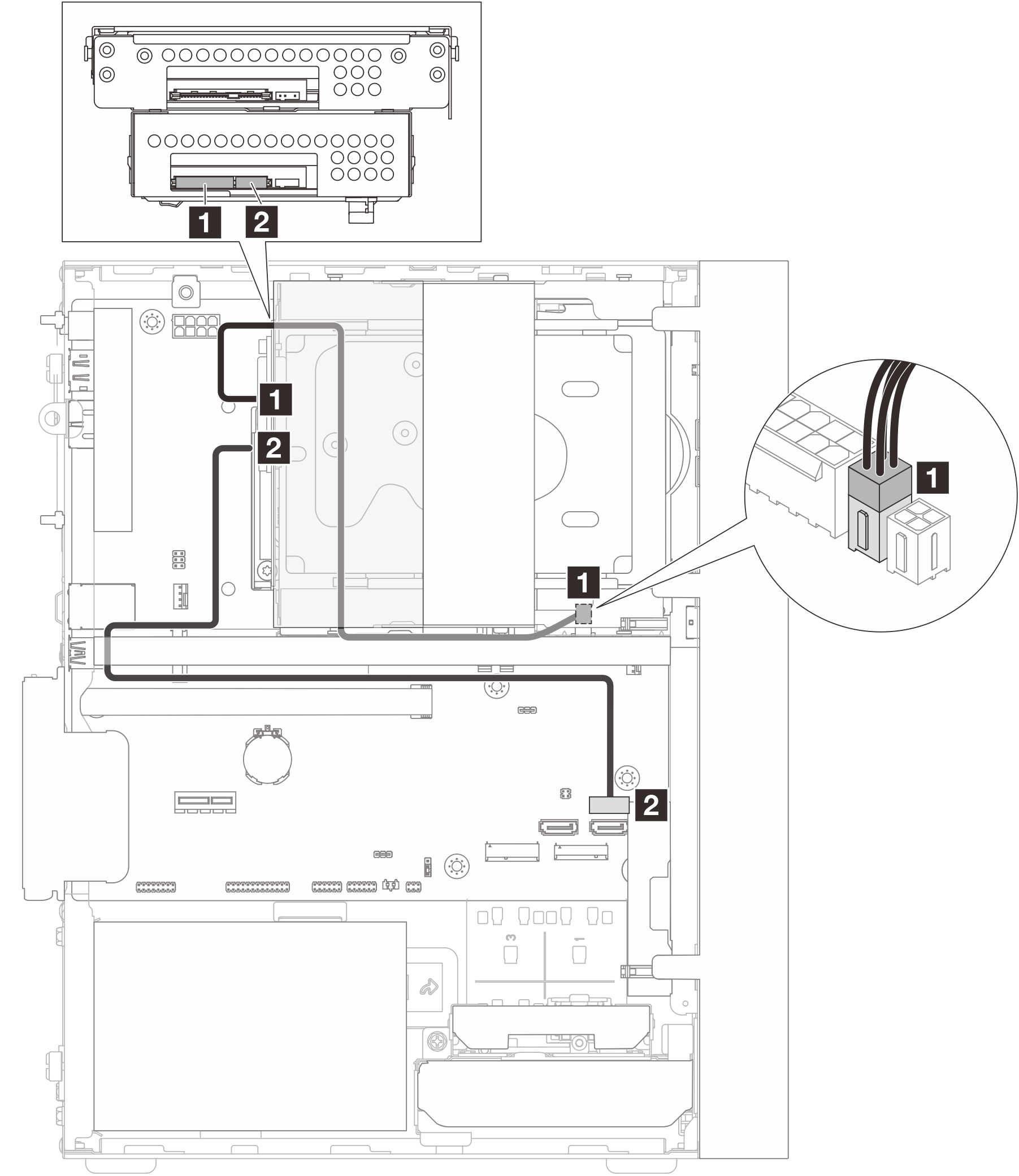
Kabelführung für das Laufwerk in Position 3
In diesem Abschnitt erfahren Sie, wie die Kabelführung für das Laufwerk in Position 3 funktioniert.
Informationen zu den Positionen der Anschlüsse auf der Systemplatine finden Sie unter Anschlüsse auf der Systemplatine.
Abbildung 1. Kabelführung für das Laufwerk in Position 3


| Von (Laufwerk in Position 3) | Zu (Systemplatine) | Kabel |
|---|---|---|
| 1 Signalanschluss | 1 SATA-3-Anschluss | 7pin SATA to 7pin RA SATA cable, 185 mm |
| 2 Netzteilanschluss | 2 SATA-Netzteilanschluss 1 | 4pin power cable, 300 mm/80 mm |
Feedback geben