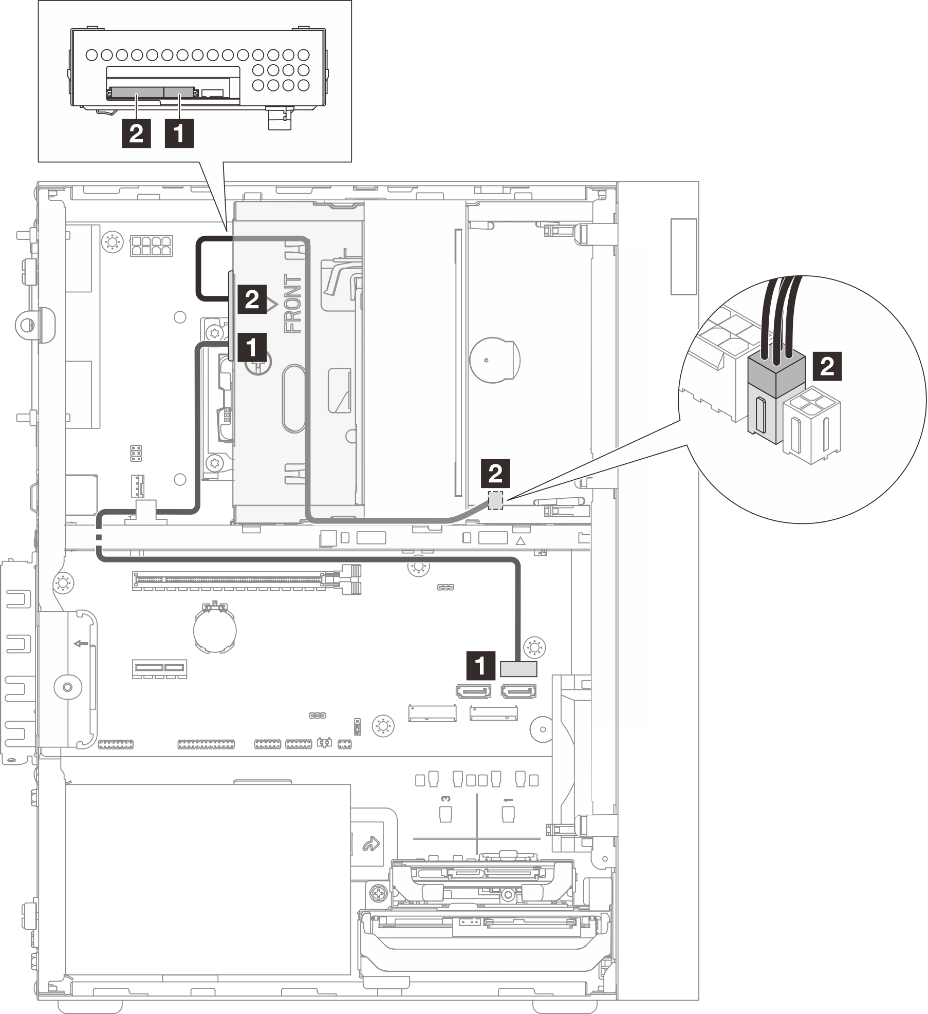
Kabelführung für das Laufwerk in Position 2
In diesem Abschnitt erfahren Sie, wie die Kabelführung für das Laufwerk in Position 2 funktioniert.
Informationen zu den Positionen der Anschlüsse auf der Systemplatine finden Sie unter Anschlüsse auf der Systemplatine.
Kabelführung für Laufwerk in Position 2, wenn der SATA-2-Anschluss durch ein Laufwerk in Position 1 belegt ist

| Von (Laufwerk in Position 2) | Zu (Systemplatine) | Kabel |
|---|---|---|
| 1 Signalanschluss | 1 SATA-3-Anschluss | 7pin SATA to 7pin Slim ODD SATA, 520 mm |
| 2 Netzteilanschluss | 2 SATA-Netzteilanschluss 1 | 4pin power to HDD&Slim ODD, 300 mm/210 mm/120 mm |
Kabelführung für das Laufwerk in Position 2, wenn der SATA-2-Anschluss nicht belegt ist

| Von (Laufwerk in Position 2) | Zu (Systemplatine) | Kabel |
|---|---|---|
| 1 Signalanschluss | 1 SATA-Anschluss 2 | 7pin SATA to 7pin Slim ODD SATA, 520 mm |
| 2 Netzteilanschluss | 2 SATA-Netzteilanschluss 1 | 4pin power to HDD&Slim ODD, 300 mm/210 mm/120 mm |
Feedback geben