การเดินสายช่องใส่ไดรฟ์ 2
ทำตามคำแนะนำในส่วนนี้เพื่อเรียนรู้วิธีเดินสายสำหรับไดรฟ์ในช่อง 2
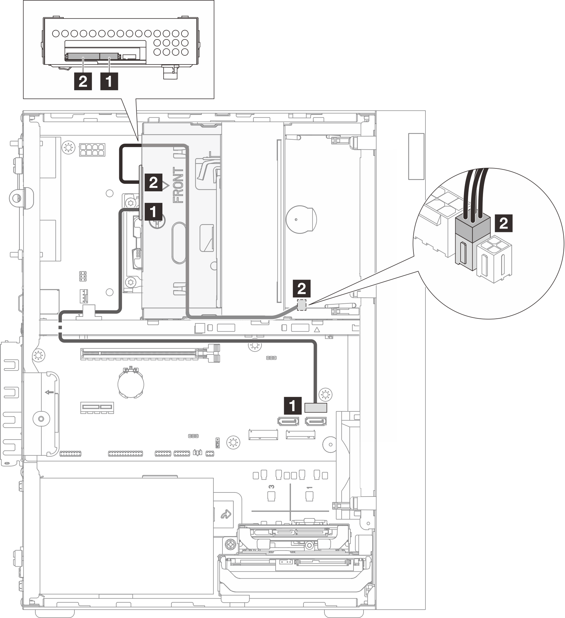
การเดินสายสำหรับไดรฟ์ช่องใส่ 2 ในกรณีที่ขั้วต่อ SATA 2 ถูกใช้งานโดยไดรฟ์ช่องใส่ 1
การเดินสายสำหรับไดรฟ์ช่องใส่ 2 ในกรณีที่ขั้วต่อ SATA 2 ว่างอยู่
สำหรับตำแหน่งของขั้วต่อแผงระบบ โปรดดู ขั้วต่อแผงระบบ
การเดินสายสำหรับไดรฟ์ช่องใส่ 2 ในกรณีที่ขั้วต่อ SATA 2 ถูกใช้งานโดยไดรฟ์ช่องใส่ 1

| จาก (ช่องใส่ไดรฟ์ 2) | ไปยัง (แผงระบบ) | สาย |
|---|---|---|
| 1 ขั้วต่อสัญญาณ | 1 ขั้วต่อ SATA 3 | 7pin SATA to 7pin Slim ODD SATA, 520 mm |
| 2 ขั้วต่อไฟฟ้า | 2 ขั้วต่อไฟฟ้า SATA 1 | 4pin power to HDD&Slim ODD, 300 mm/210 mm/120 mm |
การเดินสายสำหรับไดรฟ์ช่องใส่ 2 ในกรณีที่ขั้วต่อ SATA 2 ว่างอยู่

| จาก (ช่องใส่ไดรฟ์ 2) | ไปยัง (แผงระบบ) | สาย |
|---|---|---|
| 1 ขั้วต่อสัญญาณ | 1 ขั้วต่อ SATA 2 | 7pin SATA to 7pin Slim ODD SATA, 520 mm |
| 2 ขั้วต่อไฟฟ้า | 2 ขั้วต่อไฟฟ้า SATA 1 | 4pin power to HDD&Slim ODD, 300 mm/210 mm/120 mm |
ส่งคำติชม