插槽 2 硬盘的线缆布放
按照本节中的说明了解如何为插槽 2 中的硬盘进行线缆布放。
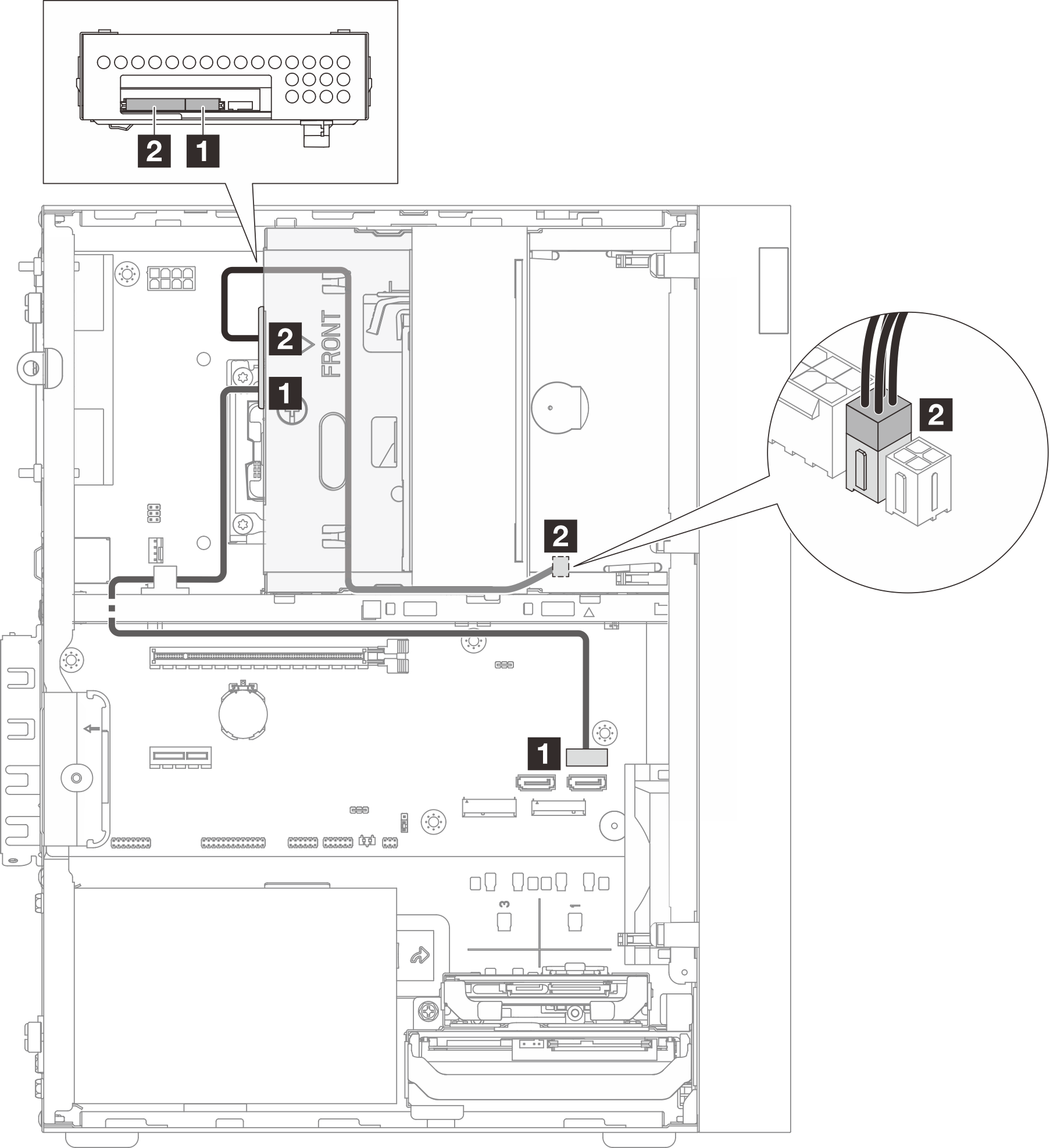
当 SATA 2 接口被插槽 1 硬盘占用时插槽 2 硬盘的线缆布放

| 从(插槽 2 硬盘) | 到(主板) | 线缆 |
|---|---|---|
| 1 信号接口 | 1 SATA 3 接口 | 7pin SATA to 7pin Slim ODD SATA, 520 mm |
| 2 电源接口 | 2 SATA 电源 1 接口 | 4pin power to HDD&Slim ODD, 300 mm/210 mm/120 mm |
当 SATA 2 接口未被占用时插槽 2 硬盘的线缆布放

| 从(插槽 2 硬盘) | 到(主板) | 线缆 |
|---|---|---|
| 1 信号接口 | 1 SATA 2 接口 | 7pin SATA to 7pin Slim ODD SATA, 520 mm |
| 2 电源接口 | 2 SATA 电源 1 接口 | 4pin power to HDD&Slim ODD, 300 mm/210 mm/120 mm |
提供反馈