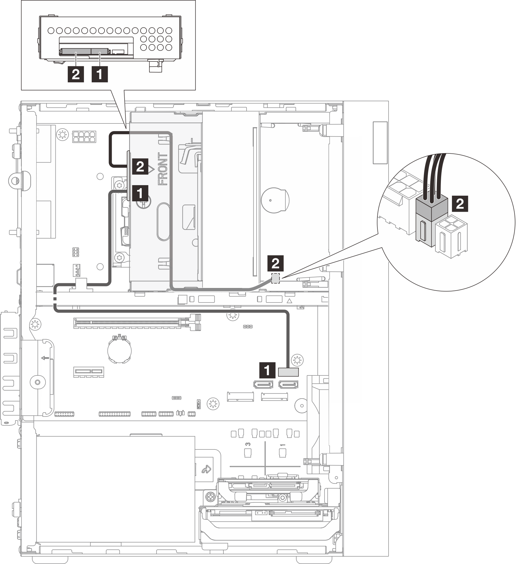
Instradamento dei cavi per l'unità del vano 2
Seguire le istruzioni riportate in questa sezione per informazioni su come eseguire l'instradamento dei cavi per l'unità nel vano 2.
Per le posizioni dei connettori della scheda di sistema, vedere Connettori della scheda di sistema.
Instradamento dei cavi per l'unità del vano 2 quando il connettore SATA 2 è occupato dall'unità del vano 1

| Da (unità del vano 2) | A (scheda di sistema) | Cavo |
|---|---|---|
| 1 Connettore di segnale | 1 Connettore SATA 3 | 7pin SATA to 7pin Slim ODD SATA, 520 mm |
| 2 Connettore di alimentazione | 2 Connettore di alimentazione SATA 1 | 4pin power to HDD&Slim ODD, 300 mm/210 mm/120 mm |
Instradamento dei cavi per l'unità del vano 2 quando il connettore SATA 2 non è occupato

| Da (unità del vano 2) | A (scheda di sistema) | Cavo |
|---|---|---|
| 1 Connettore di segnale | 1 Connettore SATA 2 | 7pin SATA to 7pin Slim ODD SATA, 520 mm |
| 2 Connettore di alimentazione | 2 Connettore di alimentazione SATA 1 | 4pin power to HDD&Slim ODD, 300 mm/210 mm/120 mm |
Envoyer des commentaires