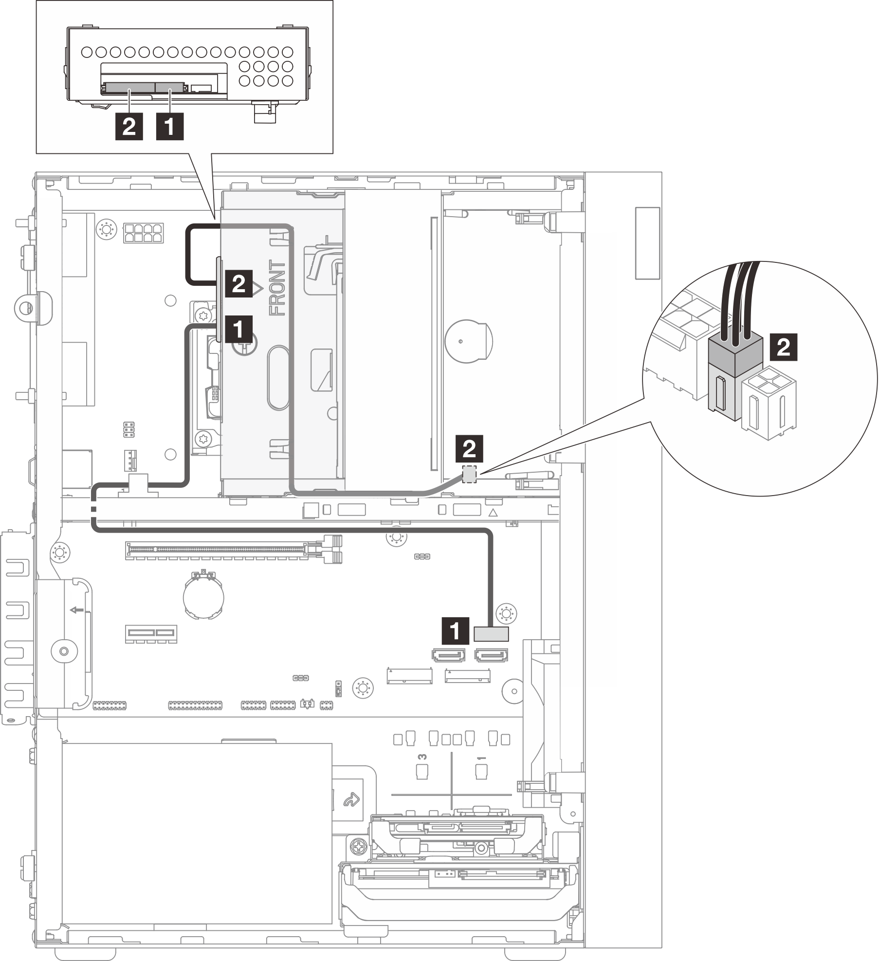
Disposición de los cables para la unidad de la bahía 2
Siga las instrucciones que aparecen en esta sección para obtener información sobre cómo disponer los cables para la unidad de la bahía 2.
Para conocer las ubicaciones de los conectores de la placa del sistema, consulte Conectores de la placa del sistema.
Disposición de los cables para la unidad de bahía 2 cuando el conector SATA 2 está ocupado por la unidad de bahía 1

| Desde (unidad de la bahía 2) | A (placa del sistema) | Cable |
|---|---|---|
| 1 Conector de señal | 1 Conector SATA 3 | 7pin SATA to 7pin Slim ODD SATA, 520 mm |
| 2 Conector de alimentación | 2 Conector de alimentación SATA 1 | 4pin power to HDD&Slim ODD, 300 mm/210 mm/120 mm |
Disposición de los cables para la unidad de bahía 2 cuando el conector SATA 2 no está ocupado

| Desde (unidad de la bahía 2) | A (placa del sistema) | Cable |
|---|---|---|
| 1 Conector de señal | 1 Conector SATA 2 | 7pin SATA to 7pin Slim ODD SATA, 520 mm |
| 2 Conector de alimentación | 2 Conector de alimentación SATA 1 | 4pin power to HDD&Slim ODD, 300 mm/210 mm/120 mm |
Entregar comentarios