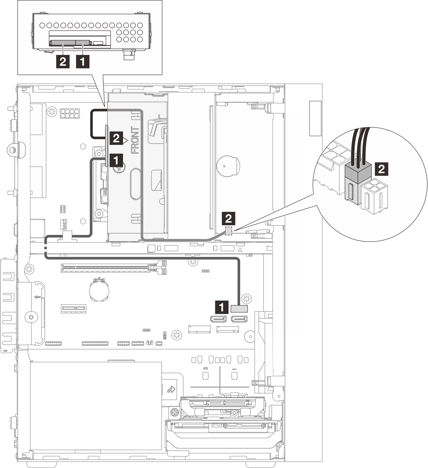
Roteamento de cabos da unidade do compartimento 2
Siga as instruções nesta seção para aprender a fazer o roteamento de cabos da unidade no compartimento 2.
Para obter os locais dos conectores da placa-mãe, consulte Conectores da Placa-mãe.
Roteamento de cabos para a unidade do compartimento 2 quando o conector SATA 2 está ocupado pela unidade do compartimento 1

| De (unidade do compartimento 2) | Para (placa-mãe) | Cabo |
|---|---|---|
| 1 Conector de sinal | 1 Conector SATA 3 | 7pin SATA to 7pin Slim ODD SATA, 520 mm |
| 2 Conector de alimentação | 2 Conector de energia SATA 1 | 4pin power to HDD&Slim ODD, 300 mm/210 mm/120 mm |
Roteamento de cabos para a unidade do compartimento 2 quando o conector SATA 2 está livre

| De (unidade do compartimento 2) | Para (placa-mãe) | Cabo |
|---|---|---|
| 1 Conector de sinal | 1 Conector SATA 2 | 7pin SATA to 7pin Slim ODD SATA, 520 mm |
| 2 Conector de alimentação | 2 Conector de energia SATA 1 | 4pin power to HDD&Slim ODD, 300 mm/210 mm/120 mm |
Enviar feedback