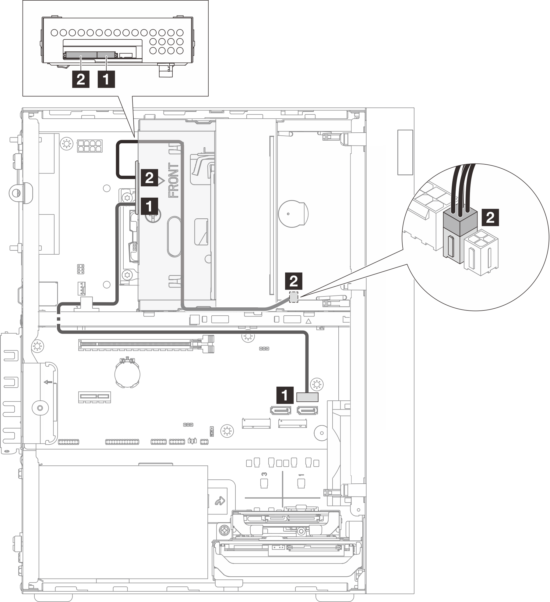
ベイ 2 ドライブのケーブル配線
ベイ 2 のドライブのケーブル配線方法については、このセクションの手順に従ってください。
システム・ボード・コネクターの位置については、システム・ボード・コネクターを参照してください。
SATA 2 コネクターがベイ 1 ドライブで占有されている場合のベイ 2 ドライブのケーブル配線

| 始点 (ベイ 2 ドライブ) | 始点 (システム・ボード) | ケーブル |
|---|---|---|
| 1 信号コネクター | 1 SATA 3 コネクター | 7pin SATA to 7pin Slim ODD SATA, 520 mm |
| 2 電源コネクター | 2 SATA 電源 1 コネクター | 4pin power to HDD&Slim ODD, 300 mm/210 mm/120 mm |
SATA 2 コネクターが占有されていない場合のベイ 2 ドライブのケーブル配線

| 始点 (ベイ 2 ドライブ) | 始点 (システム・ボード) | ケーブル |
|---|---|---|
| 1 信号コネクター | 1 SATA 2 コネクター | 7pin SATA to 7pin Slim ODD SATA, 520 mm |
| 2 電源コネクター | 2 SATA 電源 1 コネクター | 4pin power to HDD&Slim ODD, 300 mm/210 mm/120 mm |
フィードバックを送る