Прокладка кабелей для диска в отсеке 2
В этом разделе приведены инструкции по прокладке кабелей для диска в отсеке 2.
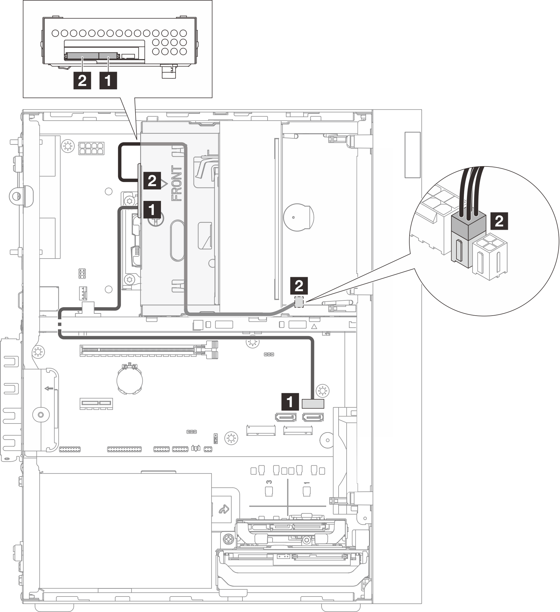
Прокладка кабелей для диска в отсеке 2, если разъем SATA 2 занят диском в отсеке 1
Прокладка кабелей для диска в отсеке 2 при свободном разъеме SATA 2
Расположение разъемов на материнской плате см. в разделе Разъемы материнской платы.
Прокладка кабелей для диска в отсеке 2, если разъем SATA 2 занят диском в отсеке 1

| От (диск отсека 2) | К (материнская плата) | Кабель |
|---|---|---|
| 1 Разъем для сигнального кабеля | 1 Разъем SATA 3 | 7pin SATA to 7pin Slim ODD SATA, 520 mm |
| 2 Разъем питания | 2 Разъем питания SATA 1 | 4pin power to HDD&Slim ODD, 300 mm/210 mm/120 mm |
Прокладка кабелей для диска в отсеке 2 при свободном разъеме SATA 2

| От (диск отсека 2) | К (материнская плата) | Кабель |
|---|---|---|
| 1 Разъем для сигнального кабеля | 1 Разъем SATA 2 | 7pin SATA to 7pin Slim ODD SATA, 520 mm |
| 2 Разъем питания | 2 Разъем питания SATA 1 | 4pin power to HDD&Slim ODD, 300 mm/210 mm/120 mm |
Предоставить обратную связь