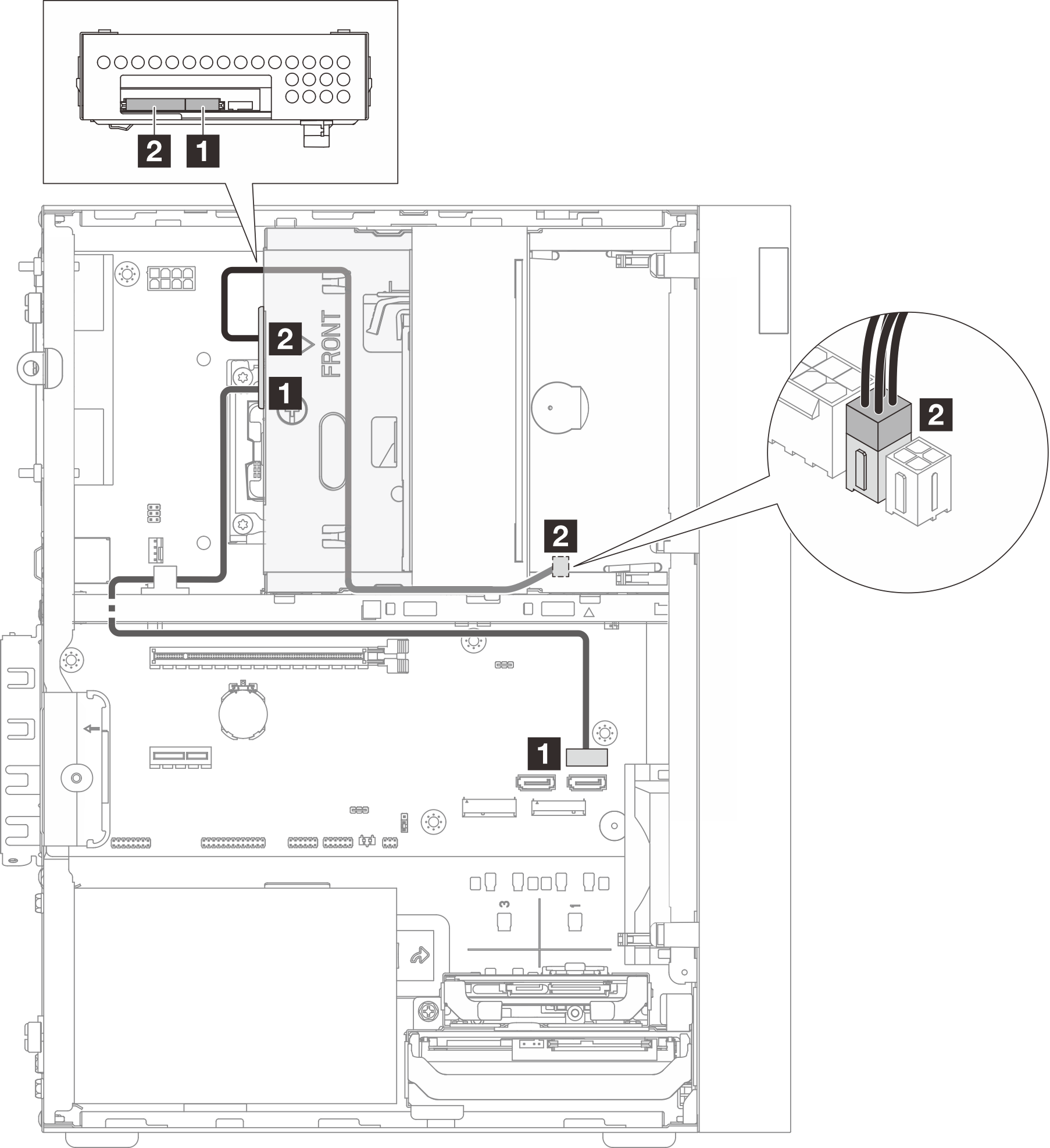
機槽 2 硬碟的纜線佈線
請依照本節中的指示,瞭解如何為機槽 2 中的硬碟進行纜線佈線。
如需主機板接頭位置的相關資訊,請參閱主機板接頭。
當 SATA 2 接頭已由機槽 1 硬碟佔用時,機槽 2 硬碟的纜線佈線

| 從(機槽 2 硬碟) | 到(主機板) | 纜線 |
|---|---|---|
| 1 信號接頭 | 1 SATA 3 接頭 | 7pin SATA to 7pin Slim ODD SATA, 520 mm |
| 2 電源接頭 | 2 SATA 電源 1 接頭 | 4pin power to HDD&Slim ODD, 300 mm/210 mm/120 mm |
當 SATA 2 接頭未佔用時,機槽 2 硬碟的纜線佈線

| 從(機槽 2 硬碟) | 到(主機板) | 纜線 |
|---|---|---|
| 1 信號接頭 | 1 SATA 2 接頭 | 7pin SATA to 7pin Slim ODD SATA, 520 mm |
| 2 電源接頭 | 2 SATA 電源 1 接頭 | 4pin power to HDD&Slim ODD, 300 mm/210 mm/120 mm |
提供意見回饋