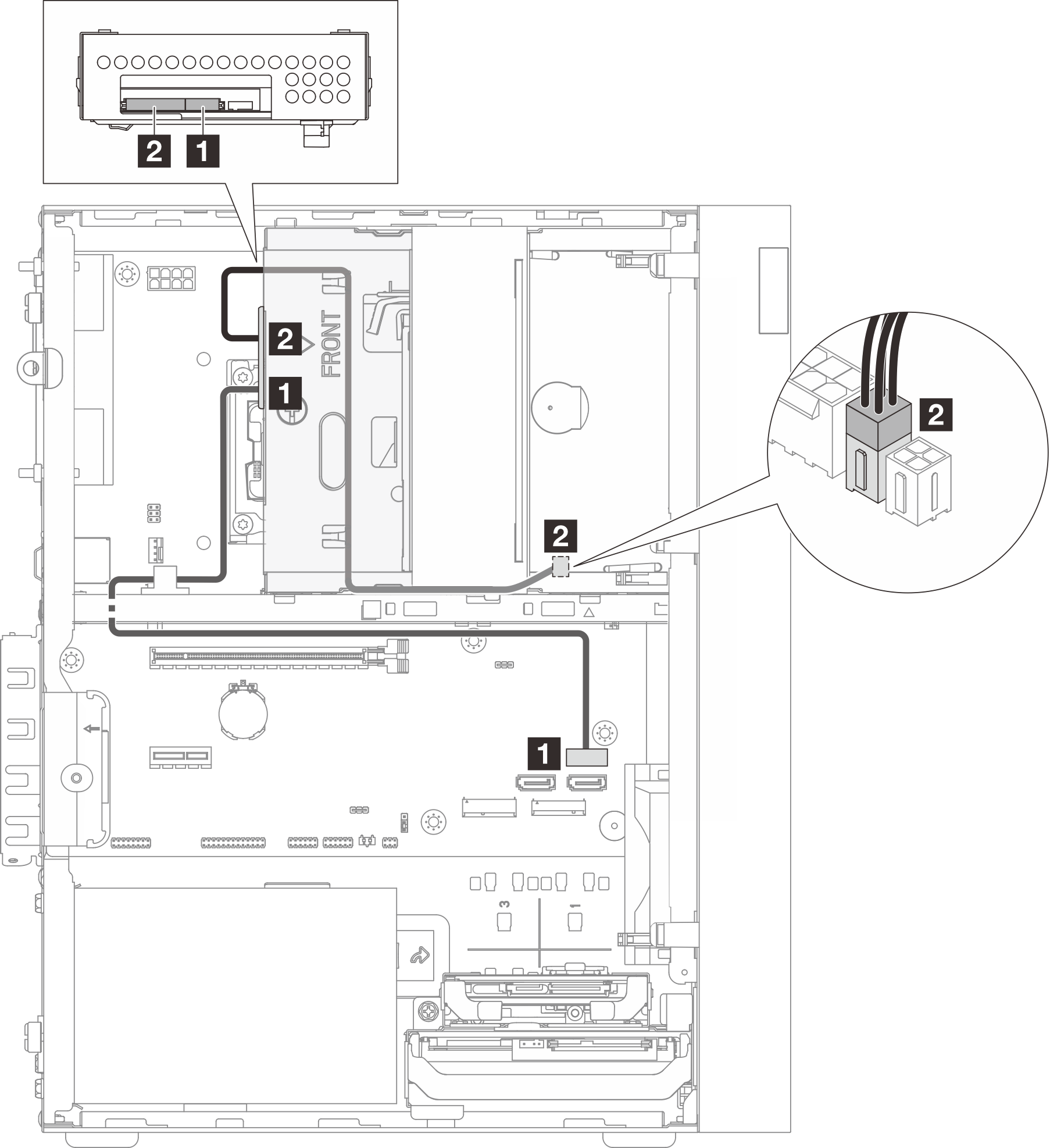
베이 2 드라이브의 케이블 배선
이 섹션의 지침에 따라 베이 2의 드라이브에 대한 케이블 배선 방법을 알아보십시오.
시스템 보드 커넥터 위치는 시스템 보드 커넥터를 참조하십시오.
베이 1 드라이브가 SATA 2 커넥터를 사용하고 있을 때 베이 2 드라이브의 케이블 배선

| 시작(베이 2 드라이브) | (시스템 보드)로 | 케이블 |
|---|---|---|
| 1 신호 커넥터 | 1 SATA 3 커넥터 | 7pin SATA to 7pin Slim ODD SATA, 520 mm |
| 2 전원 커넥터 | 2 SATA 전원 1 커넥터 | 4pin power to HDD&Slim ODD, 300 mm/210 mm/120 mm |
SATA 2 커넥터 미사용 시 베이 2 드라이브용 케이블 배선

| 시작(베이 2 드라이브) | (시스템 보드)로 | 케이블 |
|---|---|---|
| 1 신호 커넥터 | 1 SATA 2 커넥터 | 7pin SATA to 7pin Slim ODD SATA, 520 mm |
| 2 전원 커넥터 | 2 SATA 전원 1 커넥터 | 4pin power to HDD&Slim ODD, 300 mm/210 mm/120 mm |
피드백 보내기