跳到主要内容

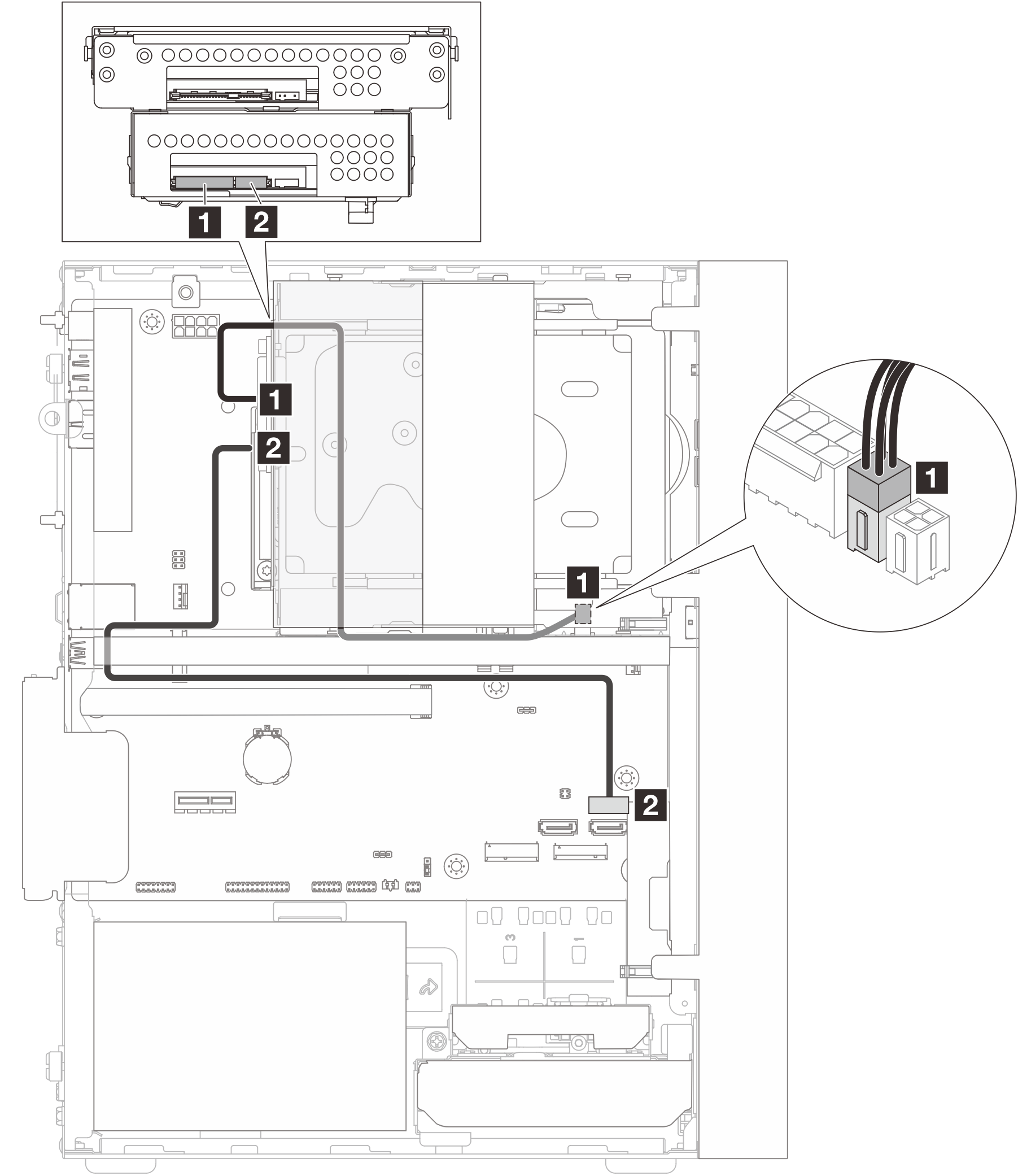
插槽 3 硬盘的线缆布放

按照本节中的说明了解如何为插槽 3 中的硬盘进行线缆布放。

有关主板接口的位置,请参阅主板接口

图 1. 插槽 3 硬盘的线缆布放
Cable routing for bay 3 drive
从(插槽 3 硬盘)到(主板)线缆
1 信号接口1 SATA 3 接口7pin SATA to 7pin RA SATA cable, 185 mm
2 电源接口2 SATA 电源 1 接口4pin power cable, 300 mm/80 mm